+ Lisa oma töö      

Otsid ehitajat "Vundamenditööd" valdkonnast?

Parima pakkumise ja teostaja leidmiseks lisa oma töö.

Lintvundament

ID 45903

2090 vaatamist

Prindi

  • check Pakkumiste tegemine
    kuni 17.02.2019
  • check Võitja valik kuni
    24.02.2019
  • 3 Töö teostamine
    ja hinnang
Hanke lõpp: P, 17. veebruar, 2019
Maakond: Harjumaa
Muu asula: Harku vald, Muraste
Tööde algus: E, 01. aprill, 2019 (Soovituslik)
Tööde lõpp: R, 31. mai, 2019 (Soovituslik)
Ehitusmaterjalid: Töö tellija poolt

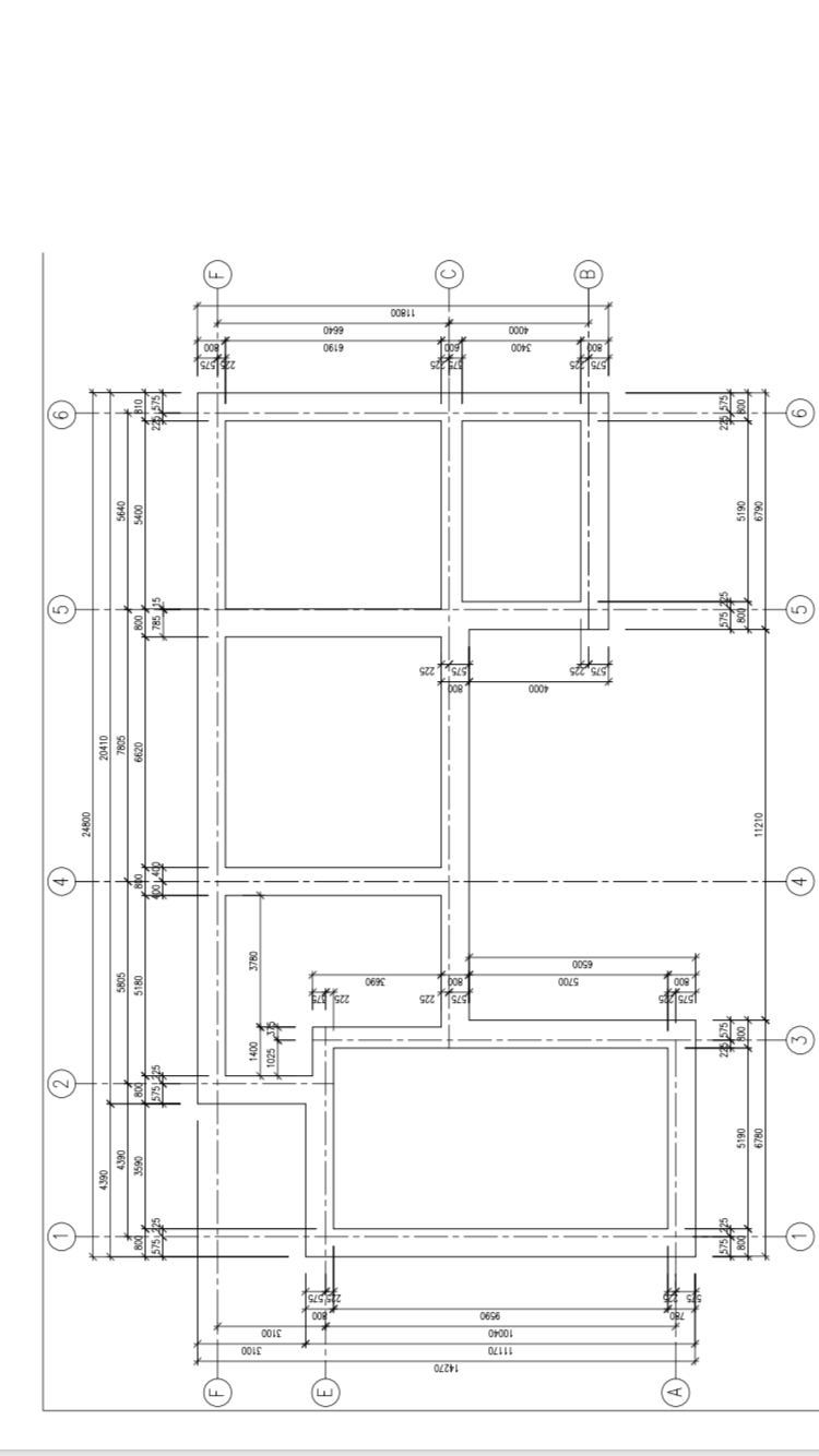
Töö sisu

Ca 220m2 vundament

1. Pinnase ettevalmistus
2. telgede mahamärkimine
3.killustiku taldmiku alus
4.vormest taldmikumoodulite paigaldus
5.taldmikuvalu
6.majasisese kanalisatsiooni paigaldus
7.fibo plokkidega ülestulek (3 rida)
8.liivaga tagasitäide
9.põrandaaluse peno paigaldus
10.majasisese veetorustiku paigaldus
11.armatuurvõrgu paigaldus
12.põranda küttetoru paigaldus
13.põrandaplaadi valu, lihvimine
14.vertikaal-ja horisontaalpeno paigaldus(perimeeter)
15.välitrasside ühendamine ja toomine vundamendi alt majja(elekter, kanal, vesi ja drenaaz).

Tööraha:? euri m2

Pildid, video ja failid

Hanke korraldaja: eraisik ID50211

Pakkumised

Pakkumisi kokku: 8

Ettevõte Summa Käibemaks Lisatud Vestlus
Kasutaja ikoon ID46738
Pakkuja profiil Väike nool paremale
12 000€ Ei sisalda Ei sisalda 21.01.2019 Vestlus (0)
Kasutaja ikoon ID45266
Pakkuja profiil Väike nool paremale
55€ Ei sisalda Ei sisalda 24.01.2019 Vestlus (0)

Pakkumise kirjeldus:

55 euri/m2

Kasutaja ikoon ID48458
Pakkuja profiil Väike nool paremale
39€ Ei sisalda Ei sisalda 29.01.2019 Vestlus (0)

Pakkumise kirjeldus:

Tere
Hind töörahale 39€m2.
Lugupidamisega

Kasutaja ikoon ID50287
Pakkuja profiil Väike nool paremale
16 000€ Ei sisalda Ei sisalda 29.01.2019 Vestlus (0)

Pakkumise kirjeldus:

16000.-eur.Kogu maksumus,ruudu hinne 72 eur.m2.

Kasutaja ikoon ID38730
Pakkuja profiil Väike nool paremale
8 200€ Ei sisalda Ei sisalda 30.01.2019 Vestlus (0)
Kasutaja ikoon ID50349
Pakkuja profiil Väike nool paremale
12 130€ Ei sisalda Ei sisalda 05.02.2019 Vestlus (0)

Pakkumise kirjeldus:

Pakkumine ei sisalda tööks vajalikke materjale, seal hulgas killustikku, liiva, betooni jm. ehitusmaterjale.

Kasutaja ikoon ID8633
Pakkuja profiil Väike nool paremale
12 500€ Ei sisalda Ei sisalda 11.02.2019 Vestlus (0)

Pakkumise kirjeldus:

töö

Kasutaja ikoon ID23896
Pakkuja profiil Väike nool paremale
10 900€ Ei sisalda Ei sisalda 17.02.2019 Vestlus (0)

Küsimused hanke korraldajale

Hanke korraldajale ei ole veel küsimusi esitatud.

Lisa küsimus

Lisa küsimus

Minu pakkumine

Reeglid

Pakkumise kirjelduse väli on mõeldud pakkumise detailsemaks lahti kirjutamiseks. Pikema teksti mugavaks sisestamiseks klikkige kasti paremal ülaservas oleval ikoonil.
Pakkumist tehes on keelatud postitada enda kontaktandmeid (nimi, telefon, aadress jne). Me jälgime ja analüüsime pakkumisi, et vältida pettuseid ja reeglite rikkumisi.
Rikkumise puhul kasutajakonto blokeeritakse.

 

Teisi töid samas valdkonnas

Valdkonnas "Vundamenditööd" on 9 aktiivset tööd

Plaatvundamendi valamine

Asukoht: Tartumaa, Tartu
Aega jäänud: 2p 12h
Tehtud pakkumisi: 3

no-img Pilt puudub

Plaatvundament koos kommunikatsioonidega

Asukoht: Harjumaa
Aega jäänud: 12h 45 min
Tehtud pakkumisi: 3

Vanemad teated:

Vaata kõiki

Sellel veebilehel kasutatakse küpsiseid. Kasutamist jätkates nõustute küpsiste kasutamisega.

Sulge
 
Minu pakkumine

Reeglid

Pakkumise kirjelduse väli on mõeldud pakkumise detailsemaks lahti kirjutamiseks. Pikema teksti mugavaks sisestamiseks klikkige kasti paremal ülaservas oleval ikoonil.
Pakkumist tehes on keelatud postitada enda kontaktandmeid (nimi, telefon, aadress jne). Me jälgime ja analüüsime pakkumisi, et vältida pettuseid ja reeglite rikkumisi.
Rikkumise puhul kasutajakonto blokeeritakse.