+ Lisa oma töö      

Otsid ehitajat "Vundamenditööd" valdkonnast?

Parima pakkumise ja teostaja leidmiseks lisa oma töö.

Plaatvundament Hiiumaal (Arukülas)

ID 46070

2694 vaatamist

Prindi

  • check Pakkumiste tegemine
    kuni 10.03.2019
  • check Võitja valik kuni
    17.03.2019
  • 3 Töö teostamine
    ja hinnang
Hanke lõpp: P, 10. märts, 2019
Maakond: Hiiumaa
Muu asula: Aruküla
Tööde algus: K, 01. mai, 2019 (Soovituslik)
Tööde lõpp: K, 31. juuli, 2019 (Soovituslik)
Ehitusmaterjalid: Töö tegija poolt

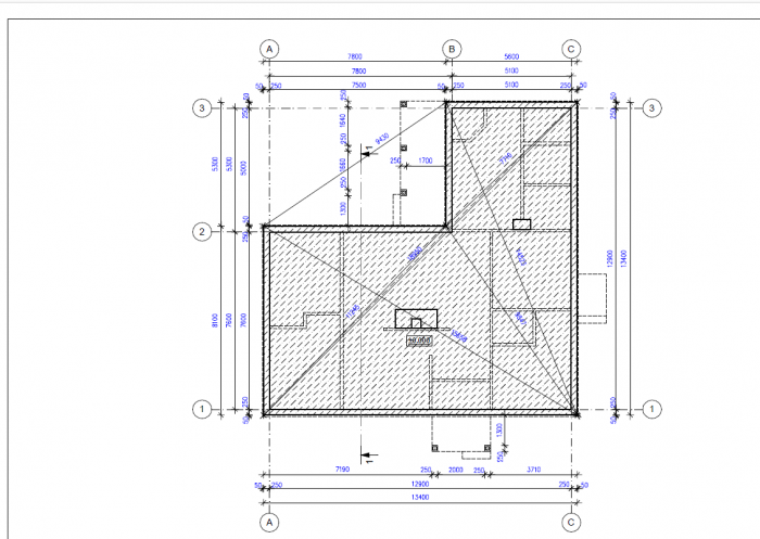
Töö sisu

Sooviksime plaatvundamendi ehitust alates pinnase koorimisest lõpetades betoonvalu lihvimisega.
Antud pinnas on ligikaudu 50 cm paksune mullakiht ja siis hakkab paas. Plaatvundamendi sisse tuleb vedada esimese korruse kanalisatsiooni torud, elektri ja tarbeveeläbiviigud. Esimese korruse põrandaküttetorud.

Pildid, video ja failid

Hanke korraldaja: eraisik ID50379

Pakkumised

Pakkumisi kokku: 2

Ettevõte Summa Käibemaks Lisatud Vestlus
Kasutaja ikoon ID38730
Pakkuja profiil Väike nool paremale
18 600€ Ei sisalda Ei sisalda 10.02.2019 Vestlus (0)
Kasutaja ikoon ID50329
Pakkuja profiil Väike nool paremale
16 800€ Ei sisalda Ei sisalda 09.03.2019 Vestlus (0)

Küsimused hanke korraldajale

Hanke korraldajale ei ole veel küsimusi esitatud.

Lisa küsimus

Lisa küsimus

Minu pakkumine

Reeglid

Pakkumise kirjelduse väli on mõeldud pakkumise detailsemaks lahti kirjutamiseks. Pikema teksti mugavaks sisestamiseks klikkige kasti paremal ülaservas oleval ikoonil.
Pakkumist tehes on keelatud postitada enda kontaktandmeid (nimi, telefon, aadress jne). Me jälgime ja analüüsime pakkumisi, et vältida pettuseid ja reeglite rikkumisi.
Rikkumise puhul kasutajakonto blokeeritakse.

 

Teisi töid samas valdkonnas

Valdkonnas "Vundamenditööd" on 9 aktiivset tööd

Plaatvundamendi valamine

Asukoht: Tartumaa, Tartu
Aega jäänud: 2p 11h
Tehtud pakkumisi: 3

no-img Pilt puudub

Plaatvundament koos kommunikatsioonidega

Asukoht: Harjumaa
Aega jäänud: 11h 14 min
Tehtud pakkumisi: 3

Vanemad teated:

Vaata kõiki

Sellel veebilehel kasutatakse küpsiseid. Kasutamist jätkates nõustute küpsiste kasutamisega.

Sulge
 
Minu pakkumine

Reeglid

Pakkumise kirjelduse väli on mõeldud pakkumise detailsemaks lahti kirjutamiseks. Pikema teksti mugavaks sisestamiseks klikkige kasti paremal ülaservas oleval ikoonil.
Pakkumist tehes on keelatud postitada enda kontaktandmeid (nimi, telefon, aadress jne). Me jälgime ja analüüsime pakkumisi, et vältida pettuseid ja reeglite rikkumisi.
Rikkumise puhul kasutajakonto blokeeritakse.