+ Lisa oma töö      

Otsid ehitajat "Arhitektibürood" valdkonnast?

Parima pakkumise ja teostaja leidmiseks lisa oma töö.

Vahelae õõnespaneelide paigutusjoonise tegija/konstruktor

ID 46170

2096 vaatamist

Prindi

  • check Pakkumiste tegemine
    kuni 24.02.2019
  • check Võitja valik kuni
    03.03.2019
  • 3 Töö teostamine
    ja hinnang
Hanke lõpp: P, 24. veebruar, 2019
Maakond: Harjumaa
Linn: Tallinn
Tööde algus: E, 25. veebruar, 2019 (Soovituslik)
Tööde lõpp: K, 27. veebruar, 2019 (Soovituslik)
Ehitusmaterjalid: Töö tegija poolt

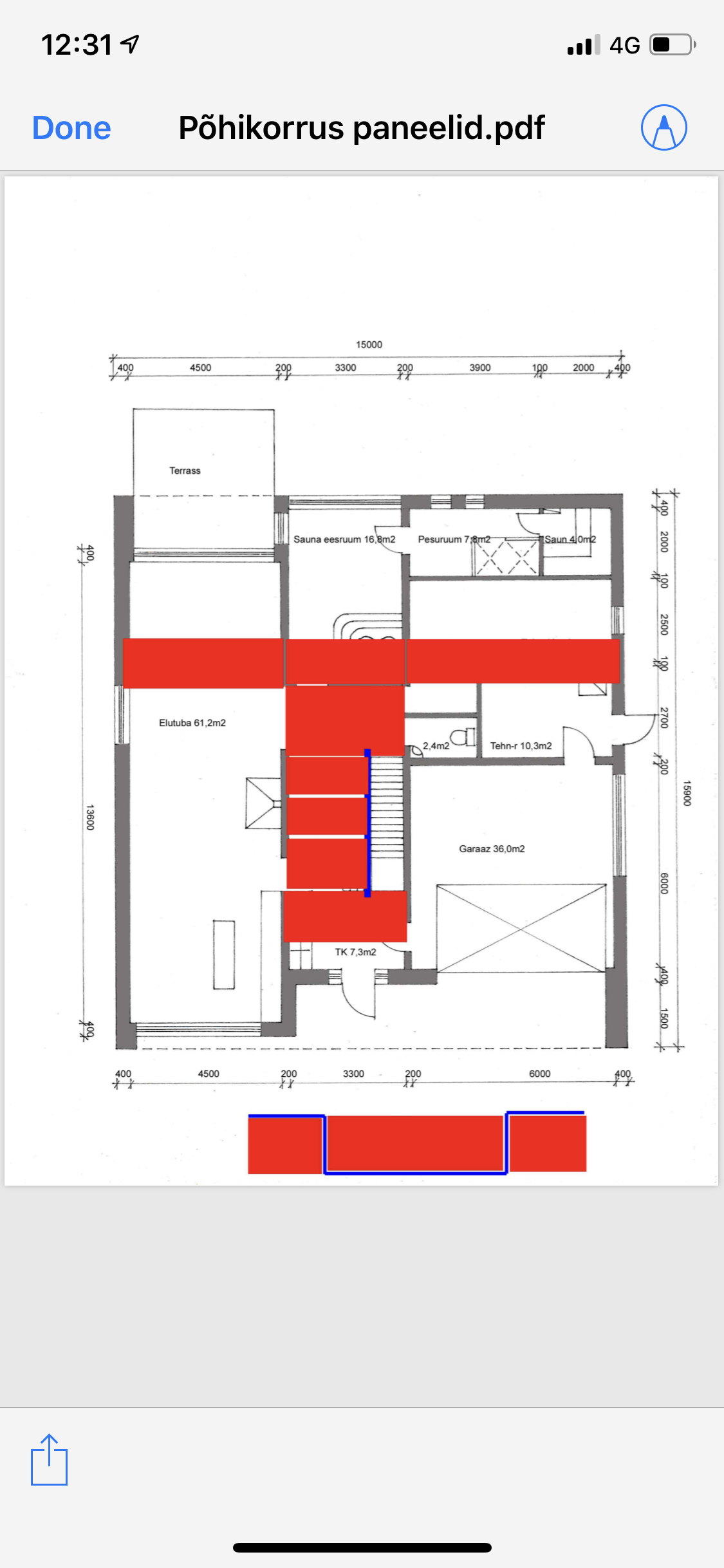
Töö sisu

Eramajale vaja koostada vahelae jaoks õõnespaneelide paigutus joonis, et saaksin võtta pakkumise õõnespaneelide tootjalt.

Pildid, video ja failid

Hanke korraldaja: ettevõte ID34474

Pakkumised

Pakkumisi kokku: 1

Ettevõte Summa Käibemaks Lisatud Vestlus
Kasutaja ikoon ID46555
Pakkuja profiil Väike nool paremale
500€ Ei sisalda Ei sisalda 24.02.2019 Vestlus (0)

Pakkumise kirjeldus:

Tööd teostab vastavat litsentsi omav projekteerija

Küsimused hanke korraldajale

Küsimus: private ID45144   21.02.2019 22:58
Tere.<br />
Õõnespaneelide teostaja projekteerija koostab ise Teile laotusjoonise kasvõi selle sama joonise järgi, mille siiagi lisasite. Mõtteline laotusjoonis saadetakse Teile ülevaatamiseks, kui selle kinnitate, siis lähevad paneelid alles töösse. Võtke paneelide tootjaga ühendust.<br />
<br />
Päikest!<br />
P

Teavita reeglite rikkumisest

Korraldaja vastus: 23.02.2019 08:17

Tere. olen küsinud- müüatel aeg puudub- seega kajuks pean ise tellima

Teavita reeglite rikkumisest

Lisa küsimus

Lisa küsimus

Minu pakkumine

Reeglid

Pakkumise kirjelduse väli on mõeldud pakkumise detailsemaks lahti kirjutamiseks. Pikema teksti mugavaks sisestamiseks klikkige kasti paremal ülaservas oleval ikoonil.
Pakkumist tehes on keelatud postitada enda kontaktandmeid (nimi, telefon, aadress jne). Me jälgime ja analüüsime pakkumisi, et vältida pettuseid ja reeglite rikkumisi.
Rikkumise puhul kasutajakonto blokeeritakse.

 

Teisi töid samas valdkonnas

Valdkonnas "Arhitektibürood" on 4 aktiivset tööd

no-img Pilt puudub

Ehitusprojekt

Asukoht: Pärnumaa, Lemmetsa
Aega jäänud: 2p 5h
Tehtud pakkumisi: 3

36 kohalise hooldekodu projekti koostamine

Asukoht: Pärnumaa, Pärnu
Aega jäänud: 29p 5h
Tehtud pakkumisi: 2

Vanemad teated:

Vaata kõiki

Sellel veebilehel kasutatakse küpsiseid. Kasutamist jätkates nõustute küpsiste kasutamisega.

Sulge
 
Minu pakkumine

Reeglid

Pakkumise kirjelduse väli on mõeldud pakkumise detailsemaks lahti kirjutamiseks. Pikema teksti mugavaks sisestamiseks klikkige kasti paremal ülaservas oleval ikoonil.
Pakkumist tehes on keelatud postitada enda kontaktandmeid (nimi, telefon, aadress jne). Me jälgime ja analüüsime pakkumisi, et vältida pettuseid ja reeglite rikkumisi.
Rikkumise puhul kasutajakonto blokeeritakse.