+ Lisa oma töö      

Otsid ehitajat "Betoonitööd" valdkonnast?

Parima pakkumise ja teostaja leidmiseks lisa oma töö.

Betoonpõrandate ettevalmistustööd ja betoneerimine

ID 46237

1644 vaatamist

Prindi

  • check Pakkumiste tegemine
    kuni 13.03.2019
  • check Võitja valik kuni
    20.03.2019
  • 3 Töö teostamine
    ja hinnang
Hanke lõpp: K, 13. märts, 2019
Maakond: Tartumaa
Muu asula: Tabivere
Tööde algus: E, 01. aprill, 2019 (Soovituslik)
Tööde lõpp: N, 01. august, 2019 (Soovituslik)
Ehitusmaterjalid: Töö tegija poolt

Töö sisu

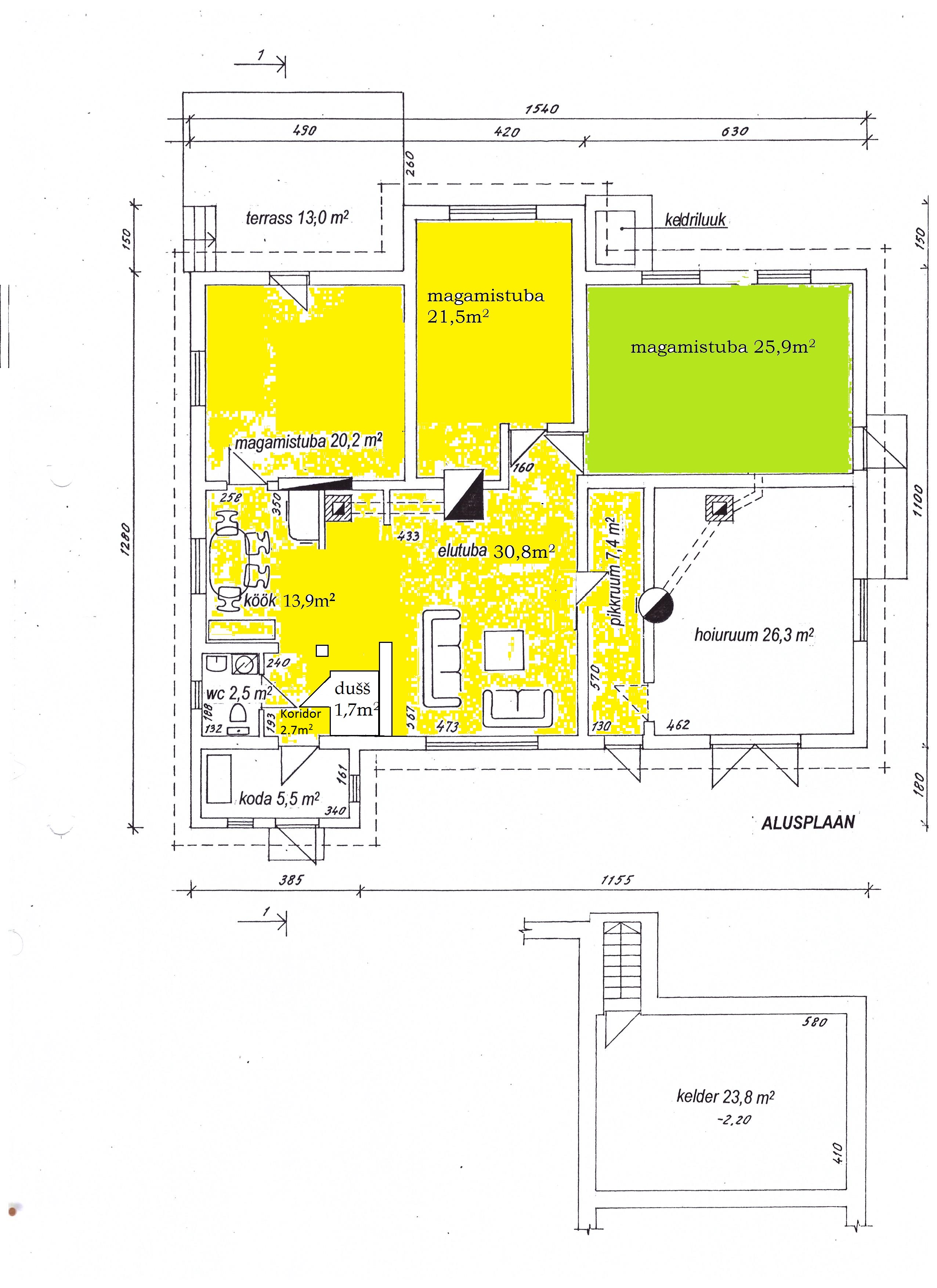
Hanke sisuks on palkmaja I korruse betoonpõrandate ehitus. Manusena on lisatud maja plaan.
Kollasel alal eemaldab hanke korraldaja ise vana põranda kuni mulla pinnaseni. Rohelisel alal on hetkel põrandaks betoon, mille all asub kelder. Hanke korraldaja paigaldab rohelisele alale penoplasti.
Enne betoneerimist paigaldatakse põrandakütte torud küttesüsteemi paigaldaja poolt.

Tööetappide hinnad eraldi välja tuua.


Tööde sisu kollasel alal:

- pinnase täitmine ja tasandamine liivaga
- penoplast kahes kihis 100+50mm
- betoneerimistööd
- betooni tasandamine ja vajadusel lihvimine, et jääks sobiv pind vahetu põrandakatte paigalduseks.

Tööde sisu rohelisel alal:

- betoneerimistööd
- betooni tasandamine ja vajadusel lihvimine, et oleks võimalik hiljem katta vahetult põrandakattega.

Pildid, video ja failid

Hanke korraldaja: eraisik ID44440

Pakkumised

Pakkumisi kokku: 4

Ettevõte Summa Käibemaks Lisatud Vestlus
Kasutaja ikoon ID27879
Pakkuja profiil Väike nool paremale
6 600€ Sisaldab KM Sisaldab KM 01.03.2019 Vestlus (4)

Pakkumise kirjeldus:

Tere
Hind sisaldab;lammutust,liiva,EPS100,kilet,armatuurvõrku 6x150x150,betooni C25/30, transporti,valu+lihv ja ettevalmistustöid.

Kasutaja ikoon ID37908
Pakkuja profiil Väike nool paremale
5 940€ Ei sisalda Ei sisalda 08.03.2019 Vestlus (4)

Pakkumise kirjeldus:

Tere. Hinnapakkumine sisaldab pinnase täitmist/tasandamist/tihendamist, soojustusplaadi paigaldamist, ehituskile ja arm. võrgu paigaldamist ühes kihis kanduritele. Hoone jäikade kandekonstruktsioonide vertikaalpinnad eristame põrandaplaadist 1 kordse 8 mm polüstüreenist eraldusribaga. Betoneerime betooniga C25/30 XC2, lõppviimistlus masinhõõrdega. ... Rohkem

Kasutaja ikoon ID10196
Pakkuja profiil Väike nool paremale
4 800€ Ei sisalda Ei sisalda 12.03.2019 Vestlus (0)

Pakkumise kirjeldus:

Tere.
Kollaneala 96,5m2: pinnase täitmine ja tasandamine liivaga kuni 100mm 500 eur
penoplast kahes kihis 100+50mm 1500 eur
betoneerimistööd(armatuurvõrk ¤6 #150,betoon 80mm) 2200 eur
Rohelineala 25,9 m2;betoneerimistööd( armatuurvõrk ¤6 #150 ,betoon 80 mm 600 eur

Kasutaja ikoon ID38464
Pakkuja profiil Väike nool paremale
4 000€ Ei sisalda Ei sisalda 13.03.2019 Vestlus (0)

Pakkumise kirjeldus:

Hinnapakkumine sisaldab liiva sisse kandmist kuni 10m3 ,tihendamist, loodimist. Penoplasti rohelisele alale kahes kihis 100+50 mm eps 100. Betooni kuni 12,5m3 ja valutööd.HINNAPAKKUMINE EI SISALDA LIIVA. Tellija tarnib liiva, võime ka ise tarnida kui oleme arvutanud täpse koguse. tasumine jooksvalt.

Küsimused hanke korraldajale

Küsimus: private ID50641   09.03.2019 23:35
Kas põrandaküttetorud materjali maksumuse sees või need toob küttesüsteemi paigaldaja ise ?

Teavita reeglite rikkumisest

Korraldaja vastus: 10.03.2019 06:43

Põrandaküttetorud on küttesüsteemi paigaldaja poolt.

Teavita reeglite rikkumisest

Lisa küsimus

Lisa küsimus

Minu pakkumine

Reeglid

Pakkumise kirjelduse väli on mõeldud pakkumise detailsemaks lahti kirjutamiseks. Pikema teksti mugavaks sisestamiseks klikkige kasti paremal ülaservas oleval ikoonil.
Pakkumist tehes on keelatud postitada enda kontaktandmeid (nimi, telefon, aadress jne). Me jälgime ja analüüsime pakkumisi, et vältida pettuseid ja reeglite rikkumisi.
Rikkumise puhul kasutajakonto blokeeritakse.

 

Teisi töid samas valdkonnas

Valdkonnas "Betoonitööd" on 6 aktiivset tööd

Betoonist platsi valamine väljas.

Asukoht: Harjumaa, Luige
Aega jäänud: 9h 29 min
Tehtud pakkumisi: 4

Betoonpõranda valu

Asukoht: Harjumaa, Jõelähtme
Aega jäänud: 2p 9h
Tehtud pakkumisi: 3

Vanemad teated:

Vaata kõiki

Sellel veebilehel kasutatakse küpsiseid. Kasutamist jätkates nõustute küpsiste kasutamisega.

Sulge
 
Minu pakkumine

Reeglid

Pakkumise kirjelduse väli on mõeldud pakkumise detailsemaks lahti kirjutamiseks. Pikema teksti mugavaks sisestamiseks klikkige kasti paremal ülaservas oleval ikoonil.
Pakkumist tehes on keelatud postitada enda kontaktandmeid (nimi, telefon, aadress jne). Me jälgime ja analüüsime pakkumisi, et vältida pettuseid ja reeglite rikkumisi.
Rikkumise puhul kasutajakonto blokeeritakse.