+ Lisa oma töö      

Otsid ehitajat "Korterite remont" valdkonnast?

Parima pakkumise ja teostaja leidmiseks lisa oma töö.

3-toalise korteri kapitaalremont Kohilas

ID 46268

1620 vaatamist

Prindi

  • check Pakkumiste tegemine
    kuni 03.04.2019
  • check Võitja valik kuni
    10.04.2019
  • 3 Töö teostamine
    ja hinnang
Hanke lõpp: K, 3. aprill, 2019
Maakond: Raplamaa
Muu asula: Kohila
Tööde algus: K, 10. aprill, 2019 (Soovituslik)
Tööde lõpp: L, 10. august, 2019 (Soovituslik)
Ehitusmaterjalid: Töö tellija poolt

Töö sisu

Soovin pakkumist 3-toalise korteri kapitaalremondiks.

Korteri info: 68,20 m2 , 3 tuba, köök, WC, vannituba.
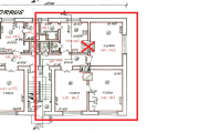
• Vajalik lammutustöö ning välja lammutada kaks ahju. Plaanil tähistatud punase X-iga.
-Vajalik kontrollida üle keldrist või toast põrandatalad, sest korter asub esimesel korussel ja laudpõranda seisukord üle vaadata.
• WC/ vannitoa lammutamine ja renoveerimine
• Seintelt vana katte eemaldamine, maalritööd
• Uute akende paigaldus 3tk. Aknapõskede viimistlus, aknalaudade paigaldamine (aknalauad on olemas)
• Uute uste monteerimine- uued uksed 1 välisuks, 2 magamistoa ust, 1 wc/ vannitoa uks
• Paigaldada parkett /lihvida põrand ja plaatimine esikus ning vannitoas.
• Elektrisüsteemi paigaldamine
• Seinte krohvimine ja värvimine

Elutuba
1. Seinad: krohvitud seinte pahteldamine ja värvimine
2. Lagi: pahteldamine ja värvimine
3. Põrand: olemasoleva puitpõranda lihvimine või asendamine uue parketiga+ põrandaliistude paigaldamine
4. Avatäited: Aknapõskede pahteldamine ja värvimine, uue akna paigaldamine

Magamistoad
1. Seinad: pindande tasandamine/pahteldamine ja värvimine
2. Lagi: pahteldamine ja värvimine
3. Põrand: uus parkett või laudpõranda lihvimine+ põrandaliistude paigaldamine
4. Avatäited: asendada uus uks ette. Aknapõskede tasandamine/pahteldamine ja värvimine, aknalaudade paigaldamine. Ühes magamistoas vajalik ka aknavahetus.
5. Elektriradiaatorite seina paigaldamine akna alla.

Esik
1. Seinad: pindade pahteldamine ja värvimine
2. Lagi: pahteldamine ja värvimine
3. Põrand: uue parketi paigaldamine või laudpõranda lihvimine+ põrandaliistude paigaldamine

Köök
1. Seinad: pindade puhastamine, kõikide pindade pahteldamine ja värvimine
2. Lagi: pahteldamine ja värvimine
3. Põrand: uue parketi paigaldamine+ põrandaliistude paigaldamine
4. Uus aken ning aknapõskede pahteldamine ja värvimine, aknalaudade paigaldamine
5. Muud: paigaldada valamu vee ja kanalisatsiooni ning pesumasina ühendused ning elektripliidile sobiv elektripistik

Vannituba:
1. Vannitoa ja wc vahelise seina lammutamine
2. Seinad: pindande puhastamine, kõikide pindade pahteldamine ja katmine niiskustõkkega ja osaline värvimine
3. Avatäited: panna uus aken ning uks
4. Põrandakütte paigaldamine
5. Plaatimine
6. Vanni, WC poti ja valamu ühenduse valmiduse tegemine

Elektrisüsteem:
1. Paigaldada uus elektrisüsteem
2. Uue elektrikaabeldused
3. Asendada vanad lülitid ja pistikupesad uutega
4. Paigaldada uus korterisisene kaitseautomaatidega elektrikilp



Ehitusmaterjalid: hangib ja toob kohale (peale tellijaga kooskõlastamist) tööde teostaja.

Prügi utiliseerin ise.

Naabritega piirnevale küljele sooviks seina ka õhukest heliisolatsiooni.

Pildid, video ja failid

Hanke korraldaja: eraisik ID50539

Pakkumised

Pakkumisi kokku: 10

Ettevõte Summa Käibemaks Lisatud Vestlus
Kasutaja ikoon ID41619
Pakkuja profiil Väike nool paremale
29 462,4€ Sisaldab KM Sisaldab KM 03.03.2019 Vestlus (0)
Kasutaja ikoon ID23044
Pakkuja profiil Väike nool paremale
10 250€ Ei sisalda Ei sisalda 03.03.2019 Vestlus (2)
Kasutaja ikoon ID47492
Pakkuja profiil Väike nool paremale
34 600€ Ei sisalda Ei sisalda 04.03.2019 Vestlus (0)
Kasutaja ikoon ID50607
Pakkuja profiil Väike nool paremale
23 000€ Ei sisalda Ei sisalda 05.03.2019 Vestlus (0)
Kasutaja ikoon ID50306
Pakkuja profiil Väike nool paremale
438€ Ei sisalda Ei sisalda 06.03.2019 Vestlus (0)

Pakkumise kirjeldus:

Tervist, hind korteri ruutmeetri kohta 438 eurot. Hinnas sisalduvad materjalid ja tarne.
Töö kvaliteetne ja teostatud töödel 2 aastat garantiid.

Kasutaja ikoon ID48540
Pakkuja profiil Väike nool paremale
10 500€ Ei sisalda Ei sisalda 06.03.2019 Vestlus (0)

Pakkumise kirjeldus:

Tere
Hinnas sisalduvad kõik teie poolt loetletud tööd. Samuti materjalide transport objektile. Hinnas ka uue elektrisüsteemi mõõdistused ja dokumentatsioon. Ei sisalda prügi ja lammutusprahi utiliseerimist. Hinda ei kuulu ka ehitusmaterjalid.
Meeldivale koostööle lootma jäädes
Rando

Kasutaja ikoon ID46590
Pakkuja profiil Väike nool paremale
11 000€ Sisaldab KM Sisaldab KM 11.03.2019 Vestlus (0)

Pakkumise kirjeldus:

Tere
Hina pakumine on selline hankes kirjeldatut töötele.
18 kuud karanti töödele.
Lugupidamisega. Jaan

Kasutaja ikoon ID47459
Pakkuja profiil Väike nool paremale
18 205€ Sisaldab KM Sisaldab KM 27.03.2019 Vestlus (0)
Kasutaja ikoon ID46047
Pakkuja profiil Väike nool paremale
9 000€ Ei sisalda Ei sisalda 01.04.2019 Vestlus (0)

Pakkumise kirjeldus:

Tere!
Pakkumine sisaldab hanke kirjelduses märgitud töid ja materjale.
Ei sisalda prügi utiliseerimist.
töödele 2 aastane garantii.

Kasutaja ikoon ID46975
Pakkuja profiil Väike nool paremale
14 960€ Ei sisalda Ei sisalda 03.04.2019 Vestlus (0)

Pakkumise kirjeldus:

Tere. Pakkumises tööraha. Kuna materjalid tarnite ise, siis kahjuks ei anna garantiid, et 30 päevaga korter valmis on. Kuid kui materjalid jooksvalt ees, on kõik võimalik. Hankes kirjas, et materjalid tarnib tellija.

Küsimused hanke korraldajale

Küsimus: private ID50630   07.03.2019 16:10
Tere. Mis on tööde üleandmise eeldatav tähtaeg?

Teavita reeglite rikkumisest

Korraldaja vastus: 26.03.2019 15:08

Ootus on, et tööde alustamisest alates kuni 30 päeva.

Teavita reeglite rikkumisest

Lisa küsimus

Lisa küsimus

Minu pakkumine

Reeglid

Pakkumise kirjelduse väli on mõeldud pakkumise detailsemaks lahti kirjutamiseks. Pikema teksti mugavaks sisestamiseks klikkige kasti paremal ülaservas oleval ikoonil.
Pakkumist tehes on keelatud postitada enda kontaktandmeid (nimi, telefon, aadress jne). Me jälgime ja analüüsime pakkumisi, et vältida pettuseid ja reeglite rikkumisi.
Rikkumise puhul kasutajakonto blokeeritakse.

 

Teisi töid samas valdkonnas

Valdkonnas "Korterite remont" on 2 aktiivset tööd

Vannitoa lampide paigaldus + erinevad pisiparandused korteris

Asukoht: Harjumaa, Tallinn
Aega jäänud: 1p 8h
Tehtud pakkumisi: 3

Korteri kapitaalremont ja ümberehitus (täielik siseviimistlus + elektritööd)

Asukoht: Järvamaa
Aega jäänud: 12p 8h
Tehtud pakkumisi: 0

Vanemad teated:

Vaata kõiki

Sellel veebilehel kasutatakse küpsiseid. Kasutamist jätkates nõustute küpsiste kasutamisega.

Sulge
 
Minu pakkumine

Reeglid

Pakkumise kirjelduse väli on mõeldud pakkumise detailsemaks lahti kirjutamiseks. Pikema teksti mugavaks sisestamiseks klikkige kasti paremal ülaservas oleval ikoonil.
Pakkumist tehes on keelatud postitada enda kontaktandmeid (nimi, telefon, aadress jne). Me jälgime ja analüüsime pakkumisi, et vältida pettuseid ja reeglite rikkumisi.
Rikkumise puhul kasutajakonto blokeeritakse.