+ Lisa oma töö      

Otsid ehitajat "Korterite remont" valdkonnast?

Parima pakkumise ja teostaja leidmiseks lisa oma töö.

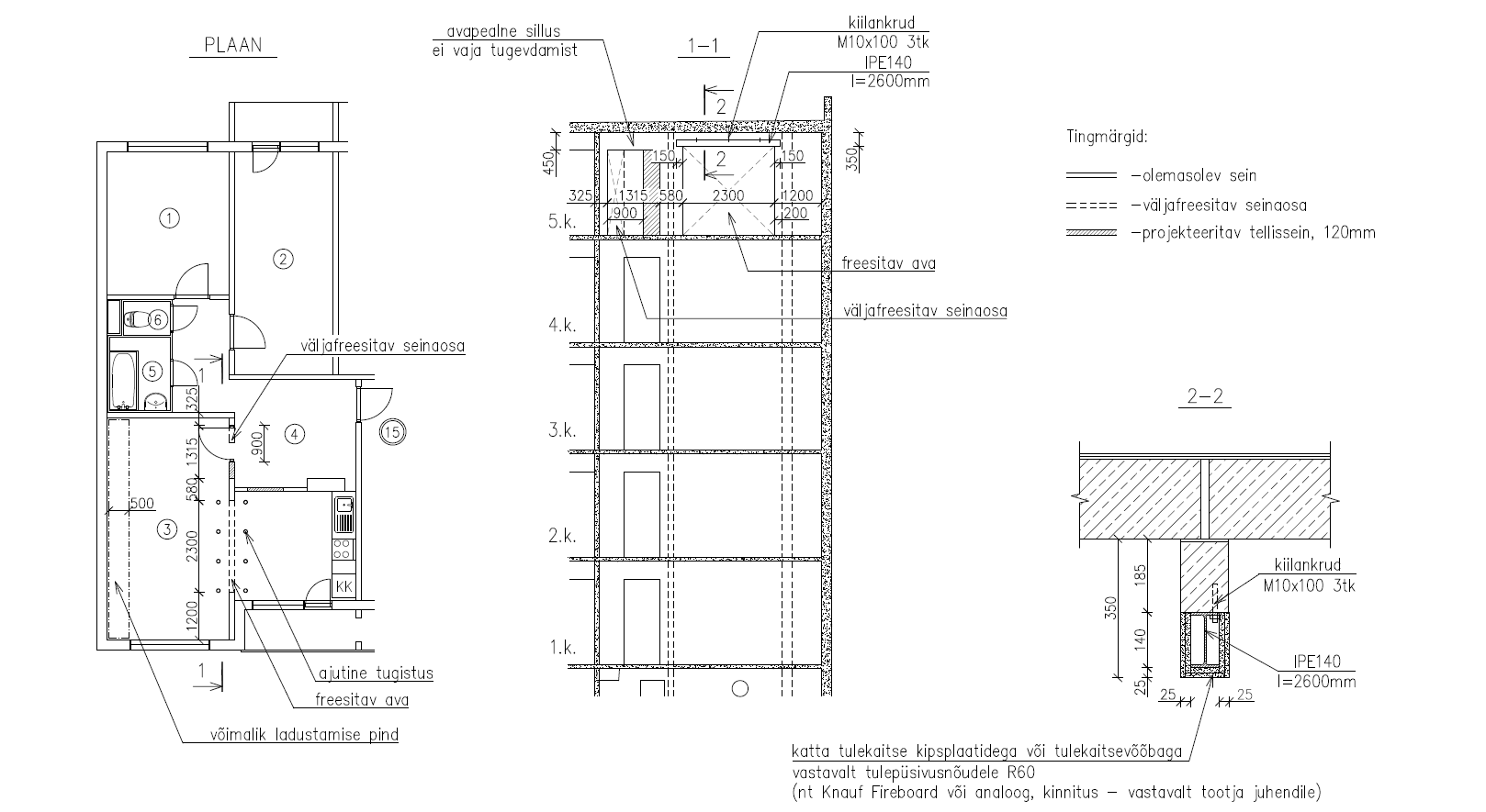
Kandva seina sisse avade freesimine

ID 46287

1651 vaatamist

Prindi

  • check Pakkumiste tegemine
    kuni 11.03.2019
  • check Võitja valik kuni
    18.03.2019
  • 3 Töö teostamine
    ja hinnang
Hanke lõpp: E, 11. märts, 2019
Maakond: Harjumaa
Muu asula: Tabasalu alevik
Tööde algus: E, 11. märts, 2019 (Soovituslik)
Tööde lõpp: P, 17. märts, 2019 (Soovituslik)
Ehitusmaterjalid: Töö tegija poolt

Töö sisu

Tuleb freesida avad Tabasalus paneelmaja 5. korrusel oleva kandva seina sisse ning toestada vastavalt tellija poolt ette antud ehitusprojektile, utiliseerida ehituspraht ning koristada eluruumid ja trepikoda. Kortermajas puudub lift.


Tööde teostamisel tuleb arvestada järgnevaga:
1. Enne avade freesimist kindlaks teha elektrijuhtmete asukohad freesitavas seinas.
Läbilõigatavad juhtmed vooluvõrgust lahti ühendada.
2. Enne avade freesimist toestada laed ajutise tugistusega.
3. Terastala puhastada roostest ja kruntida.
4. Avade lõikamisel tuleb kasutada vibratsioonivaba tehnoloogiat (teemantsaagimine) ja
minimeerida naaberkorteritesse ja koridori kanduvat müra ja tolmu. Freesimistöid võib
teostada ehitusettevõte mis omab vastavat registreeringut Majandustegevuse Registris.
5. Väljafreesitavad seinaosad tuleb freesida mitte suuremate kui ~50x50cm tükkidena.
Tükid koheselt välja vedada või ajutiselt ladustada võimalikult seina äärde plaanil
näidatud piirkonda, mitte üle 2 tüki üksteise peale.
6. Terastala kiiluda tihedalt vastu ava ülemist pinda ja vastu toetuspinda.
7. Ajutised tugistused võib eemaldada peale terastala paigaldamist.
8. Tugevduste teraskonstruktsioonide tulele avatud pinnad tuleb katta tulekaitse
kipsplaatidega või tulekaitsevärviga vastavalt tulepüsivusnõudele R60.


Hinnapakkumine koostada eraldi freesimistööde, ehitusmaterjalide, ehitusjäätmete utiliseerimise ning koristustööde kohta.

Pildid, video ja failid

Hanke korraldaja: eraisik ID50269

Pakkumised

Pakkumisi kokku: 2

Ettevõte Summa Käibemaks Lisatud Vestlus
Kasutaja ikoon ID44093
Pakkuja profiil Väike nool paremale
1 100€ Ei sisalda Ei sisalda 05.03.2019 Vestlus (4)

Pakkumise kirjeldus:

Lõiketööd laiema ava puhul 650.-
Paigaldatav tala pluss tarvikud 150.-
Ukseava laiemaks löikamine 100.-
Utiliseerimine 100.-
Ja muud lisatööd + hange.ee vahendustasu 100.-

Töödega saaks alustada koheselt!
Tasumine koheselt peale tööde teostust sularahas.

Kasutaja ikoon ID37753
Pakkuja profiil Väike nool paremale
1 000€ Ei sisalda Ei sisalda 10.03.2019 Vestlus (1)

Pakkumise kirjeldus:

Tere! Meie hind antud tööle oleks 1000+km.Saab ka ilma km-ta.

Küsimused hanke korraldajale

Hanke korraldajale ei ole veel küsimusi esitatud.

Lisa küsimus

Lisa küsimus

Minu pakkumine

Reeglid

Pakkumise kirjelduse väli on mõeldud pakkumise detailsemaks lahti kirjutamiseks. Pikema teksti mugavaks sisestamiseks klikkige kasti paremal ülaservas oleval ikoonil.
Pakkumist tehes on keelatud postitada enda kontaktandmeid (nimi, telefon, aadress jne). Me jälgime ja analüüsime pakkumisi, et vältida pettuseid ja reeglite rikkumisi.
Rikkumise puhul kasutajakonto blokeeritakse.

 

Teisi töid samas valdkonnas

Valdkonnas "Korterite remont" on 3 aktiivset tööd

Renoveerimine: wc + vannituba

Asukoht: Tartumaa, Tartu
Aega jäänud: 7p 11h
Tehtud pakkumisi: 3

Korteri kapitaalremont ja ümberehitus (täielik siseviimistlus + elektritööd)

Asukoht: Järvamaa
Aega jäänud: 28p 11h
Tehtud pakkumisi: 0

Vanemad teated:

Vaata kõiki

Sellel veebilehel kasutatakse küpsiseid. Kasutamist jätkates nõustute küpsiste kasutamisega.

Sulge
 
Minu pakkumine

Reeglid

Pakkumise kirjelduse väli on mõeldud pakkumise detailsemaks lahti kirjutamiseks. Pikema teksti mugavaks sisestamiseks klikkige kasti paremal ülaservas oleval ikoonil.
Pakkumist tehes on keelatud postitada enda kontaktandmeid (nimi, telefon, aadress jne). Me jälgime ja analüüsime pakkumisi, et vältida pettuseid ja reeglite rikkumisi.
Rikkumise puhul kasutajakonto blokeeritakse.