+ Lisa oma töö      

Otsid ehitajat "Ehitusprojektid" valdkonnast?

Parima pakkumise ja teostaja leidmiseks lisa oma töö.

Korteri projekt ja kooskõlastamine KOV-ga.

ID 46361

1760 vaatamist

Prindi

  • check Pakkumiste tegemine
    kuni 15.03.2019
  • check Võitja valik kuni
    22.03.2019
  • 3 Töö teostamine
    ja hinnang
Hanke lõpp: R, 15. märts, 2019
Maakond: Lääne-Virumaa
Linn: Rakvere
Tööde algus: E, 18. märts, 2019 (Soovituslik)
Tööde lõpp: P, 24. märts, 2019 (Soovituslik)
Ehitusmaterjalid: Töö tellija poolt

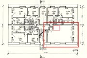
Töö sisu

2- toalise korteri vaheseinte ja põranda lammutamise kooskõlastus KOV-s ja KÜ-ga.
Põrandate lammutamine paneelini. Uute põrandate ehitus.
Idee järgi võikski saada stuudiokorter(üks suur karp), kus on 1 wc/dušš ja kööginurk.

Hiljem tulevikus soov lihtsalt ehitada kergeid vaheseinu, mida saab vajadusel muuta ilma projektita.

Pildid, video ja failid

Hanke korraldaja: ettevõte ID50680

Pakkumised

Pakkumisi kokku: 2

Ettevõte Summa Käibemaks Lisatud Vestlus
Kasutaja ikoon ID42152
Pakkuja profiil Väike nool paremale
300€ Ei sisalda Ei sisalda 12.03.2019 Vestlus (2)

Pakkumise kirjeldus:

Ehitusprojekt eelprojekti staadiumis.
Pakkumishind sisaldab:
Seletuskiri
Korteriplaan
Asendiplaan

NB! Tegemist on mittekandvate seinte ümberehitusega, seega ehitusteatise esitamine koos projektiga KOVle ei ole nõutav.
Ehitusprojekt tulev KOV esitada peale ehitustööde lõppu koos kasutusteatisega

KM ei lisandu
Riigilõivuvaba

Kasutaja ikoon ID34405
Pakkuja profiil Väike nool paremale
250€ Ei sisalda Ei sisalda 15.03.2019 Vestlus (0)

Pakkumise kirjeldus:

Tere,
Plaanilt näha, et kõik seinad on mittekandvad. Ehitusseadustiku mõistes mittekandvate seinte lammutamine ei ole ehitamine, seega mittekandvate elementide mahavõtmine ei nõua ehitusteatist ega kasutusteatist. Tallinnas neid asju saab läbi mõõdistusprojekti, mis kajastab olemasolevat olukorda korteris ning näitab millised seinad on lammutatud ... Rohkem

Küsimused hanke korraldajale

Hanke korraldajale ei ole veel küsimusi esitatud.

Lisa küsimus

Lisa küsimus

Minu pakkumine

Reeglid

Pakkumise kirjelduse väli on mõeldud pakkumise detailsemaks lahti kirjutamiseks. Pikema teksti mugavaks sisestamiseks klikkige kasti paremal ülaservas oleval ikoonil.
Pakkumist tehes on keelatud postitada enda kontaktandmeid (nimi, telefon, aadress jne). Me jälgime ja analüüsime pakkumisi, et vältida pettuseid ja reeglite rikkumisi.
Rikkumise puhul kasutajakonto blokeeritakse.

 

Teisi töid samas valdkonnas

Valdkonnas "Ehitusprojektid" on 5 aktiivset tööd

Korteri elektri projekt

Asukoht: Harjumaa, Tallinn
Aega jäänud: 1p 22h
Tehtud pakkumisi: 2

no-img Pilt puudub

Kortermaja kõigi ruumide mõõdistamine ja DWG faili koostamine

Asukoht: Harjumaa, Tallinn
Aega jäänud: 10p 22h
Tehtud pakkumisi: 1

Vanemad teated:

Vaata kõiki

Sellel veebilehel kasutatakse küpsiseid. Kasutamist jätkates nõustute küpsiste kasutamisega.

Sulge
 
Minu pakkumine

Reeglid

Pakkumise kirjelduse väli on mõeldud pakkumise detailsemaks lahti kirjutamiseks. Pikema teksti mugavaks sisestamiseks klikkige kasti paremal ülaservas oleval ikoonil.
Pakkumist tehes on keelatud postitada enda kontaktandmeid (nimi, telefon, aadress jne). Me jälgime ja analüüsime pakkumisi, et vältida pettuseid ja reeglite rikkumisi.
Rikkumise puhul kasutajakonto blokeeritakse.