+ Lisa oma töö      

Otsid ehitajat "Vundamenditööd" valdkonnast?

Parima pakkumise ja teostaja leidmiseks lisa oma töö.

Maja vundamendi ehitamine Raplamaal Hagudi lähedal

ID 46378

2177 vaatamist

Prindi

  • check Pakkumiste tegemine
    kuni 20.03.2019
  • check Võitja valik kuni
    27.03.2019
  • 3 Töö teostamine
    ja hinnang
Hanke lõpp: K, 20. märts, 2019
Maakond: Raplamaa
Muu asula: Seli-Nurme
Tööde algus: K, 01. mai, 2019 (Soovituslik)
Tööde lõpp: R, 31. mai, 2019 (Soovituslik)
Ehitusmaterjalid: Töö tegija poolt

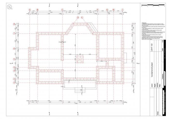
Töö sisu

Vaja eramajale ehitada vundament 60 cm sügavune madal vundament

Pildid, video ja failid

Hanke korraldaja: eraisik ID50689

Pakkumised

Pakkumisi kokku: 2

Ettevõte Summa Käibemaks Lisatud Vestlus
Kasutaja ikoon ID33915
Pakkuja profiil Väike nool paremale
36€ Ei sisalda Ei sisalda 13.03.2019 Vestlus (0)

Pakkumise kirjeldus:

Tere . Oleme kütte lahendus Firma.
Ja pakkume usi inovatilisi kütte lahenusi, miss pole kallid paigaluses ja edaspidi kasutuses.
Täis progromeritav igas tuas digitalset puldid miss märavad sojus temperaturi igas rumis eraldi.
Põranda Kütte torus X-L PIPE. Teie Juhumil talve energija kulu tuleks 000 Kw kuus, kui väljas on -20 kraadi aga sees +22 kr ... Rohkem

Kasutaja ikoon ID36797
Pakkuja profiil Väike nool paremale
50€ Ei sisalda Ei sisalda 20.03.2019 Vestlus (0)

Pakkumise kirjeldus:

Tere,

Kunas infot vähe siis saab hetkel pakkuda umbkaudse ruuduhinna.

Parimat.

Küsimused hanke korraldajale

Küsimus: private ID46975   18.03.2019 21:24
Tere. Kahjuks ma ei saa pilti suumida , kas saaksite kirjutada põrandaruudud ? Kas soovite lintvundamenti või plaatvundamenti? Kas soovite ka põrandaküttetorustikku? Mis küte majja tuleb?

Teavita reeglite rikkumisest

Korraldaja vastus:
Hanke korraldaja ei ole küsimusele veel vastanud

Lisa küsimus

Lisa küsimus

Minu pakkumine

Reeglid

Pakkumise kirjelduse väli on mõeldud pakkumise detailsemaks lahti kirjutamiseks. Pikema teksti mugavaks sisestamiseks klikkige kasti paremal ülaservas oleval ikoonil.
Pakkumist tehes on keelatud postitada enda kontaktandmeid (nimi, telefon, aadress jne). Me jälgime ja analüüsime pakkumisi, et vältida pettuseid ja reeglite rikkumisi.
Rikkumise puhul kasutajakonto blokeeritakse.

 

Teisi töid samas valdkonnas

Valdkonnas "Vundamenditööd" on 9 aktiivset tööd

Plaatvundamendi valamine

Asukoht: Tartumaa, Tartu
Aega jäänud: 2p 8h
Tehtud pakkumisi: 3

no-img Pilt puudub

Plaatvundament koos kommunikatsioonidega

Asukoht: Harjumaa
Aega jäänud: 8h 23 min
Tehtud pakkumisi: 3

Vanemad teated:

Vaata kõiki

Sellel veebilehel kasutatakse küpsiseid. Kasutamist jätkates nõustute küpsiste kasutamisega.

Sulge
 
Minu pakkumine

Reeglid

Pakkumise kirjelduse väli on mõeldud pakkumise detailsemaks lahti kirjutamiseks. Pikema teksti mugavaks sisestamiseks klikkige kasti paremal ülaservas oleval ikoonil.
Pakkumist tehes on keelatud postitada enda kontaktandmeid (nimi, telefon, aadress jne). Me jälgime ja analüüsime pakkumisi, et vältida pettuseid ja reeglite rikkumisi.
Rikkumise puhul kasutajakonto blokeeritakse.