+ Lisa oma töö      

Otsid ehitajat "Fassaaditööd" valdkonnast?

Parima pakkumise ja teostaja leidmiseks lisa oma töö.

Maja välissoojustuse ja välisvoodri paigaldus

ID 46412

2192 vaatamist

Prindi

  • check Pakkumiste tegemine
    kuni 28.03.2019
  • check Võitja valik kuni
    04.04.2019
  • 3 Töö teostamine
    ja hinnang
Hanke lõpp: N, 28. märts, 2019
Maakond: Harjumaa
Muu asula: Tiskre küla
Tööde algus: R, 31. mai, 2019 (Soovituslik)
Tööde lõpp: L, 31. august, 2019 (Soovituslik)
Ehitusmaterjalid: Töö tegija poolt

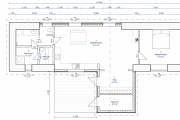
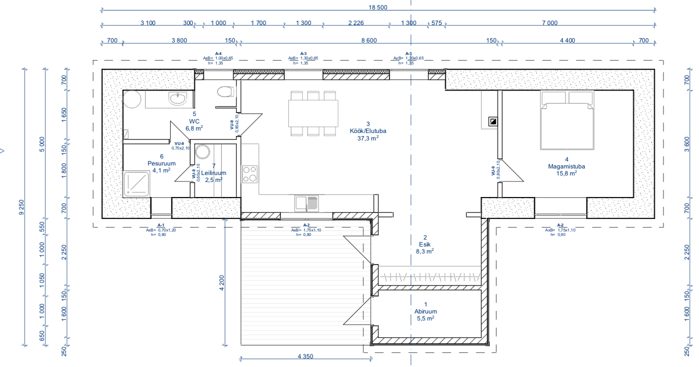
Töö sisu

Ühekorruseline väike maja pinnaga 109m2 koosneb kivi- ja blokiseinadest. Oleks vaja paigaldada soojustus (koos tuule- ja niiskusevastase kihiga) ja välisvoodrilaud just blokiseinadele ja katuse otsaseinadele.

Eelistan eelvärvitud immutatud voodrilaud.
Soojustus: Mineraalviil 100.
Alt on vaja paigaldada näriliste vastase võrgu.

Kokku voodrilauaga kattev pind on 70m2.

Vaadake ka teisi tööd antud objektil minust

Pildid, video ja failid

Hanke korraldaja: eraisik ID31441

Pakkumised

Pakkumisi kokku: 8

Ettevõte Summa Käibemaks Lisatud Vestlus
Kasutaja ikoon ID10230
Pakkuja profiil Väike nool paremale
6 200€ Ei sisalda Ei sisalda 14.03.2019 Vestlus (1)

Pakkumise kirjeldus:

Tere!
Pakun ligikaudset hinda, lisaks küsitule on pakkumisel veelaud, veelaua plekk, aknaplekid jm.

Kasutaja ikoon ID50299
Pakkuja profiil Väike nool paremale
5 950€ Ei sisalda Ei sisalda 14.03.2019 Vestlus (0)

Pakkumise kirjeldus:

Tere.
Meiepoolne pakkumine Teile vastavalt hankes kirjeldatule.
Meeldivale koostööle lootma jäädes

Kasutaja ikoon ID49191
Pakkuja profiil Väike nool paremale
5 520€ Sisaldab KM Sisaldab KM 14.03.2019 Vestlus (0)

Pakkumise kirjeldus:

Tere

Teen pakkumise antud tööle. Ettemaksu soovin materialidele.

Lgp. E.K

Kasutaja ikoon ID38653
Pakkuja profiil Väike nool paremale
6 004,8€ Sisaldab KM Sisaldab KM 15.03.2019 Vestlus (0)

Pakkumise kirjeldus:

Teostatud töödele garantii.

Kasutaja ikoon ID47778
Pakkuja profiil Väike nool paremale
5 950€ Ei sisalda Ei sisalda 18.03.2019 Vestlus (0)

Pakkumise kirjeldus:

Tere.
Pakkumine on tehtud 70 rm2 peale seina soojustamiseks. Sisaldab hankes mainituid materjale.
Tervitades: Ahto

Kasutaja ikoon ID8633
Pakkuja profiil Väike nool paremale
6 300€ Ei sisalda Ei sisalda 19.03.2019 Vestlus (0)
Kasutaja ikoon ID39222
Pakkuja profiil Väike nool paremale
5 300€ Ei sisalda Ei sisalda 23.03.2019 Vestlus (0)
Kasutaja ikoon ID46975
Pakkuja profiil Väike nool paremale
62€ Ei sisalda Ei sisalda 23.03.2019 Vestlus (0)

Pakkumise kirjeldus:

Tere. Pakkumisesruutmeetri hind materjalid ja töö arvetsuslikult 70m2 seinapinnaga. Peale laudise paigaldust arvestatud ka laudise ülevärvimisega ( laudis krunditud ja värvitud )

Küsimused hanke korraldajale

Küsimus: private ID37656   15.03.2019 08:52
Tere.<br />
Millal on reaalne võimalus töödega alustada ? Hankes märgitud 31 mai.<br />
<br />
Lgp

Teavita reeglite rikkumisest

Korraldaja vastus: 15.03.2019 10:08

See sõltub sellest millal saab valmis katus, ja seina tööd. Mina küll eelistan niipealt kui võimalik, aga siiski arvan et Juuni-Juuli jooksul.

Teavita reeglite rikkumisest

Küsimus: private ID44785   18.03.2019 00:47
Tere.<br />
<br />
<br />
KAs katusele ehitajad olemas ?

Teavita reeglite rikkumisest

Korraldaja vastus: 18.03.2019 09:29

ei, otsin

Teavita reeglite rikkumisest

Lisa küsimus

Lisa küsimus

Minu pakkumine

Reeglid

Pakkumise kirjelduse väli on mõeldud pakkumise detailsemaks lahti kirjutamiseks. Pikema teksti mugavaks sisestamiseks klikkige kasti paremal ülaservas oleval ikoonil.
Pakkumist tehes on keelatud postitada enda kontaktandmeid (nimi, telefon, aadress jne). Me jälgime ja analüüsime pakkumisi, et vältida pettuseid ja reeglite rikkumisi.
Rikkumise puhul kasutajakonto blokeeritakse.

 

Teisi töid samas valdkonnas

Valdkonnas "Fassaaditööd" on 12 aktiivset tööd

Akende ja viilude parandus ja värvimine

Asukoht: Valgamaa, Valga
Aega jäänud: 8h 52 min
Tehtud pakkumisi: 3

Eramaja vintskapide laudise paigaldus

Asukoht: Pärnumaa, Pärnu-Jaagupi
Aega jäänud: 9p 8h
Tehtud pakkumisi: 2

Vanemad teated:

Vaata kõiki

Sellel veebilehel kasutatakse küpsiseid. Kasutamist jätkates nõustute küpsiste kasutamisega.

Sulge
 
Minu pakkumine

Reeglid

Pakkumise kirjelduse väli on mõeldud pakkumise detailsemaks lahti kirjutamiseks. Pikema teksti mugavaks sisestamiseks klikkige kasti paremal ülaservas oleval ikoonil.
Pakkumist tehes on keelatud postitada enda kontaktandmeid (nimi, telefon, aadress jne). Me jälgime ja analüüsime pakkumisi, et vältida pettuseid ja reeglite rikkumisi.
Rikkumise puhul kasutajakonto blokeeritakse.