+ Lisa oma töö      

Otsid ehitajat "Betoonitööd" valdkonnast?

Parima pakkumise ja teostaja leidmiseks lisa oma töö.

Betoon põrand

ID 46472

1931 vaatamist

Prindi

  • check Pakkumiste tegemine
    kuni 18.04.2019
  • check Võitja valik kuni
    25.04.2019
  • 3 Töö teostamine
    ja hinnang
Hanke lõpp: N, 18. aprill, 2019
Maakond: Pärnumaa
Muu asula: Vändra
Tööde algus: E, 01. juuli, 2019 (Soovituslik)
Tööde lõpp: R, 12. juuli, 2019 (Soovituslik)
Ehitusmaterjalid: Töö tellija poolt

Töö sisu

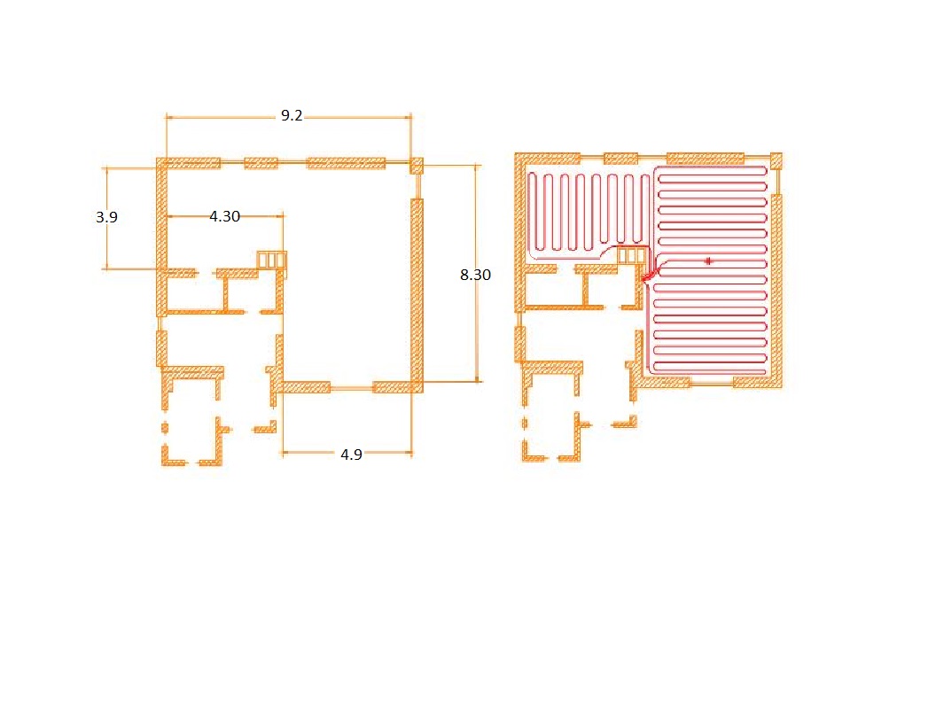
Betoon põranda valamine koos eeltöödega. Põrand 60m2. Tagasi täitmine ca 25cm, 50 mm EPS vundamendi äärde, 2x100mm EPS maha, armatuur ja 16mm põrandaküttetoru.

Pildid, video ja failid

Hanke korraldaja: eraisik ID50759

Pakkumised

Pakkumisi kokku: 5

Ettevõte Summa Käibemaks Lisatud Vestlus
Kasutaja ikoon ID38464
Pakkuja profiil Väike nool paremale
1 600€ Ei sisalda Ei sisalda 27.03.2019 Vestlus (0)

Pakkumise kirjeldus:

Tere. tööraha

Kasutaja ikoon ID51052
Pakkuja profiil Väike nool paremale
6 300€ Sisaldab KM Sisaldab KM 14.04.2019 Vestlus (0)

Pakkumise kirjeldus:

Tere

Ettemaks on esmaste kulude katteks.

Tervitades

Kasutaja ikoon ID46047
Pakkuja profiil Väike nool paremale
1 300€ Ei sisalda Ei sisalda 15.04.2019 Vestlus (0)

Pakkumise kirjeldus:

Tere!
Pakkumine töörahale, materjalid tellija poolt.

Kasutaja ikoon ID50618
Pakkuja profiil Väike nool paremale
1 410€ Ei sisalda Ei sisalda 17.04.2019 Vestlus (0)

Pakkumise kirjeldus:

Hind sisaldab kõiki töid + betooni valamine. Hind ei sisalda materjale.
Käibemaksu ei lisandu.

Kasutaja ikoon ID36797
Pakkuja profiil Väike nool paremale
3 000€ Sisaldab KM Sisaldab KM 18.04.2019 Vestlus (0)

Küsimused hanke korraldajale

Küsimus: private ID33915   18.04.2019 12:16
Tere . Meie tegeleme energija sastlikuga põranda küttelahendustega-<br />
aga muid tõõsi me eite. pakkuda Hanke jargi meie polikud tõõd eisa-<br />
Miste arvate.<br />
Lugupidamisega.

Teavita reeglite rikkumisest

Korraldaja vastus:
Hanke korraldaja ei ole küsimusele veel vastanud

Lisa küsimus

Lisa küsimus

Minu pakkumine

Reeglid

Pakkumise kirjelduse väli on mõeldud pakkumise detailsemaks lahti kirjutamiseks. Pikema teksti mugavaks sisestamiseks klikkige kasti paremal ülaservas oleval ikoonil.
Pakkumist tehes on keelatud postitada enda kontaktandmeid (nimi, telefon, aadress jne). Me jälgime ja analüüsime pakkumisi, et vältida pettuseid ja reeglite rikkumisi.
Rikkumise puhul kasutajakonto blokeeritakse.

 

Teisi töid samas valdkonnas

Valdkonnas "Betoonitööd" on 2 aktiivset tööd

Kasvuhoone vundamnet

Asukoht: Tartumaa, Tartu
Aega jäänud: 3h 11 min
Tehtud pakkumisi: 1

no-img Pilt puudub

Betoonplats aeda

Asukoht: Harjumaa, Tallinn
Aega jäänud: 1p 3h
Tehtud pakkumisi: 0

Vanemad teated:

Vaata kõiki

Sellel veebilehel kasutatakse küpsiseid. Kasutamist jätkates nõustute küpsiste kasutamisega.

Sulge
 
Minu pakkumine

Reeglid

Pakkumise kirjelduse väli on mõeldud pakkumise detailsemaks lahti kirjutamiseks. Pikema teksti mugavaks sisestamiseks klikkige kasti paremal ülaservas oleval ikoonil.
Pakkumist tehes on keelatud postitada enda kontaktandmeid (nimi, telefon, aadress jne). Me jälgime ja analüüsime pakkumisi, et vältida pettuseid ja reeglite rikkumisi.
Rikkumise puhul kasutajakonto blokeeritakse.