+ Lisa oma töö      

Otsid ehitajat "Inseneribürood" valdkonnast?

Parima pakkumise ja teostaja leidmiseks lisa oma töö.

Inseneri projektsioonid eramajale

ID 46487

1742 vaatamist

Prindi

  • check Pakkumiste tegemine
    kuni 19.04.2019
  • check Võitja valik kuni
    26.04.2019
  • 3 Töö teostamine
    ja hinnang
Hanke lõpp: R, 19. aprill, 2019
Maakond: Harjumaa
Linn: Tallinn
Tööde algus: E, 01. aprill, 2019 (Soovituslik)
Tööde lõpp: K, 01. mai, 2019
Ehitusmaterjalid: Töö tegija poolt

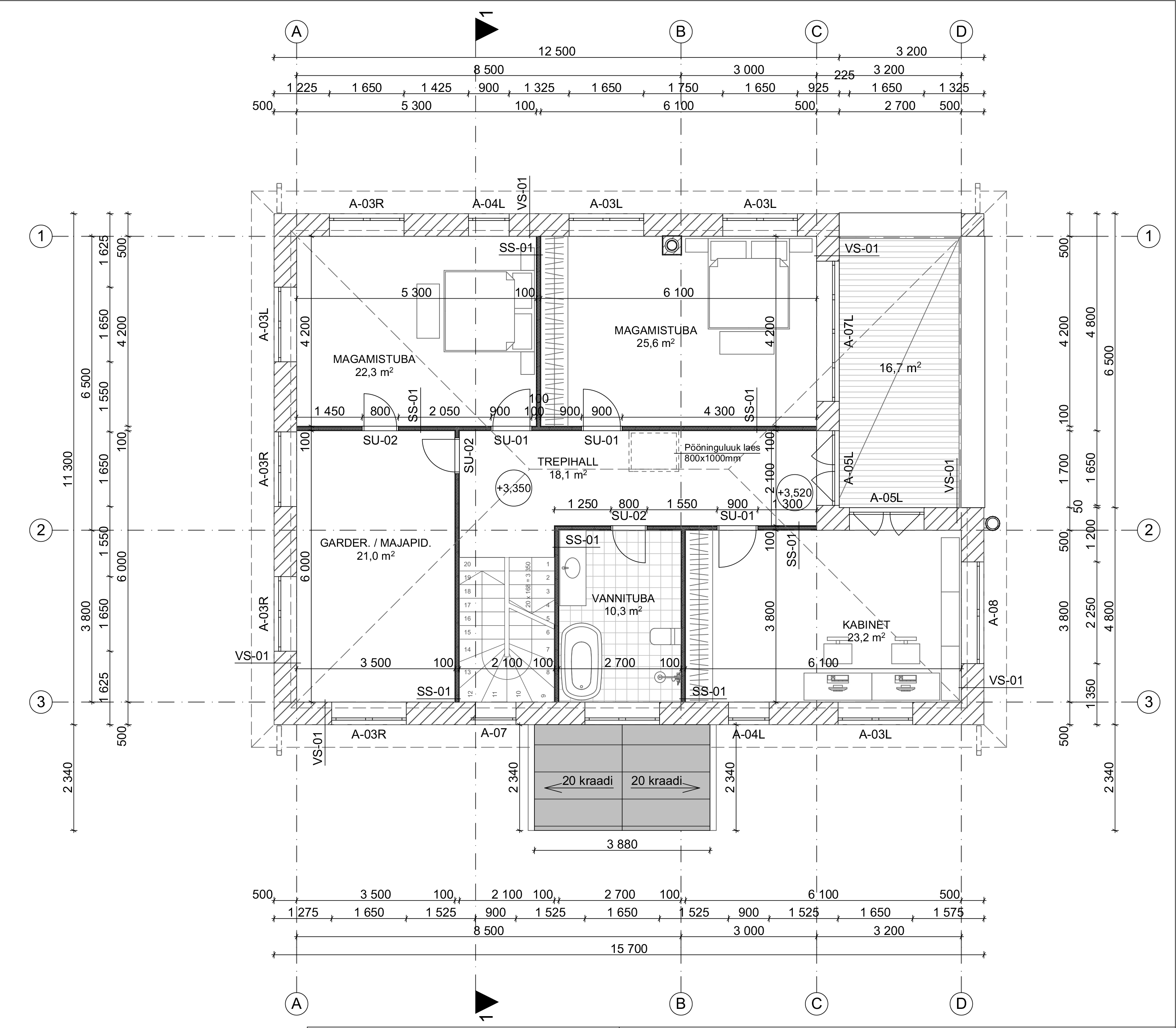
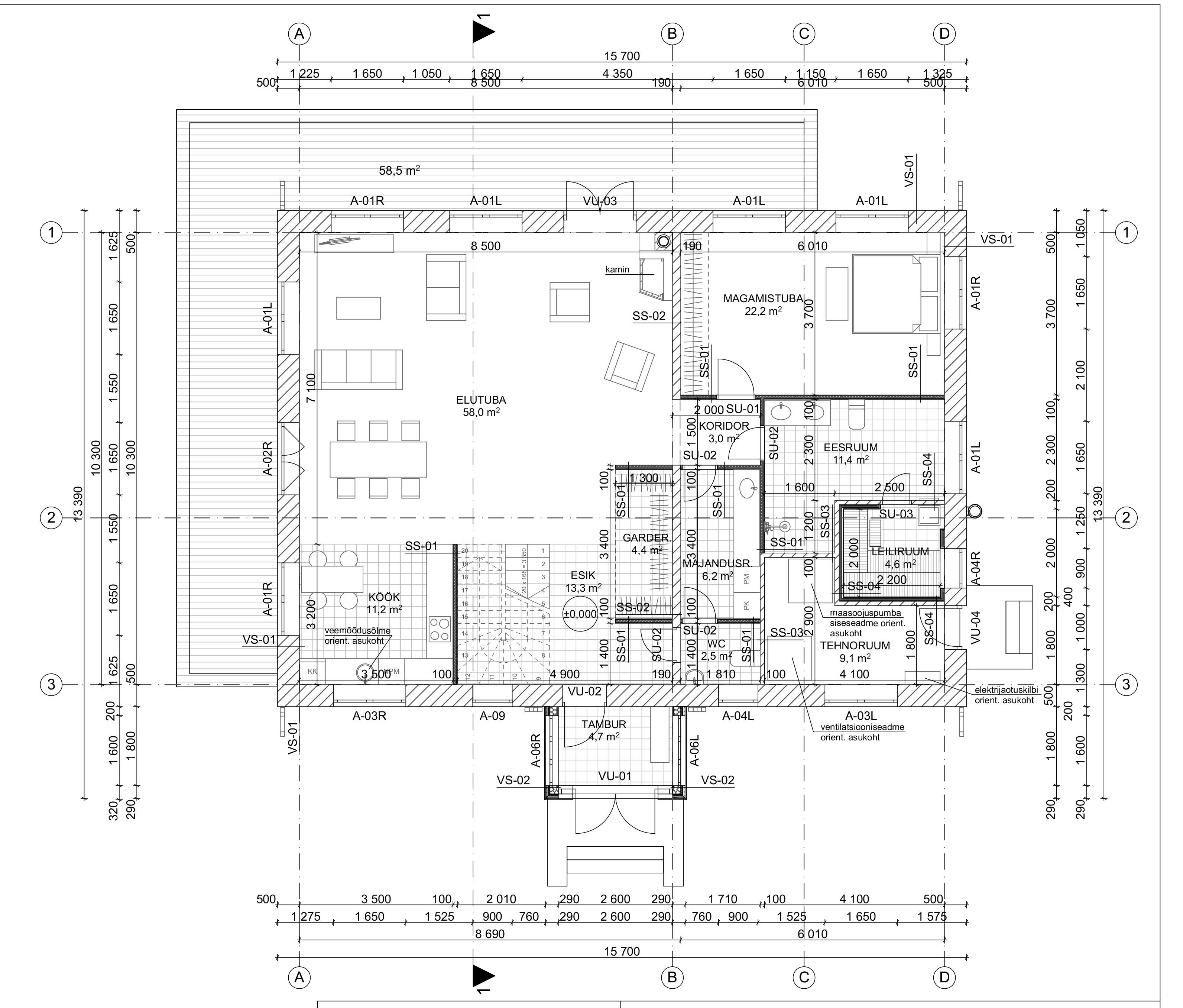
Töö sisu

Soovime saada hinnapakkumist jargmistele inseneri projektsioonidele eramajale:

1. Veevarustus (sisemine ja välimine)

2. Kanalisatsioon

3. Kütteprojektsioon

4. Ventilatsiooni projektsioon

5. Sisemised elektrivõrkud

6. Välimine elektri liitumine

7. Geodeesia

8. Geoloogia

Pildid, video ja failid

Hanke korraldaja: eraisik ID50766

Pakkumised

Pakkumisi kokku: 1

Ettevõte Summa Käibemaks Lisatud Vestlus
Kasutaja ikoon ID46491
Pakkuja profiil Väike nool paremale
3 900€ Ei sisalda Ei sisalda 20.03.2019 Vestlus (0)

Pakkumise kirjeldus:

Tere
Mee hinnas on arvestatud järgmise osadega:
1) Veevarustuse ja kanalisatsiooni projekt (sise-ja välisosad) - 1200 eur
2) Küte-ja ventilatsiooniprojektid - 900 eur
3) Elektriprojekt (sisevõrk ja liitumine)- 950 eur

4) Geodeesia - 350 eur
5) Geoloogia - 500 eur

Omame kõiki litsense ning toimetame turul juba 7a.
Vajadusel saame pakkuda ka k ... Rohkem

Küsimused hanke korraldajale

Hanke korraldajale ei ole veel küsimusi esitatud.

Lisa küsimus

Lisa küsimus

Minu pakkumine

Reeglid

Pakkumise kirjelduse väli on mõeldud pakkumise detailsemaks lahti kirjutamiseks. Pikema teksti mugavaks sisestamiseks klikkige kasti paremal ülaservas oleval ikoonil.
Pakkumist tehes on keelatud postitada enda kontaktandmeid (nimi, telefon, aadress jne). Me jälgime ja analüüsime pakkumisi, et vältida pettuseid ja reeglite rikkumisi.
Rikkumise puhul kasutajakonto blokeeritakse.

 

Vanemad teated:

Vaata kõiki

Sellel veebilehel kasutatakse küpsiseid. Kasutamist jätkates nõustute küpsiste kasutamisega.

Sulge
 
Minu pakkumine

Reeglid

Pakkumise kirjelduse väli on mõeldud pakkumise detailsemaks lahti kirjutamiseks. Pikema teksti mugavaks sisestamiseks klikkige kasti paremal ülaservas oleval ikoonil.
Pakkumist tehes on keelatud postitada enda kontaktandmeid (nimi, telefon, aadress jne). Me jälgime ja analüüsime pakkumisi, et vältida pettuseid ja reeglite rikkumisi.
Rikkumise puhul kasutajakonto blokeeritakse.