+ Lisa oma töö      

Hange on lõppenud!

Võitjaks osutus kasutaja ID 1288

Elektritööd

ID 465

7309 vaatamist

Prindi

  • check Pakkumiste tegemine
    kuni 04.04.2006
  • check Võitja valik kuni
    11.04.2006
  • 3 Töö teostamine
    ja hinnang
Hanke lõpp: T, 4. aprill, 2006
Maakond: Harjumaa
Linn: Tallinn
Tööde algus: R, 05. mai, 2006 (Soovituslik)
Tööde lõpp: N, 30. aprill, 2026 (Soovituslik)
Ehitusmaterjalid: Töö tegija poolt

Töö sisu

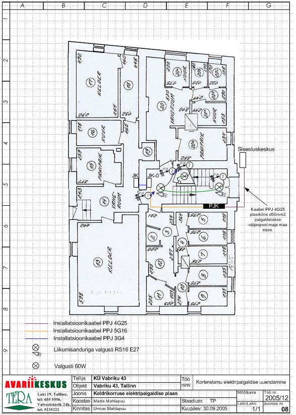
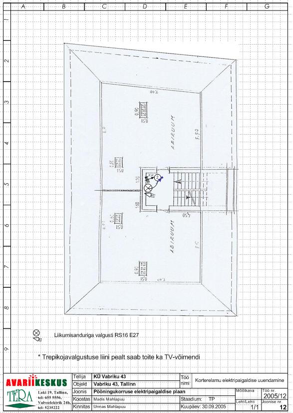
KÜ otsib elektritööde teostajat vastavalt olemasolevale projektile. Tegemisse läheks kogu ühitu elekter koos välisvalgustusega alates Liitumispunktist Eesti energiaga lõpetades korterite arvestite juures.

Pildid, video ja failid

Hanke korraldaja: eraisik ID1066

Pakkumised

Pakkumisi kokku: 1

Ettevõte Summa Käibemaks Lisatud Vestlus
Kasutaja ikoon ID1288
Pakkuja profiil Väike nool paremale
5 943,8€ Sisaldab KM Sisaldab KM 30.03.2006 Vestlus (0)

Küsimused hanke korraldajale

Küsimus: private ID682   22.03.2006 12:16
Sooviksime jooniseid

Teavita reeglite rikkumisest

Korraldaja vastus: 30.04.2026 11:05

Panen õhtuks internetti üles

Teavita reeglite rikkumisest

Küsimus: private ID297   25.03.2006 08:57
sooviks maja vaatama tulla lasveter@lasveter.ee

Teavita reeglite rikkumisest

Korraldaja vastus: 30.04.2026 11:05

Saatsin teile vastavasisulise e-maili (andreas.aben@gmail.com)

Teavita reeglite rikkumisest

Lisa küsimus

Lisa küsimus

Minu pakkumine

Reeglid

Pakkumise kirjelduse väli on mõeldud pakkumise detailsemaks lahti kirjutamiseks. Pikema teksti mugavaks sisestamiseks klikkige kasti paremal ülaservas oleval ikoonil.
Pakkumist tehes on keelatud postitada enda kontaktandmeid (nimi, telefon, aadress jne). Me jälgime ja analüüsime pakkumisi, et vältida pettuseid ja reeglite rikkumisi.
Rikkumise puhul kasutajakonto blokeeritakse.

 

Vanemad teated:

Vaata kõiki

Sellel veebilehel kasutatakse küpsiseid. Kasutamist jätkates nõustute küpsiste kasutamisega.

Sulge
 
Minu pakkumine

Reeglid

Pakkumise kirjelduse väli on mõeldud pakkumise detailsemaks lahti kirjutamiseks. Pikema teksti mugavaks sisestamiseks klikkige kasti paremal ülaservas oleval ikoonil.
Pakkumist tehes on keelatud postitada enda kontaktandmeid (nimi, telefon, aadress jne). Me jälgime ja analüüsime pakkumisi, et vältida pettuseid ja reeglite rikkumisi.
Rikkumise puhul kasutajakonto blokeeritakse.