+ Lisa oma töö      

Otsid ehitajat "Vundamenditööd" valdkonnast?

Parima pakkumise ja teostaja leidmiseks lisa oma töö.

Sauna vundamendi ehitus

ID 46804

1314 vaatamist

Prindi

  • check Pakkumiste tegemine
    kuni 22.04.2019
  • check Võitja valik kuni
    29.04.2019
  • 3 Töö teostamine
    ja hinnang
Hanke lõpp: E, 22. aprill, 2019
Maakond: Saaremaa
Muu asula: aste
Tööde algus: E, 29. aprill, 2019 (Soovituslik)
Tööde lõpp: K, 29. mai, 2019 (Soovituslik)
Ehitusmaterjalid: Töö tegija poolt

Töö sisu

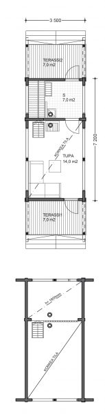
Sooviksin plaatvundamendi ehitust alates pinnase koorimisest lõpetades betoonvalu lihvimisega. Terasside alla postvundament. Koos kanalisatsiooni ja veetorustikuga.Veetrassi pikkuseks 50m Kanalisatsiooni trassi pikkus 25m

Pildid, video ja failid

Hanke korraldaja: eraisik ID18775

Pakkumised

Pakkumisi kokku: 1

Ettevõte Summa Käibemaks Lisatud Vestlus
Kasutaja ikoon ID46975
Pakkuja profiil Väike nool paremale
4 575€ Ei sisalda Ei sisalda 22.04.2019 Vestlus (0)

Pakkumise kirjeldus:

Tere. pakkumises vundament koos terrassi postidega . Vesi, kanal 70euri jooksev meeter

Küsimused hanke korraldajale

Hanke korraldajale ei ole veel küsimusi esitatud.

Lisa küsimus

Lisa küsimus

Minu pakkumine

Reeglid

Pakkumise kirjelduse väli on mõeldud pakkumise detailsemaks lahti kirjutamiseks. Pikema teksti mugavaks sisestamiseks klikkige kasti paremal ülaservas oleval ikoonil.
Pakkumist tehes on keelatud postitada enda kontaktandmeid (nimi, telefon, aadress jne). Me jälgime ja analüüsime pakkumisi, et vältida pettuseid ja reeglite rikkumisi.
Rikkumise puhul kasutajakonto blokeeritakse.

 

Teisi töid samas valdkonnas

Valdkonnas "Vundamenditööd" on 9 aktiivset tööd

Plaatvundamendi valamine

Asukoht: Tartumaa, Tartu
Aega jäänud: 2p 8h
Tehtud pakkumisi: 3

no-img Pilt puudub

Plaatvundament koos kommunikatsioonidega

Asukoht: Harjumaa
Aega jäänud: 8h 26 min
Tehtud pakkumisi: 3

Vanemad teated:

Vaata kõiki

Sellel veebilehel kasutatakse küpsiseid. Kasutamist jätkates nõustute küpsiste kasutamisega.

Sulge
 
Minu pakkumine

Reeglid

Pakkumise kirjelduse väli on mõeldud pakkumise detailsemaks lahti kirjutamiseks. Pikema teksti mugavaks sisestamiseks klikkige kasti paremal ülaservas oleval ikoonil.
Pakkumist tehes on keelatud postitada enda kontaktandmeid (nimi, telefon, aadress jne). Me jälgime ja analüüsime pakkumisi, et vältida pettuseid ja reeglite rikkumisi.
Rikkumise puhul kasutajakonto blokeeritakse.