+ Lisa oma töö      

Otsid ehitajat "Eramu ehitus" valdkonnast?

Parima pakkumise ja teostaja leidmiseks lisa oma töö.

Elamu renoveerimine

ID 46844

1005 vaatamist

Prindi

  • check Pakkumiste tegemine
    kuni 24.04.2019
  • check Võitja valik kuni
    01.05.2019
  • 3 Töö teostamine
    ja hinnang
Hanke lõpp: K, 24. aprill, 2019
Maakond: Tartumaa
Linn: Tartu
Tööde algus: E, 10. juuni, 2019 (Soovituslik)
Tööde lõpp: E, 29. juuli, 2019 (Soovituslik)
Ehitusmaterjalid: Töö tellija poolt

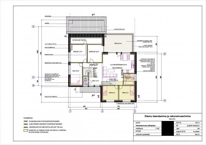
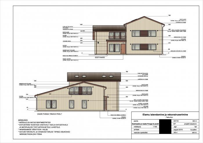
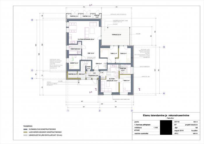
Töö sisu

Fassaadi tööd.
* Isover RKL FACADE paigaldus koos teipimisega ( kinnitada olemas olevasse puitlaudisesse ja alumise sõrestikuga 25x100mm kinnitada, mitte tüüblitega).
* sõrestik alumine 25x100 (vertik.) ja sõrestik pealmine 50x50 ( horis.) ja rihtimine nurgikutega.
* täispunnlaudis 145mm vertik. ( vajadusel otsa liited soonida ja vineeri/liimiga omavahel liita)
* akna/ukse põsed (projekti põhiselt)

Katuse tööd.
*uute sarikate paigaldus 50x200 koos uue müürilatiga. Sarikad harjast mõlemalt poolt kinnitada vineeriga (22mm)
* sarikate peale tuuletõkkekile
* sarikate peale tuulutusliist 50x50
* aluskate
* roovitus 25x50
* trapetsplekki paigaldus koos harja ja ääreplekkiga.

Vana fassaadi ja katuse eemaldamine tellja poolt. Samuti tellingud ja vajaminev eh.materjal tellija poolt.

Ootan pakkumist tööle ehk m2 põhiselt ja ehitusele kuluvale ajale.

Planeeritav ehitustööde algus juuni keskel.

Pildid, video ja failid

Hanke korraldaja: eraisik ID38997

Pakkumised

Pakkumisi kokku: 0

Küsimused hanke korraldajale

Hanke korraldajale ei ole veel küsimusi esitatud.

Lisa küsimus

Lisa küsimus

Minu pakkumine

Reeglid

Pakkumise kirjelduse väli on mõeldud pakkumise detailsemaks lahti kirjutamiseks. Pikema teksti mugavaks sisestamiseks klikkige kasti paremal ülaservas oleval ikoonil.
Pakkumist tehes on keelatud postitada enda kontaktandmeid (nimi, telefon, aadress jne). Me jälgime ja analüüsime pakkumisi, et vältida pettuseid ja reeglite rikkumisi.
Rikkumise puhul kasutajakonto blokeeritakse.

 

Vanemad teated:

Vaata kõiki

Sellel veebilehel kasutatakse küpsiseid. Kasutamist jätkates nõustute küpsiste kasutamisega.

Sulge
 
Minu pakkumine

Reeglid

Pakkumise kirjelduse väli on mõeldud pakkumise detailsemaks lahti kirjutamiseks. Pikema teksti mugavaks sisestamiseks klikkige kasti paremal ülaservas oleval ikoonil.
Pakkumist tehes on keelatud postitada enda kontaktandmeid (nimi, telefon, aadress jne). Me jälgime ja analüüsime pakkumisi, et vältida pettuseid ja reeglite rikkumisi.
Rikkumise puhul kasutajakonto blokeeritakse.