+ Lisa oma töö      

Otsid ehitajat "Üldehitus" valdkonnast?

Parima pakkumise ja teostaja leidmiseks lisa oma töö.

Eramu rekonstruktsioon ja juurdeehitus

ID 46887

2837 vaatamist

Prindi

  • check Pakkumiste tegemine
    kuni 12.05.2019
  • check Võitja valik kuni
    19.05.2019
  • 3 Töö teostamine
    ja hinnang
Hanke lõpp: P, 12. mai, 2019
Maakond: Harjumaa
Muu asula: Kristiine
Tööde algus: T, 25. juuni, 2019 (Soovituslik)
Tööde lõpp: E, 30. september, 2019 (Soovituslik)
Ehitusmaterjalid: Töö tegija poolt

Töö sisu

Vabandame, hanke kirjeldus puudus eelmisel nädalal kogemata süsteemivea tõttu ja on tänaseks kõigile huvilistele taas nähtav!

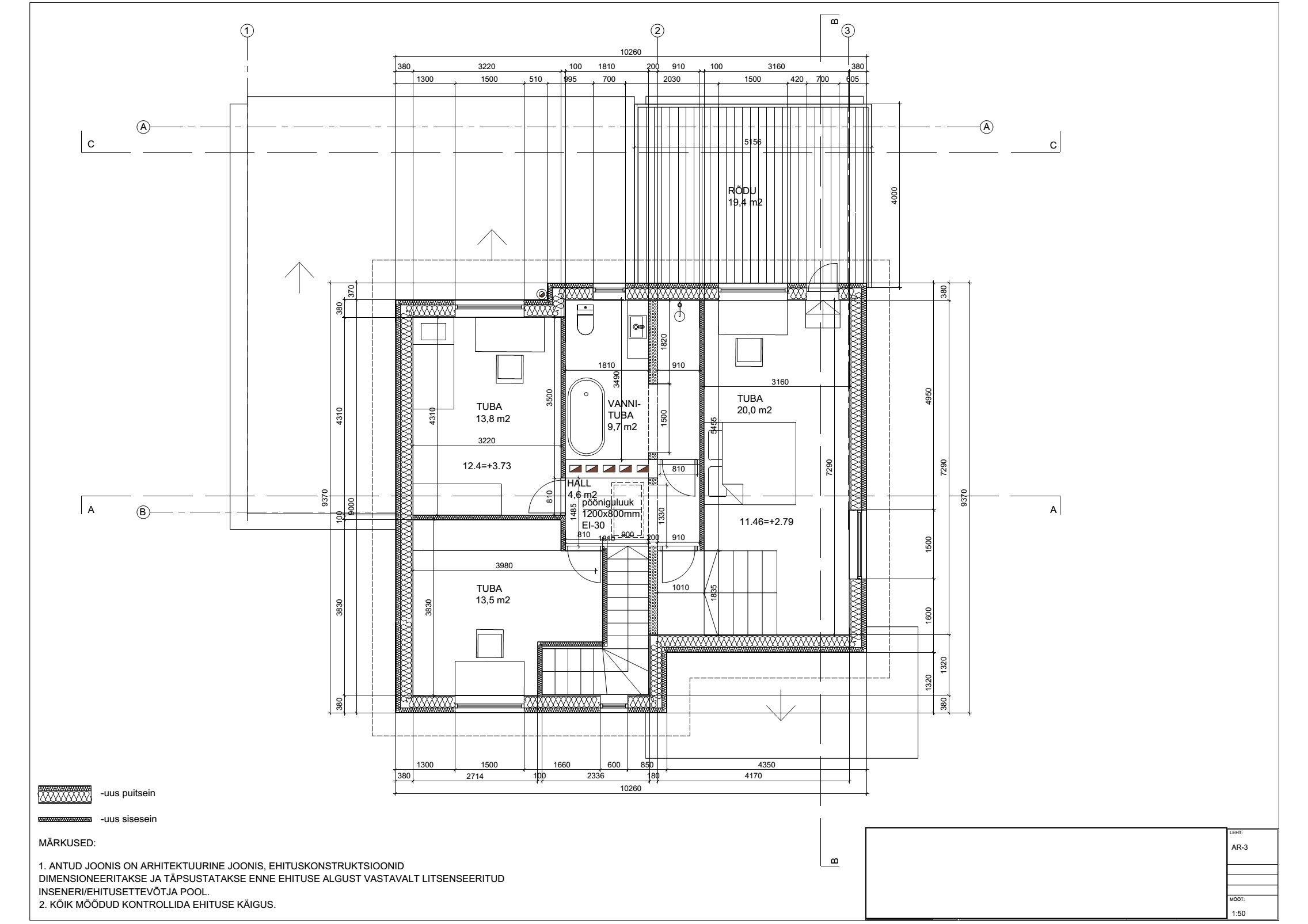
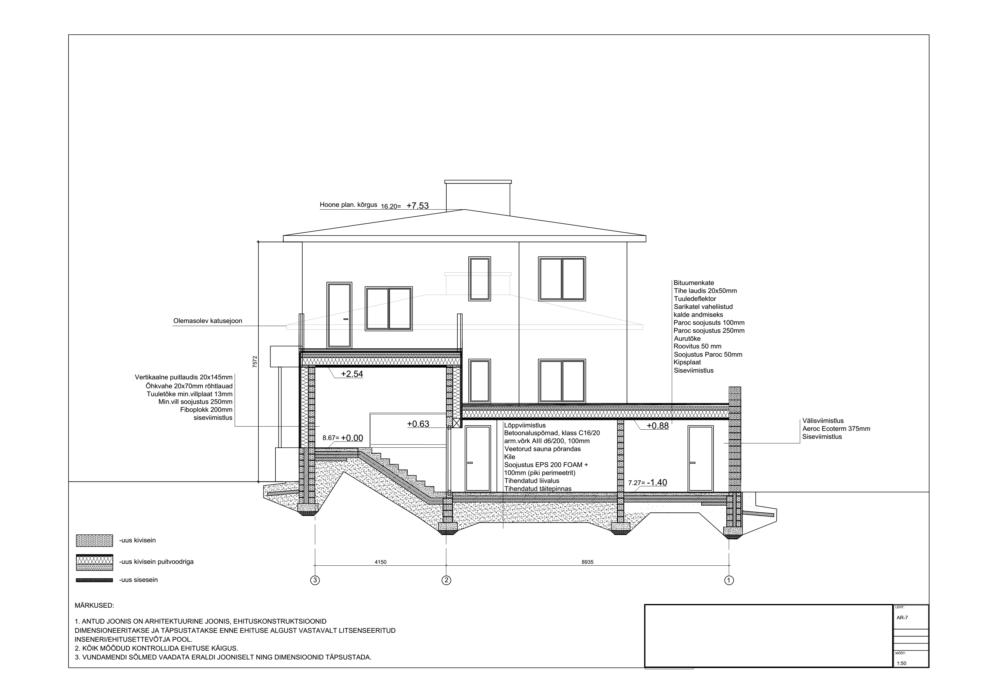
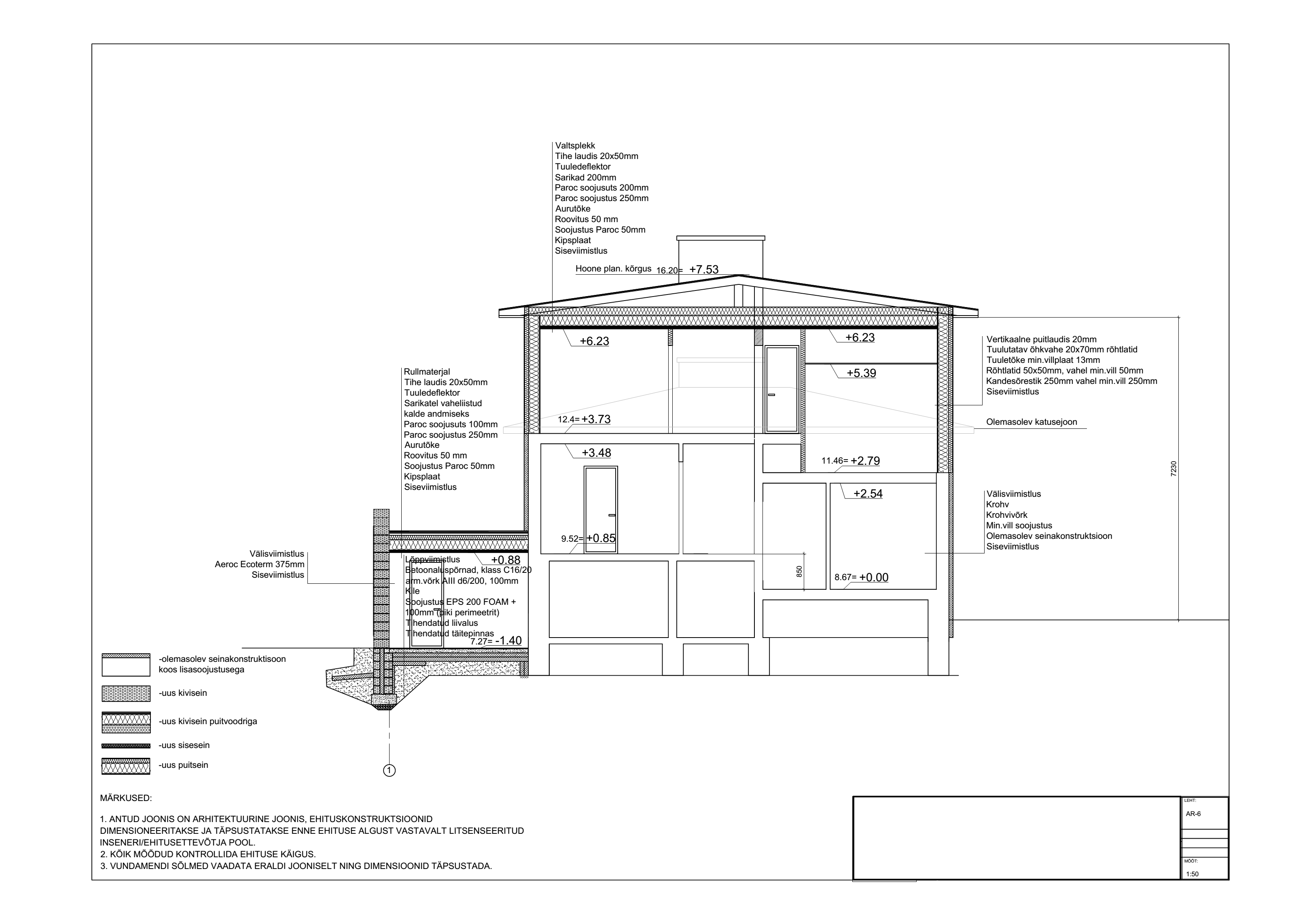
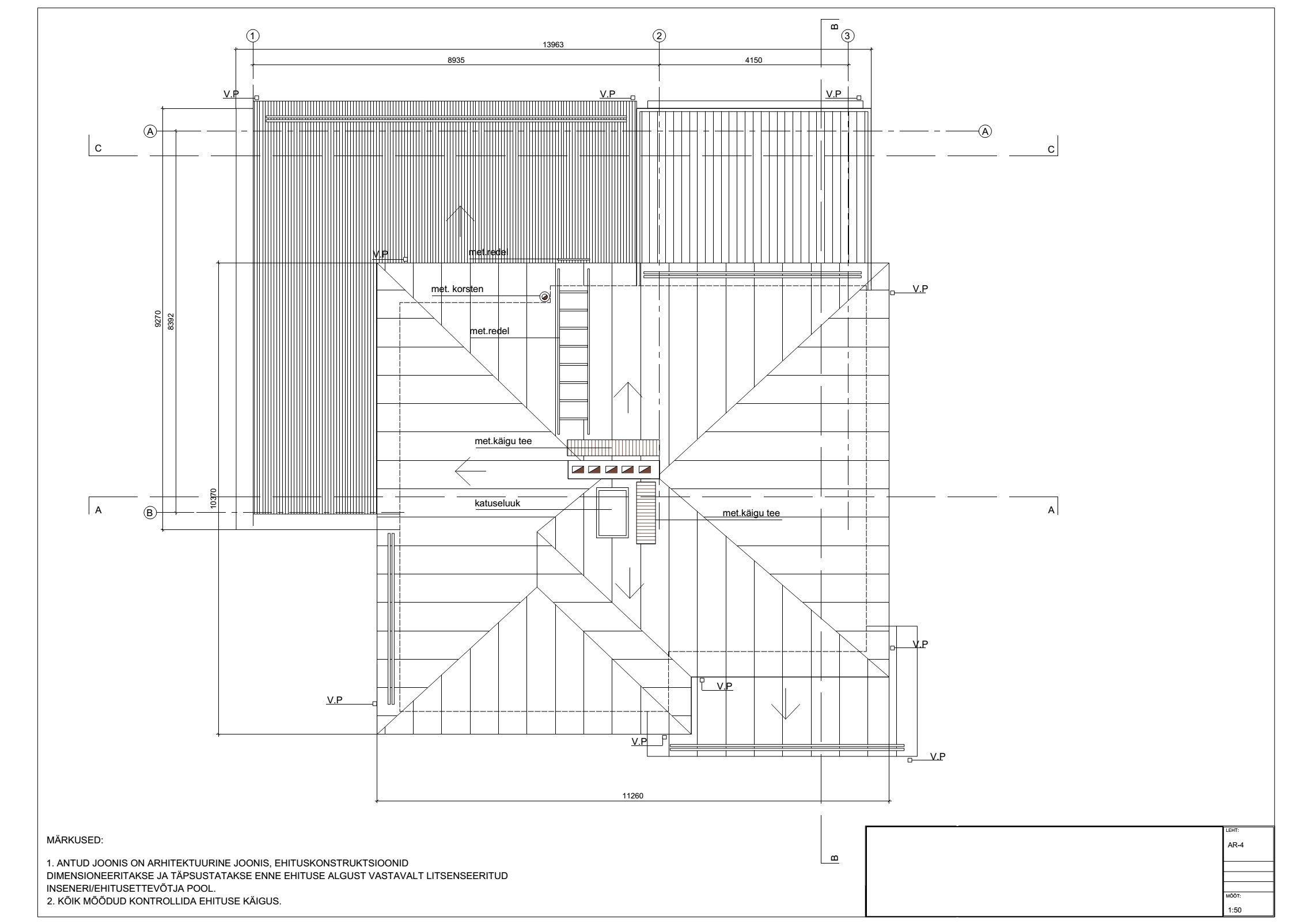
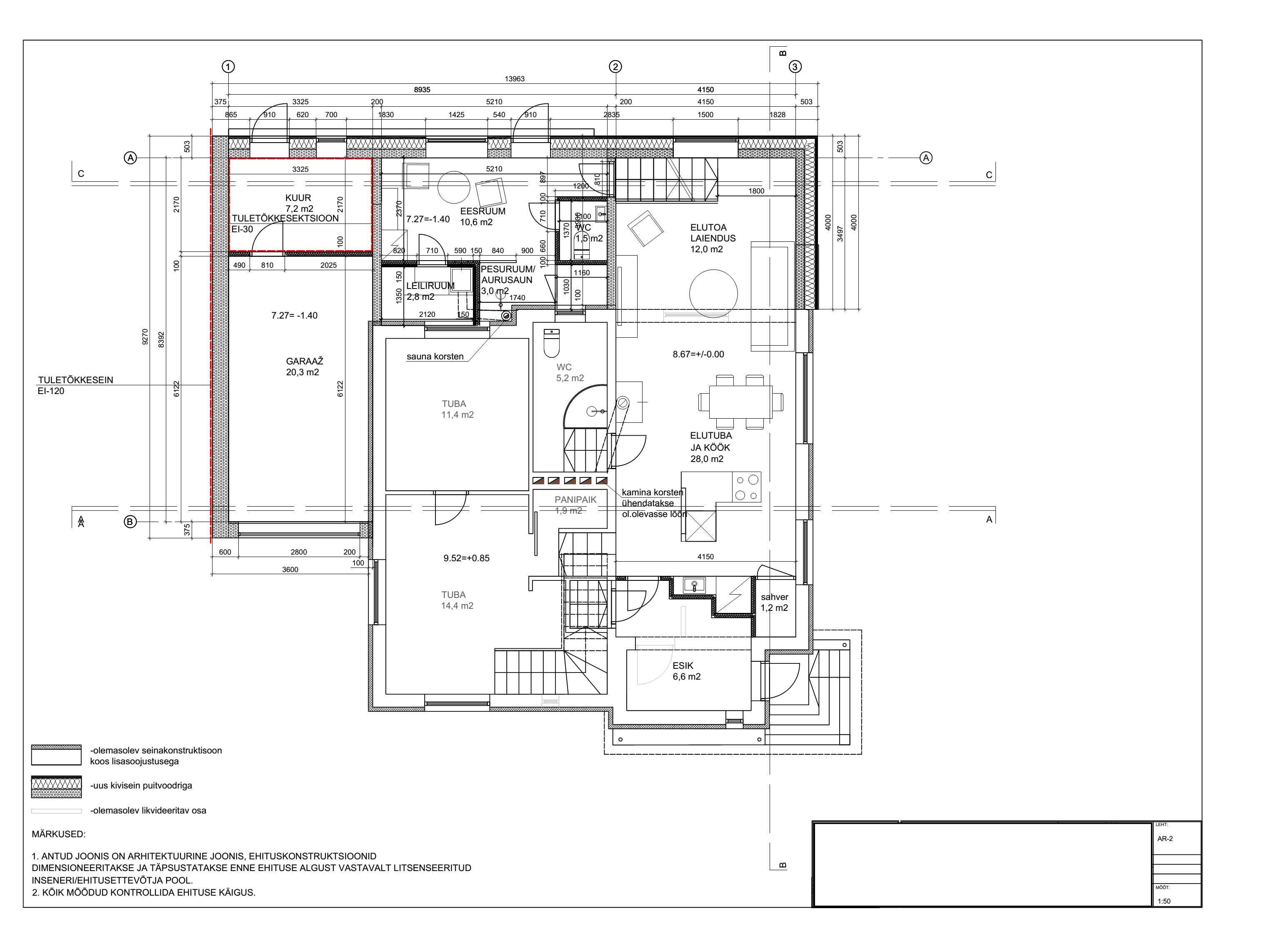
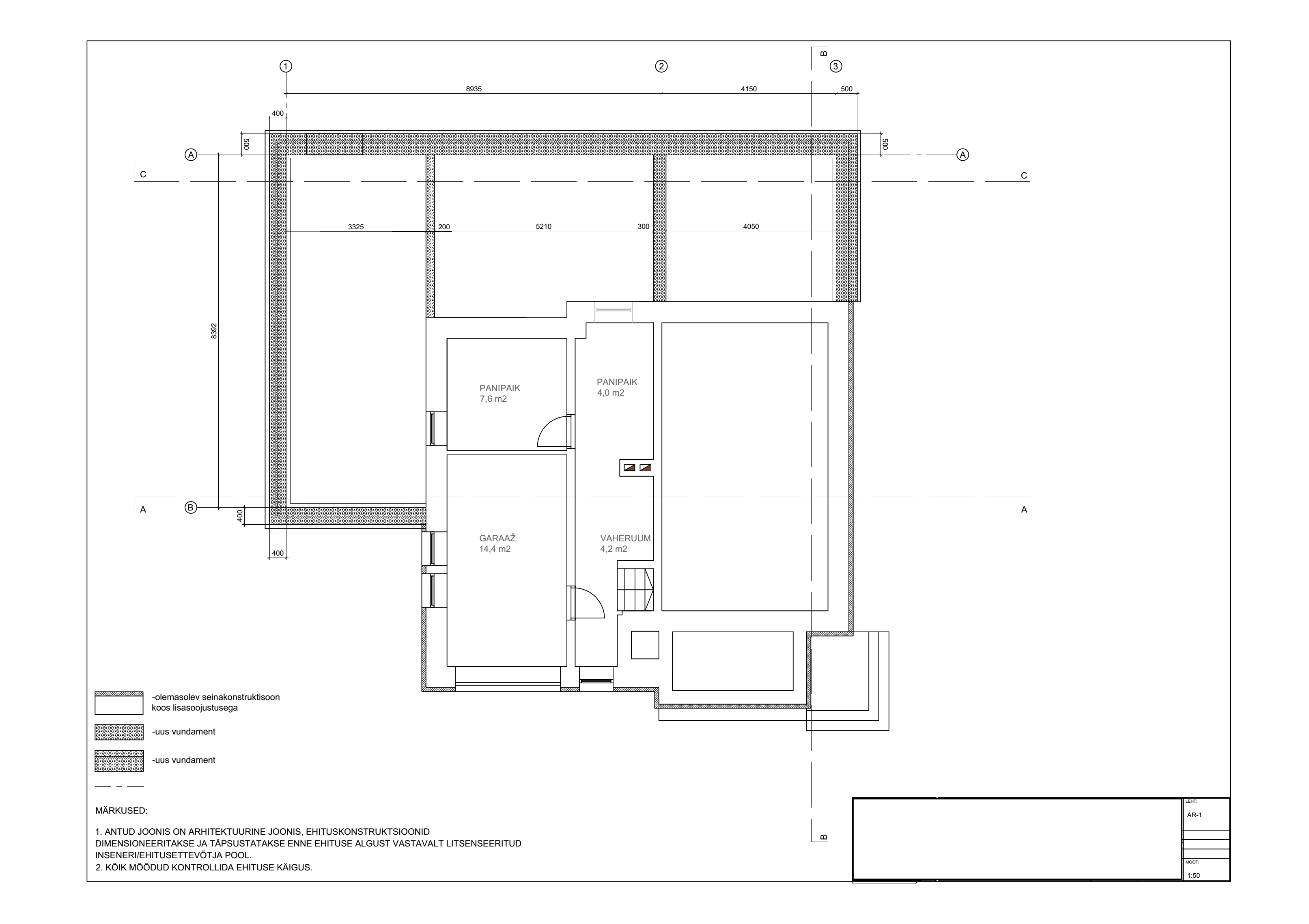
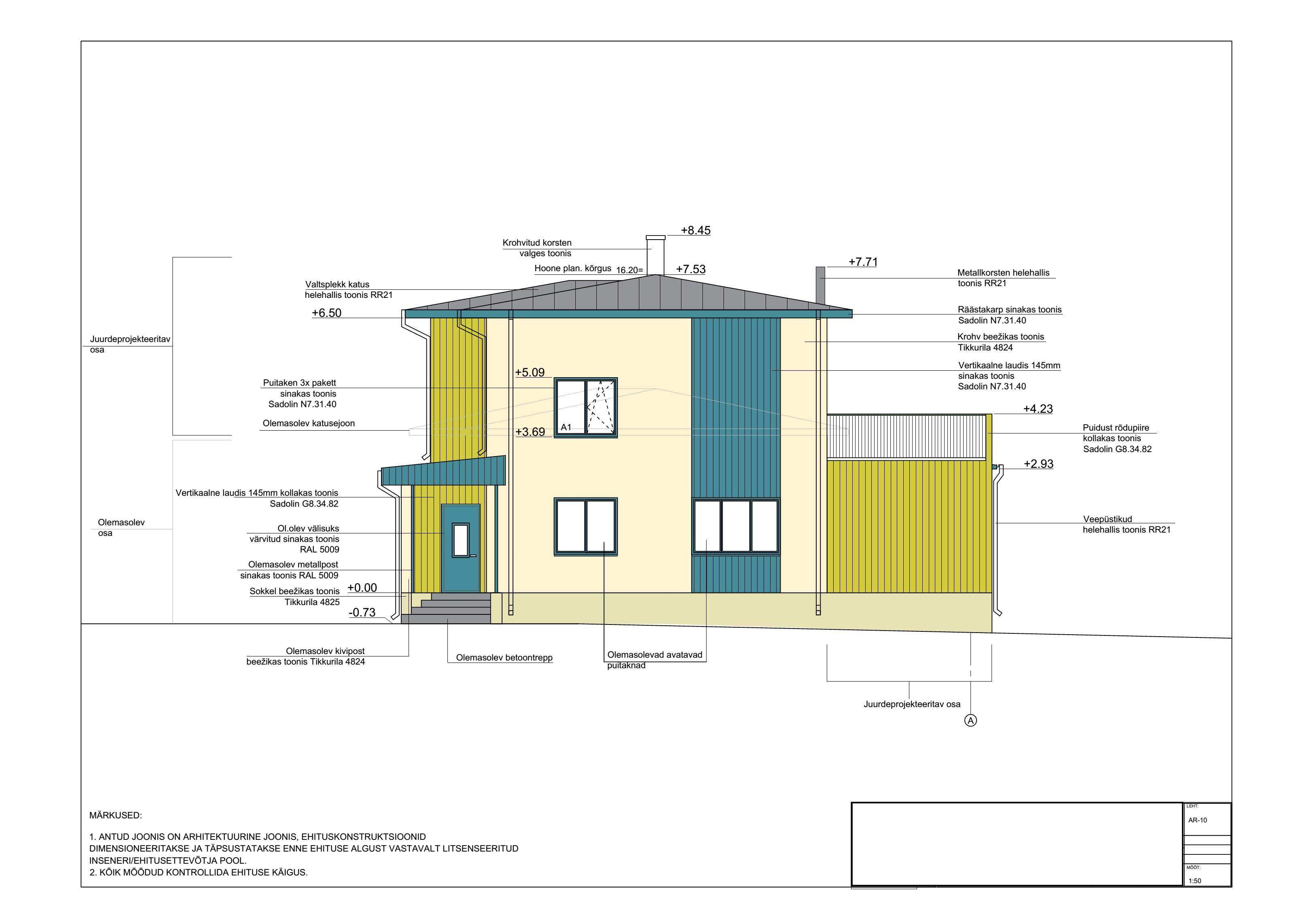
1960-ndatel ehitatud 1-kordsele majale teise korruse ja laienduse (garaaž, kuur, saun ja elutoa pikendus) ehitamine.

Ehitusluba on olemas!

Maja on palkidest, kuid mitte traditsiooniliste palkmaja nurgaühendustega. Välisvoodriks hetkel tellis, mille tellija ise eemaldab.
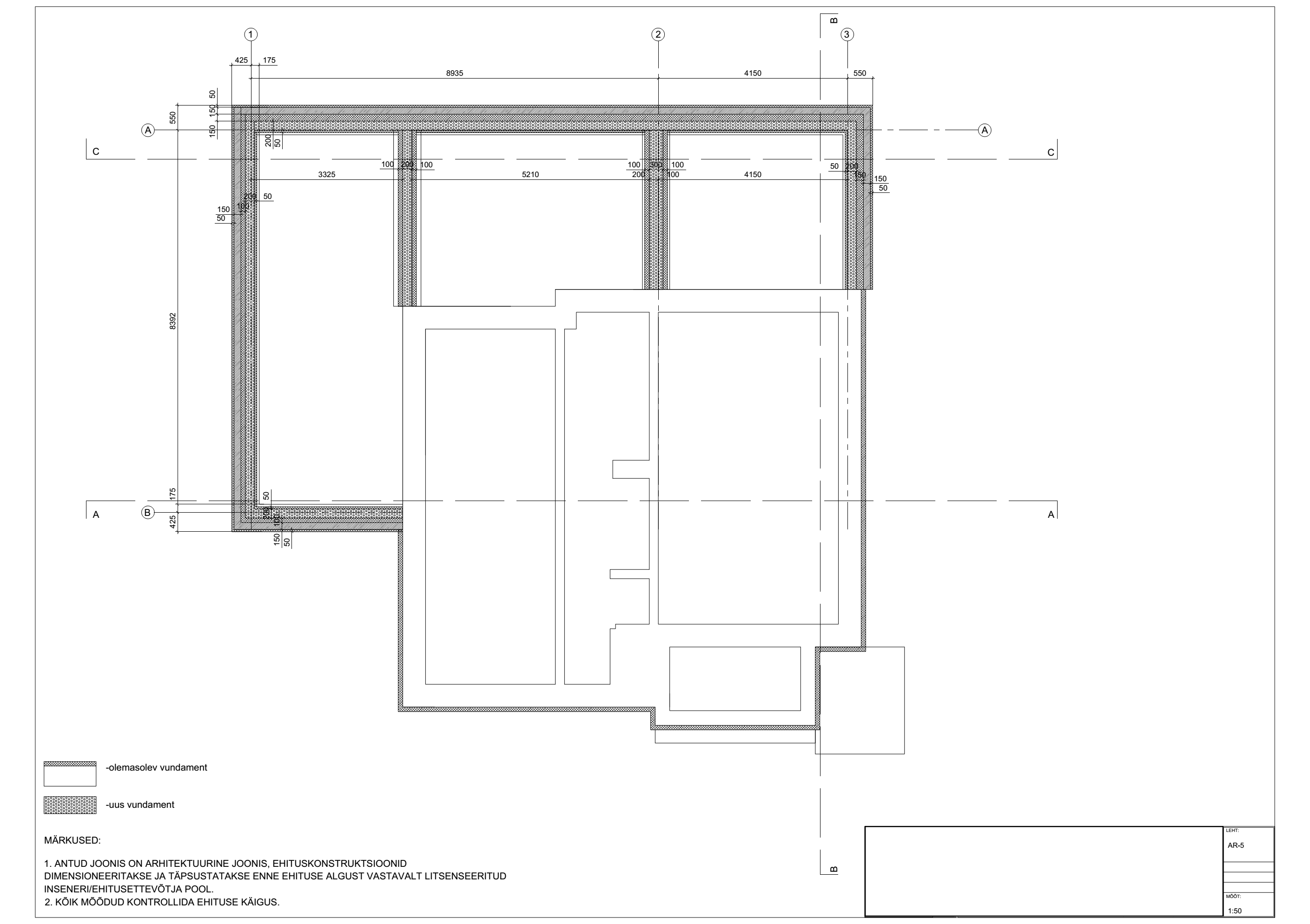
Vundament on paekivist.

Soovime karpi:
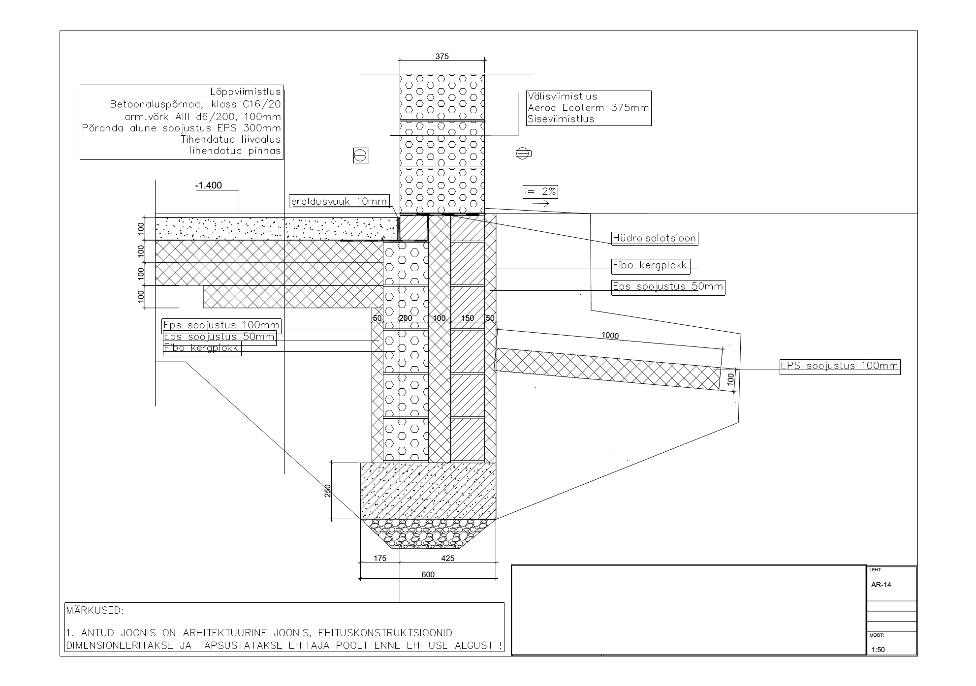
1. juurdeehituse osal vundament, seinad, katus ja sees lihvitud betoonpõrand koos põrandasoojendusega sauna osas;
2. olemasoleva maja teise korruse ehitus sarikateni ja sees musta põranda ja kipsini. Tõenäoliselt tuleb teise korruse tarbeks lisada vahelaele uued talad.
3. palun lisada ka olemasoleva maja seinte soojustamine 15cm villaga ning ka sokli soojustamine.
4. palun lisada kogu hoone välisviimistlemine.

Kõik materjalid arvestada hinnapakkumisse - välja arvatud uksed-aknad ja katused.

Pinnasetööd on tellija poolt (kooskõlas ehitajaga).

Esimese korruse juurdeehituse mahus palun pakkuda Bauroc Ecoterm 375 plokki.
Teise korruse ja katuse soojustamiseks võib alternatiivina pakkuda ka termovahu (PUR, ICYNENE vms) kasutamist.
Samuti võib muid mõistlikke ettepanekuid materjalide ja ehituse osas teha (näit ka vundament plokkidest, olemasoleva vundamendi soojustamine PURiga vms).

Kõik täpsustavad küsimused on teretulnud!

Pildid, video ja failid

Hanke korraldaja: eraisik ID46911

Pakkumised

Pakkumisi kokku: 3

Ettevõte Summa Käibemaks Lisatud Vestlus
Kasutaja ikoon ID49873
Pakkuja profiil Väike nool paremale
123 000€ Ei sisalda Ei sisalda 04.05.2019 Vestlus (4)

Pakkumise kirjeldus:

Tere, edastan ehitustööde detilse liigituse ja hinnapakkumise 0405-19 eramu laiendustöödele. Ootan tagasisidet. Lugupidamisega.

Kasutaja ikoon ID45349
Pakkuja profiil Väike nool paremale
120 000€ Ei sisalda Ei sisalda 09.05.2019 Vestlus (6)

Pakkumise kirjeldus:

Tere!
Tänan hankel osalemise kutse eest.

Siin meie hinnapakkumine vastavalt henkes kirjeldatule.
Hind sisaldab alljärgnevaid varjatud töid:
veevärgi ja kanalisatsiooni ehitus,
elektritööd,
ventilatsioon,
küttetorustiku paigaldust põrandasse.
Hinnapakkumine sisetööde osas kuni kipsplaadini.

Selleks, et enne hanke võitja väljakuulu ... Rohkem

Kasutaja ikoon ID46975
Pakkuja profiil Väike nool paremale
107 300€ Ei sisalda Ei sisalda 12.05.2019 Vestlus (0)

Pakkumise kirjeldus:

tere. Täname , et kutsusite meid hankele pakkumist tegema.Pakkumises kogu töö ja vajalikud materjalid. Kaevetööd Tellija poolt , vundamendi võiks teha küll vundamendi plokkidest. Uksed, aknad ja katusematerjal Teie poolt. Soojustuseks pakuks puistevilla ja plaatvilla, on helikindlam.
Töid saaksime alustada 25.06.2019.a

Küsimused hanke korraldajale

Hanke korraldajale ei ole veel küsimusi esitatud.

Lisa küsimus

Lisa küsimus

Minu pakkumine

Reeglid

Pakkumise kirjelduse väli on mõeldud pakkumise detailsemaks lahti kirjutamiseks. Pikema teksti mugavaks sisestamiseks klikkige kasti paremal ülaservas oleval ikoonil.
Pakkumist tehes on keelatud postitada enda kontaktandmeid (nimi, telefon, aadress jne). Me jälgime ja analüüsime pakkumisi, et vältida pettuseid ja reeglite rikkumisi.
Rikkumise puhul kasutajakonto blokeeritakse.

 

Teisi töid samas valdkonnas

Valdkonnas "Üldehitus" on 28 aktiivset tööd

Maja värvimine

Asukoht: Harjumaa, Saue
Aega jäänud: 2p 10h
Tehtud pakkumisi: 5

Terassi õlitamine, 13,7 ruutu

Asukoht: Harjumaa, Saue
Aega jäänud: 5p 10h
Tehtud pakkumisi: 5

Vanemad teated:

Vaata kõiki

Sellel veebilehel kasutatakse küpsiseid. Kasutamist jätkates nõustute küpsiste kasutamisega.

Sulge
 
Minu pakkumine

Reeglid

Pakkumise kirjelduse väli on mõeldud pakkumise detailsemaks lahti kirjutamiseks. Pikema teksti mugavaks sisestamiseks klikkige kasti paremal ülaservas oleval ikoonil.
Pakkumist tehes on keelatud postitada enda kontaktandmeid (nimi, telefon, aadress jne). Me jälgime ja analüüsime pakkumisi, et vältida pettuseid ja reeglite rikkumisi.
Rikkumise puhul kasutajakonto blokeeritakse.