+ Lisa oma töö      

Otsid ehitajat "Müüritööd" valdkonnast?

Parima pakkumise ja teostaja leidmiseks lisa oma töö.

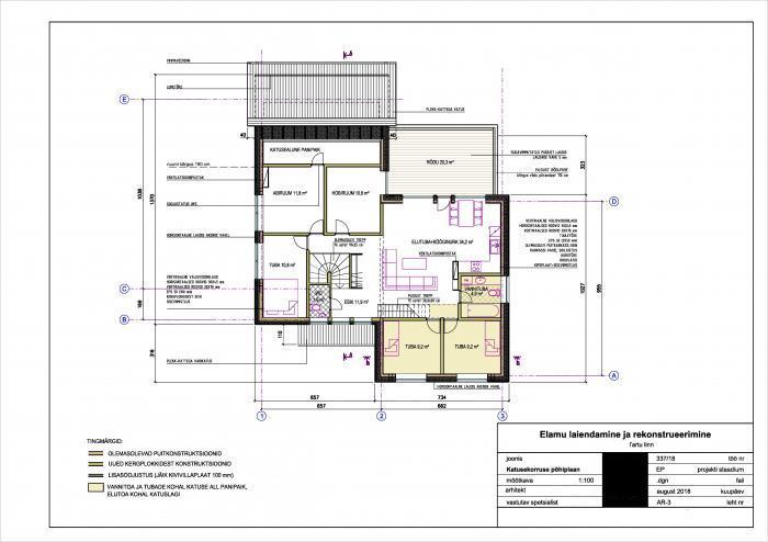
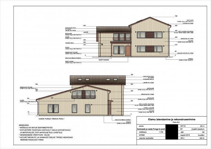
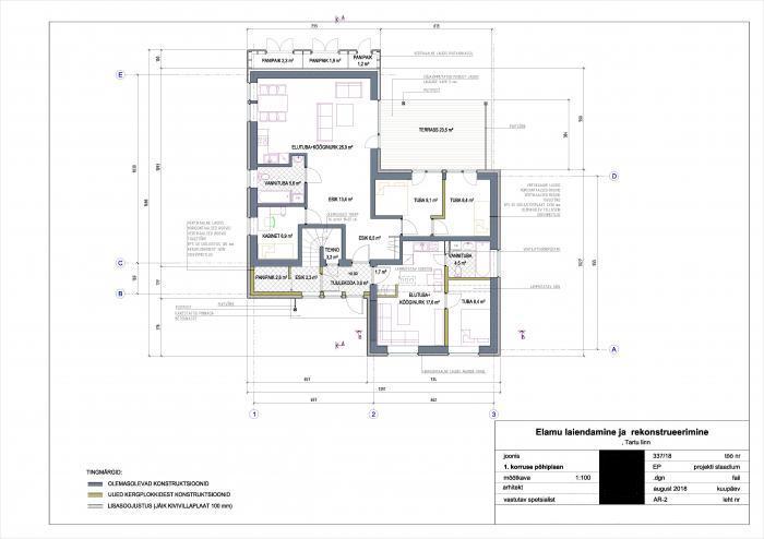
II korruse Aeroc/FiboLADUMINE

ID 46903

1515 vaatamist

Prindi

  • check Pakkumiste tegemine
    kuni 19.05.2019
  • check Võitja valik kuni
    26.05.2019
  • 3 Töö teostamine
    ja hinnang
Hanke lõpp: P, 19. mai, 2019
Maakond: Tartumaa
Linn: Tartu
Tööde algus: E, 27. mai, 2019 (Soovituslik)
Tööde lõpp: E, 17. juuni, 2019 (Soovituslik)
Ehitusmaterjalid: Töö tellija poolt

Töö sisu

Vaja laduda uuesti II korrus kas Aeroc või Fibo 150mm seinad koos sillustega.
Hetkel II korrus puitdõrestikust mis siis lammutatakse . I ja II korruse vahelagi mon.betoonist.
Soovin pakkumist tööle ehk m2 töö hinda.

Pildid, video ja failid

Hanke korraldaja: eraisik ID38997

Pakkumised

Pakkumisi kokku: 4

Ettevõte Summa Käibemaks Lisatud Vestlus
Kasutaja ikoon ID47188
Pakkuja profiil Väike nool paremale
18€ Ei sisalda Ei sisalda 17.04.2019 Vestlus (8)
Kasutaja ikoon ID49720
Pakkuja profiil Väike nool paremale
13€ Ei sisalda Ei sisalda 20.04.2019 Vestlus (11)
Kasutaja ikoon ID51052
Pakkuja profiil Väike nool paremale
21€ Ei sisalda Ei sisalda 30.04.2019 Vestlus (2)
Kasutaja ikoon ID46243
Pakkuja profiil Väike nool paremale
16€ Sisaldab KM Sisaldab KM 16.05.2019 Vestlus (0)

Pakkumise kirjeldus:

Tere.

Meiepoolne hinnapakkumine on 16 eur/m2.
Teostatud töödel kvaliteet garanteeritud.

Tarmo

Küsimused hanke korraldajale

Hanke korraldajale ei ole veel küsimusi esitatud.

Lisa küsimus

Lisa küsimus

Minu pakkumine

Reeglid

Pakkumise kirjelduse väli on mõeldud pakkumise detailsemaks lahti kirjutamiseks. Pikema teksti mugavaks sisestamiseks klikkige kasti paremal ülaservas oleval ikoonil.
Pakkumist tehes on keelatud postitada enda kontaktandmeid (nimi, telefon, aadress jne). Me jälgime ja analüüsime pakkumisi, et vältida pettuseid ja reeglite rikkumisi.
Rikkumise puhul kasutajakonto blokeeritakse.

 

Teisi töid samas valdkonnas

Valdkonnas "Müüritööd" on 2 aktiivset tööd

Telliskivi seina taastamine, ehitus

Asukoht: Harjumaa, Kiisa
Aega jäänud: 2p 5h
Tehtud pakkumisi: 1

no-img Pilt puudub

Kivimaster

Asukoht: Harjumaa, Tallinn
Aega jäänud: 1p 5h
Tehtud pakkumisi: 0

Vanemad teated:

Vaata kõiki

Sellel veebilehel kasutatakse küpsiseid. Kasutamist jätkates nõustute küpsiste kasutamisega.

Sulge
 
Minu pakkumine

Reeglid

Pakkumise kirjelduse väli on mõeldud pakkumise detailsemaks lahti kirjutamiseks. Pikema teksti mugavaks sisestamiseks klikkige kasti paremal ülaservas oleval ikoonil.
Pakkumist tehes on keelatud postitada enda kontaktandmeid (nimi, telefon, aadress jne). Me jälgime ja analüüsime pakkumisi, et vältida pettuseid ja reeglite rikkumisi.
Rikkumise puhul kasutajakonto blokeeritakse.