+ Lisa oma töö      

Otsid ehitajat "Puitehitised" valdkonnast?

Parima pakkumise ja teostaja leidmiseks lisa oma töö.

Hange on lõppenud!

Võitjaks osutus kasutaja ID 39222

Korraldaja hinnang tehtud tööle

5.0
21.08.2019
Töökiirus: 12345
Kvaliteet: 12345
Hind: 12345

hästi tehtud! - Stan M.

Näita pilte (2) Peida pildid

Enne:

  • ac0aab9224c14628922b4816da87d02b.jpg

Pärast:

  • 30312d3297123af73d7816ebb9874ab0.jpg

Abihoone - kuuri ehitus

ID 46971

2828 vaatamist

Prindi

  • check Pakkumiste tegemine
    kuni 03.05.2019
  • check Võitja valik kuni
    10.05.2019
  • 3 Töö teostamine
    ja hinnang
Hanke lõpp: R, 3. mai, 2019
Maakond: Harjumaa
Muu asula: Muuga
Tööde algus: K, 01. mai, 2019 (Soovituslik)
Tööde lõpp: P, 16. juuni, 2019 (Soovituslik)
Ehitusmaterjalid: Töö tegija poolt

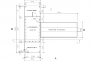
Töö sisu

Alusmüürid- monoliitsest betoonist ja olemasolevad paekivist.
Põrand- alt õhutatav puitpõrand immutatud põrandalaagidel. Olemasoleva paekivi vundamenti osas põrandalaagid tuleb süvistada. Katustealustel terassilaud, eest trepp 2 astet. Siseruumides OSB plaat 22 mm.
Seinad- puitsõrestik laudvoodriga. Sisesein OSB plaat 12 mm. Katusealustel puitsõrestik.
Katus- puitsarikatel 50x150mm. Katusekate-profiilplekk. Eest vihmaveesüsteem (veerenn ja ühelt poolt toru)
Uks – väliuks klaasiga (458 U82 D või analoog)..
Ehitusmaterjalid – töövõtja poolt
Värvilahendus lepitakse kokku täiendavalt.

Pildid, video ja failid

Hanke korraldaja: eraisik ID50810

Pakkumised

Pakkumisi kokku: 6

Ettevõte Summa Käibemaks Lisatud Vestlus
Kasutaja ikoon ID39222
Pakkuja profiil Väike nool paremale
3 890€ Ei sisalda Ei sisalda 19.04.2019 Vestlus (4)
Kasutaja ikoon ID46987
Pakkuja profiil Väike nool paremale
4 500€ Sisaldab KM Sisaldab KM 19.04.2019 Vestlus (1)
Kasutaja ikoon ID51052
Pakkuja profiil Väike nool paremale
1€ Ei sisalda Ei sisalda 26.04.2019 Vestlus (0)

Pakkumise kirjeldus:

Tere

Ehitusmaterjalid ca 6000€ ( pigem vähem), teostusaeg ca 15 tööpäeva, tööraha 6000.
Töid saaks alustada esimesel võimalusel.

Tervitades

Kasutaja ikoon ID51052
Pakkuja profiil Väike nool paremale
12 000€ Ei sisalda Ei sisalda 26.04.2019 Vestlus (4)

Pakkumise kirjeldus:

Tere

Ehitusmaterjalid ca 6000€ ( pigem vähem), teostusaeg ca 15 tööpäeva, tööraha 6000.
Töid saaks alustada esimesel võimalusel.

Tervitades

Kasutaja ikoon ID49191
Pakkuja profiil Väike nool paremale
5 800€ Sisaldab KM Sisaldab KM 02.05.2019 Vestlus (2)

Pakkumise kirjeldus:

Tere, teen pakkumise abihoone ehitusele. Hind sisaldab käibemaksu.
Ettemaksu soovin osaliselt materialidele arve alusel.

Töö ca 40% hinnast
Materialid ca 40% hinnast
Lisakulud ca 10% hinnast
Hinnakõikumine + - 10%

Lugupidamisega, E.K

Kasutaja ikoon ID46975
Pakkuja profiil Väike nool paremale
4 230€ Sisaldab KM Sisaldab KM 03.05.2019 Vestlus (6)

Pakkumise kirjeldus:

Tere. Pakkumises kõik vajalik , et saavutada korrektne lõpptulemus.

Küsimused hanke korraldajale

Küsimus: private ID48659   30.04.2019 03:43
Tere!<br />
kas katusekate võib olla trapetsprofiil ja laudiseks 120mm välisvoodrialud ?

Teavita reeglite rikkumisest

Korraldaja vastus: 30.04.2019 18:02

Tere<br />
katusekate võib olla trapetsprofiil<br />
120mm välisvoodrilaud sobib hästi

Teavita reeglite rikkumisest

Lisa küsimus

Lisa küsimus

Minu pakkumine

Reeglid

Pakkumise kirjelduse väli on mõeldud pakkumise detailsemaks lahti kirjutamiseks. Pikema teksti mugavaks sisestamiseks klikkige kasti paremal ülaservas oleval ikoonil.
Pakkumist tehes on keelatud postitada enda kontaktandmeid (nimi, telefon, aadress jne). Me jälgime ja analüüsime pakkumisi, et vältida pettuseid ja reeglite rikkumisi.
Rikkumise puhul kasutajakonto blokeeritakse.

 

Vanemad teated:

Vaata kõiki

Sellel veebilehel kasutatakse küpsiseid. Kasutamist jätkates nõustute küpsiste kasutamisega.

Sulge
 
Minu pakkumine

Reeglid

Pakkumise kirjelduse väli on mõeldud pakkumise detailsemaks lahti kirjutamiseks. Pikema teksti mugavaks sisestamiseks klikkige kasti paremal ülaservas oleval ikoonil.
Pakkumist tehes on keelatud postitada enda kontaktandmeid (nimi, telefon, aadress jne). Me jälgime ja analüüsime pakkumisi, et vältida pettuseid ja reeglite rikkumisi.
Rikkumise puhul kasutajakonto blokeeritakse.