+ Lisa oma töö      

Otsid ehitajat "Torutööd" valdkonnast?

Parima pakkumise ja teostaja leidmiseks lisa oma töö.

VEE, KANALISATSIOONI JA VESIPÕRANDAKÜTE TORUSTIKU PAIGALDUS

ID 47019

1707 vaatamist

Prindi

  • check Pakkumiste tegemine
    kuni 30.04.2019
  • check Võitja valik kuni
    07.05.2019
  • 3 Töö teostamine
    ja hinnang
Hanke lõpp: T, 30. aprill, 2019
Maakond: Harjumaa
Muu asula: Jüri, Rae vald
Tööde algus: E, 06. mai, 2019 (Soovituslik)
Tööde lõpp: P, 12. mai, 2019 (Soovituslik)
Ehitusmaterjalid: Töö tegija poolt

Töö sisu

Tööde kirjeldus:

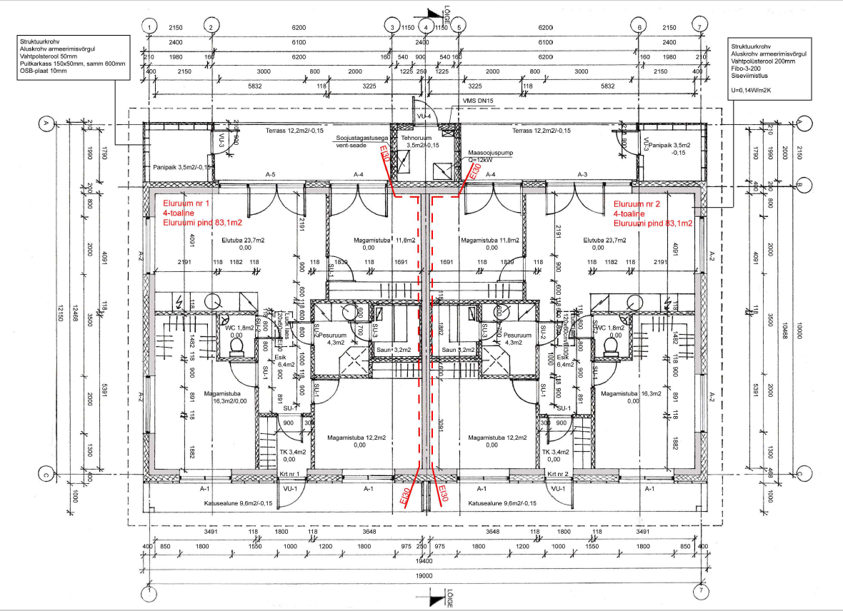
Vee torustiku paigaldus koos tsirkulatsiooniga, kanalisatsiooni ja vesipõrandaküte torustiku paigaldus vundamendi sisse.

Vundamendi ehitus on planeeritud mai alguses.
Asukoht: Jüri, Rea vald, Harju maakond
Objekt: Väike paarismaja 2x85m2 kokku 170 m2.


Lisaks kellel on võimekust on vaja paigaldada kogumismahuti 20 m3 ja ühendada maja kanalisatsiooniga.

Pildid, video ja failid

Hanke korraldaja: ettevõte ID50913

Pakkumised

Pakkumisi kokku: 1

Ettevõte Summa Käibemaks Lisatud Vestlus
Kasutaja ikoon ID47683
Pakkuja profiil Väike nool paremale
3 760€ Ei sisalda Ei sisalda 30.04.2019 Vestlus (2)

Pakkumise kirjeldus:

Tere,edastan teile meiepoolse pakkumise.Hoonesisene kanalisatsiooni paigaldus 800e Külma,sooja ja täsirkulatsiiini paigaldus 1300.Põrandakütte paigaldus 1360.Kollektorite paigaldus 300.Meil on võimekus paigaldada ka mahuti,aga selle hinna arutaks läbi kohapeal.Materjalile saame teha korralikku allahindlust.Pakkumine on tehtud teostatavatele töödele

Küsimused hanke korraldajale

Küsimus: private ID47683   23.04.2019 23:16
Tere,sooviks mõned asjad üle täpsustada meiepoolse pakkumise tegemiseks.Nimelt,kas kasutatavad torud,liitmikud ,kollektorid ja muu vajaminev peaks olema kvaliteetne ja kallim või soovite odavamaid hiina tootetid kasutada?Kas oskate öelda,mis pinnasega sealkandis tegu,kas mahuti augu tegemiseks on vaja roksonit,või saab väiksema kopaga hakkama?Kas soovite hinnapakkumist terviklahendusele,kus ühendame kõik vajamineva,ka seinte valmimisel?<br />
Tervitades Tarmo

Teavita reeglite rikkumisest

Korraldaja vastus: 25.04.2019 09:40

Tere<br />
Võiks kasutada materjale mis on mõistliku hinnaga aga mitte kehvad. Kopaga saab hakkama. Pakkumine võiks olla terviklik, kahes osas, et hiljem ühendate sanitaartehnika ise külge ka. Lisan Ehitusgeoloogilised tingimused failide alla.

Teavita reeglite rikkumisest

Lisa küsimus

Lisa küsimus

Minu pakkumine

Reeglid

Pakkumise kirjelduse väli on mõeldud pakkumise detailsemaks lahti kirjutamiseks. Pikema teksti mugavaks sisestamiseks klikkige kasti paremal ülaservas oleval ikoonil.
Pakkumist tehes on keelatud postitada enda kontaktandmeid (nimi, telefon, aadress jne). Me jälgime ja analüüsime pakkumisi, et vältida pettuseid ja reeglite rikkumisi.
Rikkumise puhul kasutajakonto blokeeritakse.

 

Teisi töid samas valdkonnas

Valdkonnas "Torutööd" on 2 aktiivset tööd

Kaarhalli soojaku torustiku renoveerimine

Asukoht: Harjumaa, Saue
Aega jäänud: 7h 59 min
Tehtud pakkumisi: 4

Köögi äravoolu paigaldus

Asukoht: Harjumaa, Tallinn
Aega jäänud: 4p 7h
Tehtud pakkumisi: 2

Vanemad teated:

Vaata kõiki

Sellel veebilehel kasutatakse küpsiseid. Kasutamist jätkates nõustute küpsiste kasutamisega.

Sulge
 
Minu pakkumine

Reeglid

Pakkumise kirjelduse väli on mõeldud pakkumise detailsemaks lahti kirjutamiseks. Pikema teksti mugavaks sisestamiseks klikkige kasti paremal ülaservas oleval ikoonil.
Pakkumist tehes on keelatud postitada enda kontaktandmeid (nimi, telefon, aadress jne). Me jälgime ja analüüsime pakkumisi, et vältida pettuseid ja reeglite rikkumisi.
Rikkumise puhul kasutajakonto blokeeritakse.