+ Lisa oma töö      

Otsid ehitajat "Katusetööd" valdkonnast?

Parima pakkumise ja teostaja leidmiseks lisa oma töö.

Eramu katusetööd

ID 47031

1052 vaatamist

Prindi

  • check Pakkumiste tegemine
    kuni 20.05.2019
  • check Võitja valik kuni
    27.05.2019
  • 3 Töö teostamine
    ja hinnang
Hanke lõpp: E, 20. mai, 2019
Maakond: Tartumaa
Linn: Tartu
Tööde algus: E, 17. juuni, 2019 (Soovituslik)
Tööde lõpp: E, 15. juuli, 2019 (Soovituslik)
Ehitusmaterjalid: Töö tellija poolt

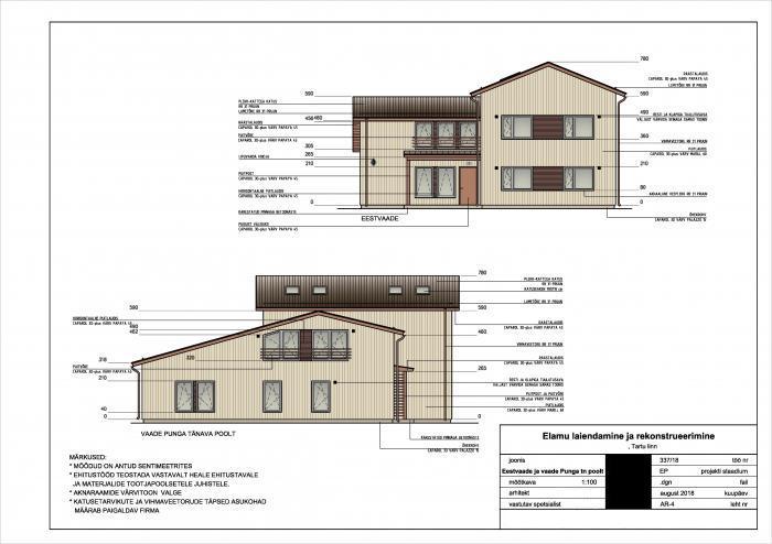
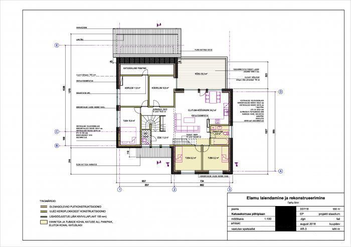
Töö sisu

Katuse tööd.
*uute sarikate paigaldus 50x200 koos uue müürilatiga. Sarikad harjast mõlemalt poolt kinnitada vineeriga (22mm)
* sarikate peale tuuletõkkekile
* sarikate peale tuulutusliist 50x50
* aluskate
* roovitus 25x50
* trapetsplekki paigaldus koos harja ja ääreplekkiga.

Vana katuse eemaldamine tellja poolt ( 2korrus lamutatakse ja laotakse Fibost). Samuti tellingud ja vajaminev eh.materjal tellija poolt.

Ootan pakkumist tööle ehk m2 põhiselt ja ehitusele kuluvale ajale.

Planeeritav ehitustööde algus juuni keskel.

Pildid, video ja failid

Hanke korraldaja: eraisik ID38997

Pakkumised

Pakkumisi kokku: 0

Küsimused hanke korraldajale

Küsimus: private ID44785   24.04.2019 22:17
Tere.<br />
<br />
<br />
Kui palju on katusel m2 kokku ? <br />
Kas pakkumises peab sisaldama ka katuseakende paigaldus ?<br />
Parimatega.<br />
Martin

Teavita reeglite rikkumisest

Korraldaja vastus: 25.04.2019 02:03

Tere.<br />
Ei ole arvutanud katuse m2-eid. Palun kasutage olemas olevaid jooniseid hankes.<br />
Katuseaknaid ei pea paigaldama. Aigar<br />

Teavita reeglite rikkumisest

Küsimus: private ID27299   03.05.2019 07:13
Huvitav on see, et kui vaatan pilti, siis näen seal nelja katuseakent ja loetletud katuse töödes katuseaknaid pole. Kas neid ei tule, või paigaldate siis hiljem?

Teavita reeglite rikkumisest

Korraldaja vastus: 03.05.2019 08:10

Tere. Katuseaknad paigaldab akende pakkuja ja paigaldatakse hiljem.

Teavita reeglite rikkumisest

Lisa küsimus

Lisa küsimus

Minu pakkumine

Reeglid

Pakkumise kirjelduse väli on mõeldud pakkumise detailsemaks lahti kirjutamiseks. Pikema teksti mugavaks sisestamiseks klikkige kasti paremal ülaservas oleval ikoonil.
Pakkumist tehes on keelatud postitada enda kontaktandmeid (nimi, telefon, aadress jne). Me jälgime ja analüüsime pakkumisi, et vältida pettuseid ja reeglite rikkumisi.
Rikkumise puhul kasutajakonto blokeeritakse.

 

Teisi töid samas valdkonnas

Valdkonnas "Katusetööd" on 9 aktiivset tööd

no-img Pilt puudub

Käidava katuse PVC 54m2

Asukoht: Harjumaa, Muraste
Aega jäänud: 4p 7h
Tehtud pakkumisi: 3

Suvila

Asukoht: Pärnumaa, Eametsa
Aega jäänud: 7h 39 min
Tehtud pakkumisi: 2

Vanemad teated:

Vaata kõiki

Sellel veebilehel kasutatakse küpsiseid. Kasutamist jätkates nõustute küpsiste kasutamisega.

Sulge
 
Minu pakkumine

Reeglid

Pakkumise kirjelduse väli on mõeldud pakkumise detailsemaks lahti kirjutamiseks. Pikema teksti mugavaks sisestamiseks klikkige kasti paremal ülaservas oleval ikoonil.
Pakkumist tehes on keelatud postitada enda kontaktandmeid (nimi, telefon, aadress jne). Me jälgime ja analüüsime pakkumisi, et vältida pettuseid ja reeglite rikkumisi.
Rikkumise puhul kasutajakonto blokeeritakse.