+ Lisa oma töö      

Otsid ehitajat "Fassaaditööd" valdkonnast?

Parima pakkumise ja teostaja leidmiseks lisa oma töö.

Eramu fassaaditööd ( Tartu)

ID 47041

1571 vaatamist

Prindi

  • check Pakkumiste tegemine
    kuni 20.05.2019
  • check Võitja valik kuni
    27.05.2019
  • 3 Töö teostamine
    ja hinnang
Hanke lõpp: E, 20. mai, 2019
Maakond: Tartumaa
Linn: Tartu
Tööde algus: E, 01. juuli, 2019 (Soovituslik)
Tööde lõpp: E, 29. juuli, 2019 (Soovituslik)
Ehitusmaterjalid: Töö tellija poolt

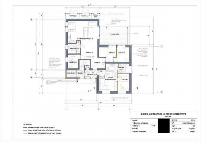
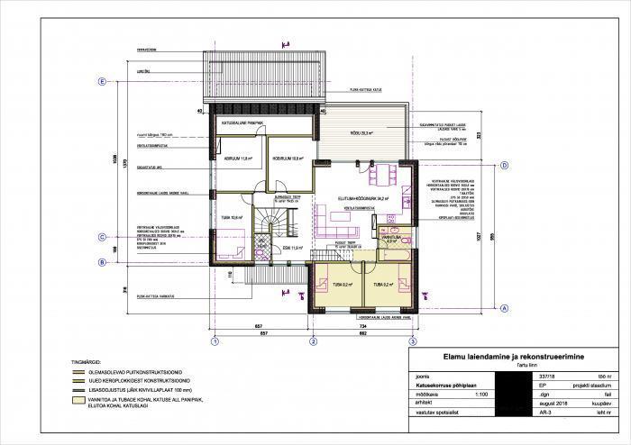
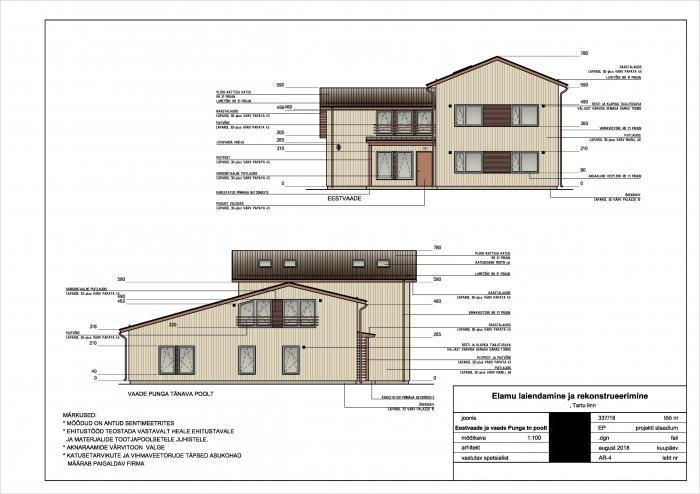
Töö sisu

Fassaadi tööd.

* EPS 50-100mm.
* sõrestik alumine 25x100 (vertik.) ja sõrestik pealmine 50x50 ( horis.) ja rihtimine nurgikutega.
* täispunnlaudis 145mm vertik. ( vajadusel otsa liited soonida ja vineeri/liimiga omavahel liita)
* akna/ukse põsed (projekti põhiselt)

Pildid, video ja failid

Hanke korraldaja: eraisik ID38997

Pakkumised

Pakkumisi kokku: 1

Ettevõte Summa Käibemaks Lisatud Vestlus
Kasutaja ikoon ID47188
Pakkuja profiil Väike nool paremale
38€ Ei sisalda Ei sisalda 07.05.2019 Vestlus (1)

Pakkumise kirjeldus:

Tere,

Hinnapakkumine siis ruutmeetrile, kõik kokku, tellingud hinna sees

Parimat,

Üllar

Küsimused hanke korraldajale

Küsimus: private ID27299   26.04.2019 20:56
Mis sai isover RKL facadest, et nüüd eps-i tahate?

Teavita reeglite rikkumisest

Korraldaja vastus: 27.04.2019 06:38

Tere. II korruse puitsõrestik sein lammutatakse ja tuleb uus plokidest sein. Plokkidele tuleb soojustus EPS 50-100mm.<br />

Teavita reeglite rikkumisest

Lisa küsimus

Lisa küsimus

Minu pakkumine

Reeglid

Pakkumise kirjelduse väli on mõeldud pakkumise detailsemaks lahti kirjutamiseks. Pikema teksti mugavaks sisestamiseks klikkige kasti paremal ülaservas oleval ikoonil.
Pakkumist tehes on keelatud postitada enda kontaktandmeid (nimi, telefon, aadress jne). Me jälgime ja analüüsime pakkumisi, et vältida pettuseid ja reeglite rikkumisi.
Rikkumise puhul kasutajakonto blokeeritakse.

 

Teisi töid samas valdkonnas

Valdkonnas "Fassaaditööd" on 12 aktiivset tööd

Akende ja viilude parandus ja värvimine

Asukoht: Valgamaa, Valga
Aega jäänud: 8h 53 min
Tehtud pakkumisi: 3

Eramaja vintskapide laudise paigaldus

Asukoht: Pärnumaa, Pärnu-Jaagupi
Aega jäänud: 9p 8h
Tehtud pakkumisi: 2

Vanemad teated:

Vaata kõiki

Sellel veebilehel kasutatakse küpsiseid. Kasutamist jätkates nõustute küpsiste kasutamisega.

Sulge
 
Minu pakkumine

Reeglid

Pakkumise kirjelduse väli on mõeldud pakkumise detailsemaks lahti kirjutamiseks. Pikema teksti mugavaks sisestamiseks klikkige kasti paremal ülaservas oleval ikoonil.
Pakkumist tehes on keelatud postitada enda kontaktandmeid (nimi, telefon, aadress jne). Me jälgime ja analüüsime pakkumisi, et vältida pettuseid ja reeglite rikkumisi.
Rikkumise puhul kasutajakonto blokeeritakse.