+ Lisa oma töö      

Otsid ehitajat "Betoonitööd" valdkonnast?

Parima pakkumise ja teostaja leidmiseks lisa oma töö.

ERAMU MONOLIITBETOON VAHELAED

ID 47140

1306 vaatamist

Prindi

  • check Pakkumiste tegemine
    kuni 04.05.2019
  • check Võitja valik kuni
    11.05.2019
  • 3 Töö teostamine
    ja hinnang
Hanke lõpp: L, 4. mai, 2019
Maakond: Tartumaa
Linn: Tartu
Tööde algus: E, 03. juuni, 2019 (Soovituslik)
Tööde lõpp: E, 17. juuni, 2019 (Soovituslik)
Ehitusmaterjalid: Töö tellija poolt

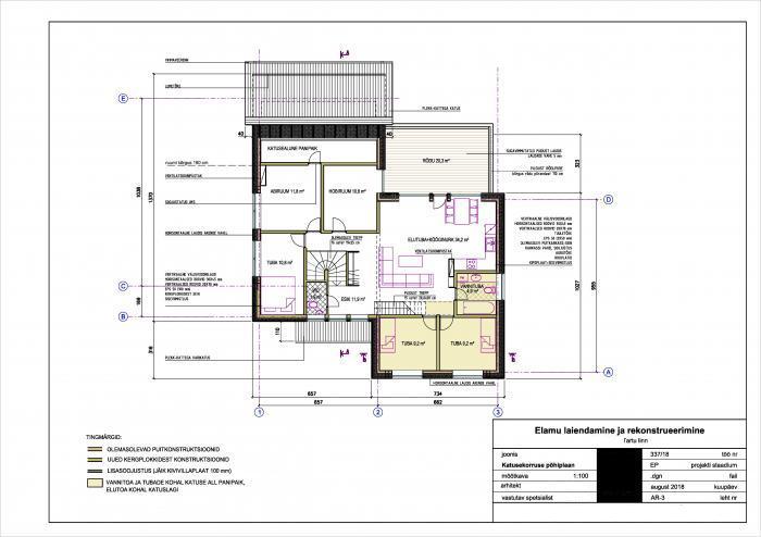
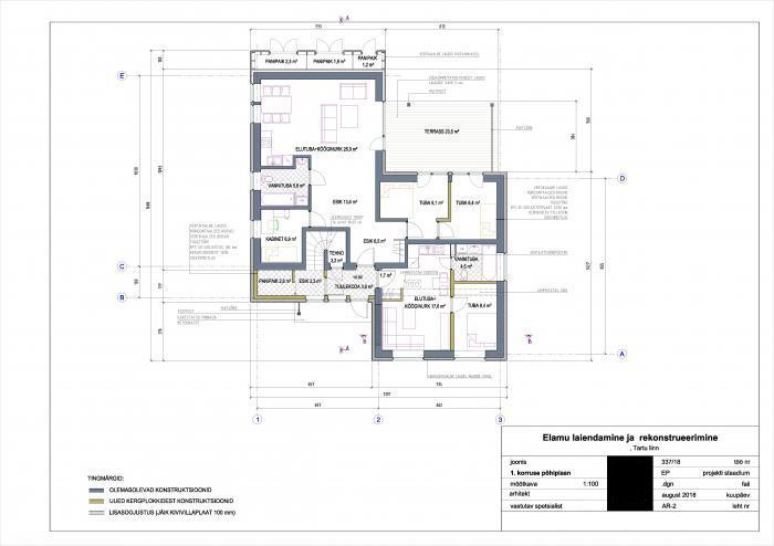
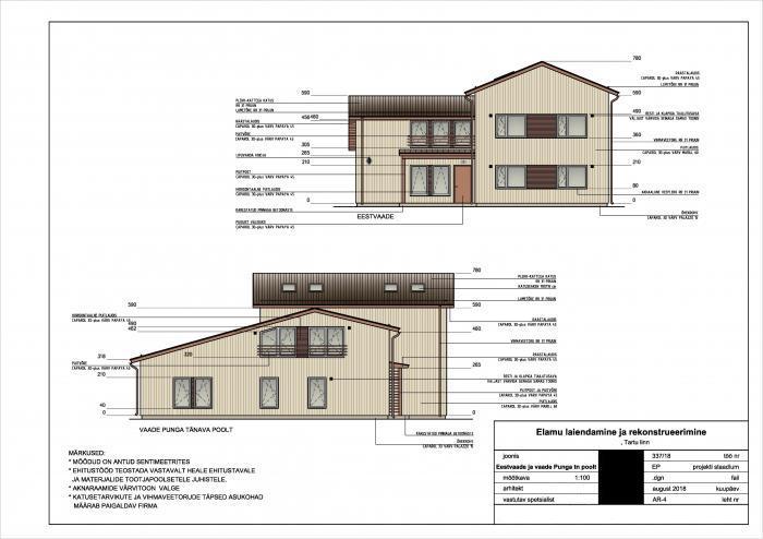
Töö sisu

Vaja teha eramul I ja Ii korrusel tasandus olemasolevale monoliitbetoon vahelaele ca 5cm. Põranda pinda Ca 120m2 ja võrk armatuuriga 150x150mm

Samuti vaja teha Ii korruse ja pööningu vahelagi 10cm monoliitbetoonist armeeringuga 16mm.
Põranda pinda ca 75m2.


Seinad Aeroc Classic 150mm plokkidest.

Soovin pakkumist tööle ehk m3 hinana sest siis saab pakkuja õigelt tasustatud vastavalt töömahule.

Pildid, video ja failid

Hanke korraldaja: eraisik ID38997

Pakkumised

Pakkumisi kokku: 1

Ettevõte Summa Käibemaks Lisatud Vestlus
Kasutaja ikoon ID38464
Pakkuja profiil Väike nool paremale
900€ Ei sisalda Ei sisalda 04.05.2019 Vestlus (2)

Pakkumise kirjeldus:

Tere, hinnapakkumine sisaldab ainult 120 m2 tasandus valu ja võrgu paigalduse tööraha.Materjal tellijalt . Ei sisalda vahelage.

Küsimused hanke korraldajale

Hanke korraldajale ei ole veel küsimusi esitatud.

Lisa küsimus

Lisa küsimus

Minu pakkumine

Reeglid

Pakkumise kirjelduse väli on mõeldud pakkumise detailsemaks lahti kirjutamiseks. Pikema teksti mugavaks sisestamiseks klikkige kasti paremal ülaservas oleval ikoonil.
Pakkumist tehes on keelatud postitada enda kontaktandmeid (nimi, telefon, aadress jne). Me jälgime ja analüüsime pakkumisi, et vältida pettuseid ja reeglite rikkumisi.
Rikkumise puhul kasutajakonto blokeeritakse.

 

Teisi töid samas valdkonnas

Valdkonnas "Betoonitööd" on 6 aktiivset tööd

Betoonist platsi valamine väljas.

Asukoht: Harjumaa, Luige
Aega jäänud: 8h 53 min
Tehtud pakkumisi: 4

Betoonpõranda valu

Asukoht: Harjumaa, Jõelähtme
Aega jäänud: 2p 8h
Tehtud pakkumisi: 3

Vanemad teated:

Vaata kõiki

Sellel veebilehel kasutatakse küpsiseid. Kasutamist jätkates nõustute küpsiste kasutamisega.

Sulge
 
Minu pakkumine

Reeglid

Pakkumise kirjelduse väli on mõeldud pakkumise detailsemaks lahti kirjutamiseks. Pikema teksti mugavaks sisestamiseks klikkige kasti paremal ülaservas oleval ikoonil.
Pakkumist tehes on keelatud postitada enda kontaktandmeid (nimi, telefon, aadress jne). Me jälgime ja analüüsime pakkumisi, et vältida pettuseid ja reeglite rikkumisi.
Rikkumise puhul kasutajakonto blokeeritakse.