+ Lisa oma töö      

Otsid ehitajat "Põrandaküte, paigaldus" valdkonnast?

Parima pakkumise ja teostaja leidmiseks lisa oma töö.

Hange on lõppenud!

Võitjaks osutus kasutaja ID 29814

Korraldaja hinnang tehtud tööle

5.0
14.06.2019
Töökiirus: 12345
Kvaliteet: 12345
Hind: 12345

Vesipõrandakütte paigaldus

ID 47148

6511 vaatamist

Prindi

  • check Pakkumiste tegemine
    kuni 16.05.2019
  • check Võitja valik kuni
    23.05.2019
  • 3 Töö teostamine
    ja hinnang
Hanke lõpp: N, 16. mai, 2019
Maakond: Läänemaa
Muu asula: lääne-nigula vald
Tööde algus: K, 15. mai, 2019 (Soovituslik)
Tööde lõpp: R, 31. mai, 2019 (Soovituslik)
Ehitusmaterjalid: Töö tegija poolt

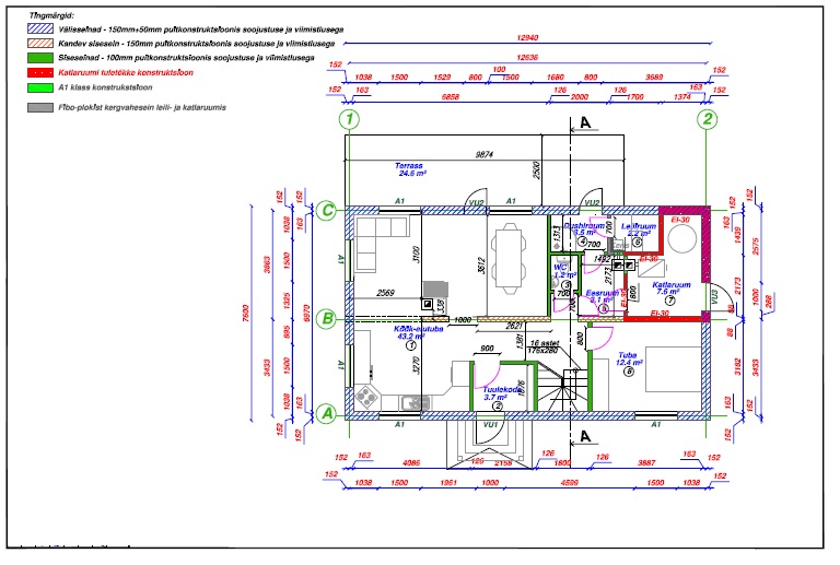
Töö sisu

Põrandaküttetoru paigaldus, kollektorid. 85rm. esimene korrus köök-elutuba,magamistuba,katlamaja,sanruumid,esik.

Pildid, video ja failid

Hanke korraldaja: eraisik ID50943

Pakkumised

Pakkumisi kokku: 6

Ettevõte Summa Käibemaks Lisatud Vestlus
Kasutaja ikoon ID43451
Pakkuja profiil Väike nool paremale
2 600€ Ei sisalda Ei sisalda 03.05.2019 Vestlus (0)

Pakkumise kirjeldus:

Tere

Hind sisaldab põrandaküttetoru, kollektorit koos sulgventiilidega ning vajalikke materjale paigaldamiseks. Hind sisaldab ka kütteprojekti, kui te seda ei soovi, on hind 350 eurot odavam.

Kasutaja ikoon ID51032
Pakkuja profiil Väike nool paremale
3 120€ Ei sisalda Ei sisalda 05.05.2019 Vestlus (0)

Pakkumise kirjeldus:

Hinnakujundus sõltub ja võib muutuda - millised kollektorid, kas PVC või roostevaba, kas koos ajamitega, kas paigaldada kollektorid kappidesse ja kui jah siis kas seina pealsetesse, või seina sisestesse?

Kasutaja ikoon ID38907
Pakkuja profiil Väike nool paremale
2 550€ Sisaldab KM Sisaldab KM 06.05.2019 Vestlus (0)
Kasutaja ikoon ID50618
Pakkuja profiil Väike nool paremale
2 810€ Ei sisalda Ei sisalda 07.05.2019 Vestlus (0)

Pakkumise kirjeldus:

Tere. Hind sisaldab põrandakütte torustiku, kollektorit, paigalduatöid, survestamist.
Hinnale ei lisandu käibemaksu.

Kasutaja ikoon ID51277
Pakkuja profiil Väike nool paremale
1 600€ Sisaldab KM Sisaldab KM 07.05.2019 Vestlus (0)

Pakkumise kirjeldus:

Tere
Hind sisaldab põranda kütte toru 20mm,kolektorit,kinnitus vahendeid ja tööd
Ei sisalda projekti

Kasutaja ikoon ID29814
Pakkuja profiil Väike nool paremale
1 400€ Ei sisalda Ei sisalda 16.05.2019 Vestlus (2)

Pakkumise kirjeldus:

Tere, Hind sisaldab 16mm toru ja kollektorit koos survestamisega. Hind ei sisalda projekti. Võime teostada ka põrandavalu tööd.

Küsimused hanke korraldajale

Küsimus: private ID50749   03.05.2019 10:51
Tere. Kas muid kütte lahendusi ei soviks . Onn olemas ued ja tänapavased ja ekonomsed kütte lahendused, tais automatika igas tuas eraldi . Onn kütte torud betoni sise ja onn pakkuda infra puna lahendust. Mõlamas variandis pole vaja katlamaja ehitada, kollektorite ehitust ja pumpasi. Holdus vaba ja tehase garanti 50 aastad . Energija kulu teie hoone kohalt keskmiselt 635 kw talvel kui väljas-20kraadi ja sees ´+24 kraadi. Kindlasti peab arvestama kuidas maja onn sojustatud. Need kütte lahendused on kindkasti soodsamad kui sojus pumbad koos trassitega ja liisa tarvikutega.<br />
Kui sovite teme pakkumise.<br />

Teavita reeglite rikkumisest

Korraldaja vastus:
Hanke korraldaja ei ole küsimusele veel vastanud

Küsimus: private ID50749   03.05.2019 10:51
Tere. Kas muid kütte lahendusi ei soviks . Onn olemas ued ja tänapavased ja ekonomsed kütte lahendused, tais automatika igas tuas eraldi . Onn kütte torud betoni sise ja onn pakkuda infra puna lahendust. Mõlamas variandis pole vaja katlamaja ehitada, kollektorite ehitust ja pumpasi. Holdus vaba ja tehase garanti 50 aastad . Energija kulu teie hoone kohalt keskmiselt 635 kw talvel kui väljas-20kraadi ja sees ´+24 kraadi. Kindlasti peab arvestama kuidas maja onn sojustatud. Need kütte lahendused on kindkasti soodsamad kui sojus pumbad koos trassitega ja liisa tarvikutega.<br />
Kui sovite teme pakkumise.<br />

Teavita reeglite rikkumisest

Korraldaja vastus:
Hanke korraldaja ei ole küsimusele veel vastanud

Küsimus: private ID43451   03.05.2019 12:37
Kas aluspind on ettevalmistatud ning armatuur paigas või ootate üldse kuivpaigaldust?<br />
Millise kütteallikaga on tegemist(soojuspump, halu- või pelletikatel?)<br />
<br />
Kas soovite ka kütteprojekti?

Teavita reeglite rikkumisest

Korraldaja vastus: 03.05.2019 13:06

Vundament hetkel liiva täis. Vaja veel enne kanal, vesi, peno, armatuur panna(loodan et see nädal saan ära teha). Kuivpaigaldus?<br />
halukatel. projekt puudub.<br />
Et vaja siis projekt, toru paigaldus, kollektorid otsa.

Teavita reeglite rikkumisest

Küsimus: private ID43451   03.05.2019 13:12
Millises ehitusejärgus hoone on? Kas soovite nö täislahendust, et kõigi regulaatorite ja kollektori mootorite paigaldust. Kuidas on võimalik kaableid vedada kontrolleri juurest tehnoruum?<br />
<br />

Teavita reeglite rikkumisest

Korraldaja vastus: 03.05.2019 13:27

hetkel ongi ainult vundament. soovin torudele otsa nö oreleid.

Teavita reeglite rikkumisest

Lisa küsimus

Lisa küsimus

Minu pakkumine

Reeglid

Pakkumise kirjelduse väli on mõeldud pakkumise detailsemaks lahti kirjutamiseks. Pikema teksti mugavaks sisestamiseks klikkige kasti paremal ülaservas oleval ikoonil.
Pakkumist tehes on keelatud postitada enda kontaktandmeid (nimi, telefon, aadress jne). Me jälgime ja analüüsime pakkumisi, et vältida pettuseid ja reeglite rikkumisi.
Rikkumise puhul kasutajakonto blokeeritakse.

 

Vanemad teated:

Vaata kõiki

Sellel veebilehel kasutatakse küpsiseid. Kasutamist jätkates nõustute küpsiste kasutamisega.

Sulge
 
Minu pakkumine

Reeglid

Pakkumise kirjelduse väli on mõeldud pakkumise detailsemaks lahti kirjutamiseks. Pikema teksti mugavaks sisestamiseks klikkige kasti paremal ülaservas oleval ikoonil.
Pakkumist tehes on keelatud postitada enda kontaktandmeid (nimi, telefon, aadress jne). Me jälgime ja analüüsime pakkumisi, et vältida pettuseid ja reeglite rikkumisi.
Rikkumise puhul kasutajakonto blokeeritakse.