+ Lisa oma töö      

Otsid ehitajat "Küttesüsteemid" valdkonnast?

Parima pakkumise ja teostaja leidmiseks lisa oma töö.

Vesipõrandakütte paigaldus Tycroc plaadiga 56 m2

ID 47418

2613 vaatamist

Prindi

  • check Pakkumiste tegemine
    kuni 24.05.2019
  • check Võitja valik kuni
    31.05.2019
  • 3 Töö teostamine
    ja hinnang
Hanke lõpp: R, 24. mai, 2019
Maakond: Harjumaa
Muu asula: Pelgulinn Kalamaja
Tööde algus: T, 28. mai, 2019 (Soovituslik)
Tööde lõpp: T, 04. juuni, 2019 (Soovituslik)
Ehitusmaterjalid: Töö tegija poolt

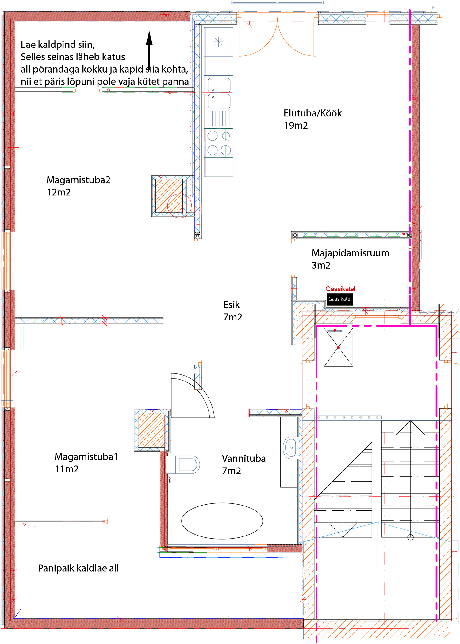
Töö sisu

Otsin põrandakütte paigaldajat 56m2 korterisse Pelgulinnas. Uusehitis, pööningukorter. Põrandapind on tegelikult suurem kui 56m2, aga kahes magamistoas kaldlagi, nii et kaldlae-põranda kokkusaamiskohas pole kütet vaja, tulevad kapid ja panipaik. Kütteplaate peaks olema vaja umbes 56m2 jagu.
4 kontuuri: 2 eraldi magamistuba, vannituba, ja elutuba/köök. Kõrid põrandaandurite jaoks on nelja kontuuri jaoks seinas olemas.
Dushiniši osale tuleb peale seguvalu (95x95cm dushinišš)

Palun hinnapakkumist tööle koos kõigi materjalide ja seguvaluga dushinišis.

Pildid, video ja failid

Hanke korraldaja: eraisik ID51325

Pakkumised

Pakkumisi kokku: 3

Ettevõte Summa Käibemaks Lisatud Vestlus
Kasutaja ikoon ID39474
Pakkuja profiil Väike nool paremale
2 500€ Ei sisalda Ei sisalda 22.05.2019 Vestlus (0)

Pakkumise kirjeldus:

Pakkumine hankes kirneldatule aga Floore kûttematile 25mm paksusega 16mm toruga 2500 eur +km. Põrand peab olema ettevalmistatud sile Ja ouhas OSB terve korteri ulatuses korraga. Sisaldab kollektorori paigaldamist ja süsteemi survestamist suruõhuga. Tööd saaks alistada alates 10. Juuni.

Kasutaja ikoon ID8633
Pakkuja profiil Väike nool paremale
2 400€ Ei sisalda Ei sisalda 22.05.2019 Vestlus (3)
Kasutaja ikoon ID50618
Pakkuja profiil Väike nool paremale
3 430€ Ei sisalda Ei sisalda 22.05.2019 Vestlus (0)

Pakkumise kirjeldus:

Hind sisaldab tycroc plaati 16mm torule, 16mm toru, küttekollektorit koos pumbaga, elektrilised kollektori klapid, paigaldustöid, materjalide transporti.
Hinnale ei lisandu käibemaksu.

Küsimused hanke korraldajale

Hanke korraldajale ei ole veel küsimusi esitatud.

Lisa küsimus

Lisa küsimus

Minu pakkumine

Reeglid

Pakkumise kirjelduse väli on mõeldud pakkumise detailsemaks lahti kirjutamiseks. Pikema teksti mugavaks sisestamiseks klikkige kasti paremal ülaservas oleval ikoonil.
Pakkumist tehes on keelatud postitada enda kontaktandmeid (nimi, telefon, aadress jne). Me jälgime ja analüüsime pakkumisi, et vältida pettuseid ja reeglite rikkumisi.
Rikkumise puhul kasutajakonto blokeeritakse.

 

Teisi töid samas valdkonnas

Valdkonnas "Küttesüsteemid" on 2 aktiivset tööd

no-img Pilt puudub

Küttesüsteemi püstakute vahetus ja radiaatoritega ühendamine

Asukoht: Järvamaa, Paide
Aega jäänud: 3p 6h
Tehtud pakkumisi: 2

Cooper&Hunter Consol Inverter 18

Asukoht: Harjumaa, Tallinn
Aega jäänud: 6h 52 min
Tehtud pakkumisi: 1

Vanemad teated:

Vaata kõiki

Sellel veebilehel kasutatakse küpsiseid. Kasutamist jätkates nõustute küpsiste kasutamisega.

Sulge
 
Minu pakkumine

Reeglid

Pakkumise kirjelduse väli on mõeldud pakkumise detailsemaks lahti kirjutamiseks. Pikema teksti mugavaks sisestamiseks klikkige kasti paremal ülaservas oleval ikoonil.
Pakkumist tehes on keelatud postitada enda kontaktandmeid (nimi, telefon, aadress jne). Me jälgime ja analüüsime pakkumisi, et vältida pettuseid ja reeglite rikkumisi.
Rikkumise puhul kasutajakonto blokeeritakse.