+ Lisa oma töö      

Otsid ehitajat "Eramu ehitus" valdkonnast?

Parima pakkumise ja teostaja leidmiseks lisa oma töö.

Eramu puitkarkass-seinte ehitus

ID 47510

2894 vaatamist

Prindi

  • check Pakkumiste tegemine
    kuni 11.06.2019
  • check Võitja valik kuni
    18.06.2019
  • 3 Töö teostamine
    ja hinnang
Hanke lõpp: T, 11. juuni, 2019
Maakond: Harjumaa
Muu asula: Parasmäe küla
Tööde algus: E, 17. juuni, 2019 (Soovituslik)
Tööde lõpp: L, 31. august, 2019 (Soovituslik)
Ehitusmaterjalid: Töö tegija poolt

Töö sisu

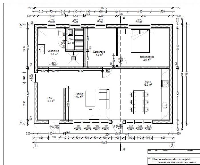
Soovime ehitajat puitkarkass-seinte ja vahelae ehitamiseks. Palume orienteeruvat tööde teostamise aega ja hinnapakkumist. Objekt asub Parasmäel Jõelähtme vallas Harjumaal. 1-kordne maja, ehitusalune pind 64,6m², ristkülikukujuline põhjaplaan. Erinevatelt ettevõtetelt on tellitud plaatvundament, fermid, viilkatus, aknad-uksed.

Pildid, video ja failid

Hanke korraldaja: eraisik ID51493

Pakkumised

Pakkumisi kokku: 3

Ettevõte Summa Käibemaks Lisatud Vestlus
Kasutaja ikoon ID44598
Pakkuja profiil Väike nool paremale
25 500€ Ikoon kell Ei sisalda Ei sisalda 04.06.2019 Vestlus (2)

Pakkumise kirjeldus:

Tere

Hind sisaldab kõiki materjale ja paigaldust.
Kandvad seinad: 50x195 puitkarkass,200mm vill,tuuletõkkekips,teipimine,tuulutusroovi paigaldus,fassaadi laua paigaldus(krunditud laud)Seest poolt aurutõke,roovitus,vill 50mm,osb plaat 10mm,13mm kips väliseintes koos akna palede ja viimistlusega
Lagi: Aurutõke,roovitus 28x70mm , 450mm villa, kips 13m ... Rohkem

Kasutaja ikoon ID46047
Pakkuja profiil Väike nool paremale
23 000€ Ei sisalda Ei sisalda 10.06.2019 Vestlus (1)

Pakkumise kirjeldus:

Tere!
Pakkumine sisaldab puitkarkass-seinte ja vahelae ehitamist koos materjalidega.
Tööde kestus 2-3 kuud

Kasutaja ikoon ID51029
Pakkuja profiil Väike nool paremale
11 785,0€ Ei sisalda Ei sisalda 11.06.2019 Vestlus (1)

Pakkumise kirjeldus:

Tere, Pakkumine vastavalt hanke kirjeldusele.

Küsimused hanke korraldajale

Küsimus: private ID44598   03.06.2019 13:39
Tere<br />
<br />
Kas soovite ainult kandvate seinte karkassi ehitust? Et kuni kipsini ei ole vaja ? Vahelagi samuti laagid paika?

Teavita reeglite rikkumisest

Korraldaja vastus: 03.06.2019 16:03

Tere<br />
<br />
Soovime seinte ehitust alates välisvoodrist kuni siseviimistluseni. Vahelage alates soojustamisest kuni siseviimistluseni.<br />
<br />
<br />

Teavita reeglite rikkumisest

Küsimus: private ID44598   03.06.2019 16:22
Tere<br />
<br />
Täiendan

Teavita reeglite rikkumisest

Korraldaja vastus: 11.06.2019 09:39

Tänan

Teavita reeglite rikkumisest

Lisa küsimus

Lisa küsimus

Minu pakkumine

Reeglid

Pakkumise kirjelduse väli on mõeldud pakkumise detailsemaks lahti kirjutamiseks. Pikema teksti mugavaks sisestamiseks klikkige kasti paremal ülaservas oleval ikoonil.
Pakkumist tehes on keelatud postitada enda kontaktandmeid (nimi, telefon, aadress jne). Me jälgime ja analüüsime pakkumisi, et vältida pettuseid ja reeglite rikkumisi.
Rikkumise puhul kasutajakonto blokeeritakse.

 

Teisi töid samas valdkonnas

Valdkonnas "Eramu ehitus" on 2 aktiivset tööd

Eramu ehitus

Asukoht: Viljandimaa, Viljandi
Aega jäänud: 5p 12h
Tehtud pakkumisi: 1

no-img Pilt puudub

Eramu ehitus. Karp kinni.

Asukoht: Lääne-Virumaa
Aega jäänud: 3p 12h
Tehtud pakkumisi: 0

Vanemad teated:

Vaata kõiki

Sellel veebilehel kasutatakse küpsiseid. Kasutamist jätkates nõustute küpsiste kasutamisega.

Sulge
 
Minu pakkumine

Reeglid

Pakkumise kirjelduse väli on mõeldud pakkumise detailsemaks lahti kirjutamiseks. Pikema teksti mugavaks sisestamiseks klikkige kasti paremal ülaservas oleval ikoonil.
Pakkumist tehes on keelatud postitada enda kontaktandmeid (nimi, telefon, aadress jne). Me jälgime ja analüüsime pakkumisi, et vältida pettuseid ja reeglite rikkumisi.
Rikkumise puhul kasutajakonto blokeeritakse.