+ Lisa oma töö      

Otsid ehitajat "Ventilatsioonitööd" valdkonnast?

Parima pakkumise ja teostaja leidmiseks lisa oma töö.

Ventilatsiooni ümberehitus - hambaravi

ID 47715

1606 vaatamist

Prindi

  • check Pakkumiste tegemine
    kuni 27.06.2019
  • check Võitja valik kuni
    04.07.2019
  • 3 Töö teostamine
    ja hinnang
Hanke lõpp: N, 27. juuni, 2019
Maakond: Harjumaa
Linn: Tallinn
Tööde algus: E, 24. juuni, 2019 (Soovituslik)
Tööde lõpp: P, 30. juuni, 2019 (Soovituslik)
Ehitusmaterjalid: Töö tegija poolt

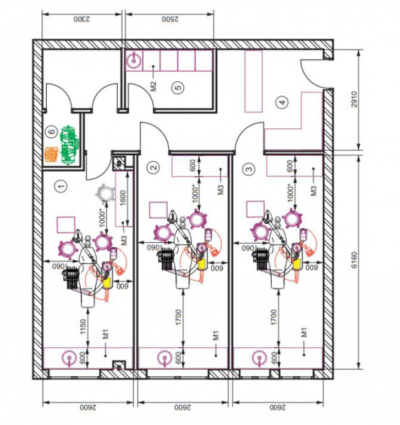
Töö sisu

Meil on üks ruum hetkel mida tahame jagade mitme ruumideks ja oleks vaja ventilatsiooni ymberteha et igasee tuppa läheks õhu sisend ja väljund. Majas on tsentraalne vent.agregaat.
On vaja tagada et õhuvool oleks minimuum 2L/m2 (hambaravi kabineti nõuded EVS 906:2018).
Peale ümber ehitust on vaja teha projekti ja mõõtmist.
Hetkel seal ei ole vaheseinu ja ainult üks ventilatsiooni õhu sisend ja väljund
Palun tehke hinnapakkumist tööle ja materjalidele.

Pildid, video ja failid

Hanke korraldaja: eraisik ID51638

Pakkumised

Pakkumisi kokku: 2

Ettevõte Summa Käibemaks Lisatud Vestlus
Kasutaja ikoon ID51445
Pakkuja profiil Väike nool paremale
4 500€ Ei sisalda Ei sisalda 23.06.2019 Vestlus (0)

Pakkumise kirjeldus:

4500 +km

Kasutaja ikoon ID48689
Pakkuja profiil Väike nool paremale
4 200€ Ei sisalda Ei sisalda 27.06.2019 Vestlus (0)

Küsimused hanke korraldajale

Hanke korraldajale ei ole veel küsimusi esitatud.

Lisa küsimus

Lisa küsimus

Minu pakkumine

Reeglid

Pakkumise kirjelduse väli on mõeldud pakkumise detailsemaks lahti kirjutamiseks. Pikema teksti mugavaks sisestamiseks klikkige kasti paremal ülaservas oleval ikoonil.
Pakkumist tehes on keelatud postitada enda kontaktandmeid (nimi, telefon, aadress jne). Me jälgime ja analüüsime pakkumisi, et vältida pettuseid ja reeglite rikkumisi.
Rikkumise puhul kasutajakonto blokeeritakse.

 

Teisi töid samas valdkonnas

Valdkonnas "Ventilatsioonitööd" on 2 aktiivset tööd

Ventilatsiooni sissepuhke asukoha muutmine

Asukoht: Harjumaa, Tallinn
Aega jäänud: 1p 2h
Tehtud pakkumisi: 3

Lokaalse soojustagastusega ventilatsiooniseadmete paigaldus

Asukoht: Harjumaa, Püünsi
Aega jäänud: 4p 2h
Tehtud pakkumisi: 0

Vanemad teated:

Vaata kõiki

Sellel veebilehel kasutatakse küpsiseid. Kasutamist jätkates nõustute küpsiste kasutamisega.

Sulge
 
Minu pakkumine

Reeglid

Pakkumise kirjelduse väli on mõeldud pakkumise detailsemaks lahti kirjutamiseks. Pikema teksti mugavaks sisestamiseks klikkige kasti paremal ülaservas oleval ikoonil.
Pakkumist tehes on keelatud postitada enda kontaktandmeid (nimi, telefon, aadress jne). Me jälgime ja analüüsime pakkumisi, et vältida pettuseid ja reeglite rikkumisi.
Rikkumise puhul kasutajakonto blokeeritakse.