+ Lisa oma töö      

Otsid ehitajat "Eramu ehitus" valdkonnast?

Parima pakkumise ja teostaja leidmiseks lisa oma töö.

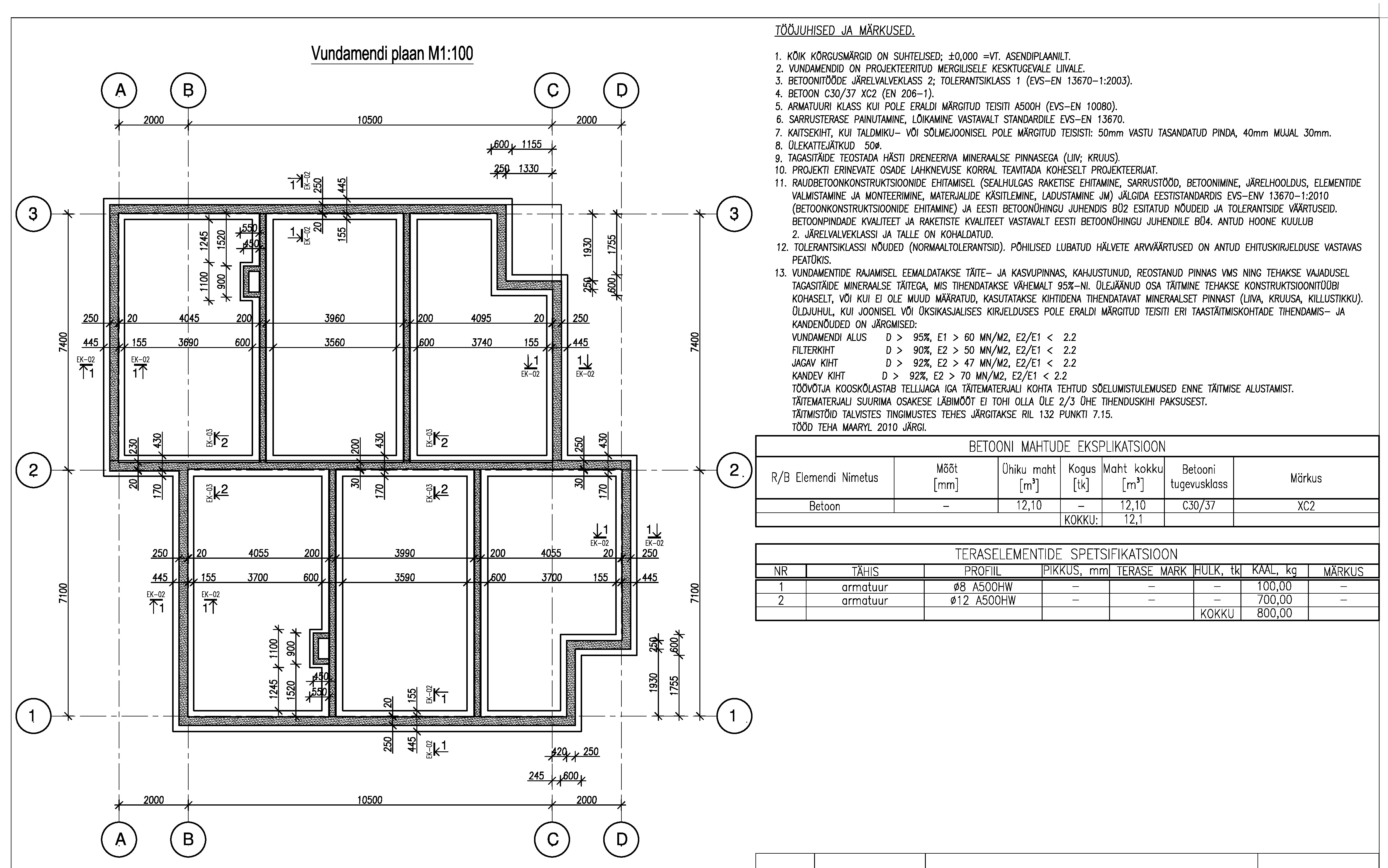
Lintvundament

ID 47744

5337 vaatamist

Prindi

  • check Pakkumiste tegemine
    kuni 30.06.2019
  • check Võitja valik kuni
    07.07.2019
  • 3 Töö teostamine
    ja hinnang
Hanke lõpp: P, 30. juuni, 2019
Maakond: Harjumaa
Linn: Tallinn
Tööde algus: E, 01. juuli, 2019 (Soovituslik)
Tööde lõpp: L, 31. august, 2019 (Soovituslik)
Ehitusmaterjalid: Töö tellija poolt

Töö sisu

Uue lintvundamendi kogu suurus 205 m2. Vundamendi sokkel tuleb laduda fibost 200/250 MP5.
Projektil märgitud põranda alla jääv radooni kile koos kinnitamisega jääb ära.
Uus vundament tuleb samale kohale, kus praegu asub vana 105 m2 vundament. Paekivi läheb kasutusse parkimisala täiteks ehk tee ehituseks.

Lisaks asetseb plaanitava vundamendi likvideeritav kuiv settekaev, mis ei ole kasutuses olnud 15 aastat kasutatud.

Kommunikatsioonid:

Vee ja elektriliitumine on olemas. Maja mõlemale poolele on plaanitud eraldi vee ja elektriga liitumine.

Elektriliitumine on kuumalegi poolele eraldi ja ühine elektrikilp asub tänavapostil.

Vee - ja kanalisatsiooni liitumispunkid asuvad krundi vahetus läheduses ehk 2 m. Vahetult krundi eest ehk enne liitumispunktide jookseb läbi maalune alajaama kaabel. See osa tuleb kaevata käsitsi.
Side ehk interneti ühendus tuleb tuua maa seest hoovi kaudu õhuliini postist , mis asub vahetult 5/14 piiril.

Hinnapakkumises näidata eraldi tehtavate tööde hind:

- Kaevetööd ja tagasitäide
- Kommunikatsioonide vedu
- Pinnase tihendamine killustikuga
- Saalungite ehitus ja armeerimine
- Taldmiku valamineb
- Fibo 5 200/250 ladumine(+kamina tugevadatud taldmik)
- Hüdroisolatsiooni paigaldus
- sokli/taldmiku soojutuse paigaldus 50 mm IKO või analoog
- Vundamendi kaitse paigaldus
- Põranda aluse täitmine liiva ja killustikuga + tihendamine
- Põranda soojustamine EPS 2*100mm
- Kile paigaldus ja armeerimine
- Küttetorude paigaldus
- Betoonpõranda valamine




Pildid, video ja failid

Hanke korraldaja: eraisik ID3561

Pakkumised

Pakkumisi kokku: 1

Ettevõte Summa Käibemaks Lisatud Vestlus
Kasutaja ikoon ID46975
Pakkuja profiil Väike nool paremale
13 300€ Ei sisalda Ei sisalda 30.06.2019 Vestlus (0)

Pakkumise kirjeldus:

Tere. Pakkumises tööraha. Kuna ei saa täpset ülevaadet olemasolevast olukorrast.

Küsimused hanke korraldajale

Hanke korraldajale ei ole veel küsimusi esitatud.

Lisa küsimus

Lisa küsimus

Minu pakkumine

Reeglid

Pakkumise kirjelduse väli on mõeldud pakkumise detailsemaks lahti kirjutamiseks. Pikema teksti mugavaks sisestamiseks klikkige kasti paremal ülaservas oleval ikoonil.
Pakkumist tehes on keelatud postitada enda kontaktandmeid (nimi, telefon, aadress jne). Me jälgime ja analüüsime pakkumisi, et vältida pettuseid ja reeglite rikkumisi.
Rikkumise puhul kasutajakonto blokeeritakse.

 

Teisi töid samas valdkonnas

Valdkonnas "Eramu ehitus" on 2 aktiivset tööd

Eramu ehitus

Asukoht: Viljandimaa, Viljandi
Aega jäänud: 7p 1h
Tehtud pakkumisi: 0

no-img Pilt puudub

Eramu ehitus. Karp kinni.

Asukoht: Lääne-Virumaa
Aega jäänud: 5p 1h
Tehtud pakkumisi: 0

Vanemad teated:

Vaata kõiki

Sellel veebilehel kasutatakse küpsiseid. Kasutamist jätkates nõustute küpsiste kasutamisega.

Sulge
 
Minu pakkumine

Reeglid

Pakkumise kirjelduse väli on mõeldud pakkumise detailsemaks lahti kirjutamiseks. Pikema teksti mugavaks sisestamiseks klikkige kasti paremal ülaservas oleval ikoonil.
Pakkumist tehes on keelatud postitada enda kontaktandmeid (nimi, telefon, aadress jne). Me jälgime ja analüüsime pakkumisi, et vältida pettuseid ja reeglite rikkumisi.
Rikkumise puhul kasutajakonto blokeeritakse.