+ Lisa oma töö      

Otsid ehitajat "Siseviimistlustööd" valdkonnast?

Parima pakkumise ja teostaja leidmiseks lisa oma töö.

Siseseinte kipskrohvimine

ID 47928

1616 vaatamist

Prindi

  • check Pakkumiste tegemine
    kuni 07.07.2019
  • check Võitja valik kuni
    14.07.2019
  • 3 Töö teostamine
    ja hinnang
Hanke lõpp: P, 7. juuli, 2019
Maakond: Harjumaa
Muu asula: Jõelähtme vald
Tööde algus: R, 12. juuli, 2019 (Soovituslik)
Tööde lõpp: L, 31. august, 2019 (Soovituslik)
Ehitusmaterjalid: Töö tegija poolt

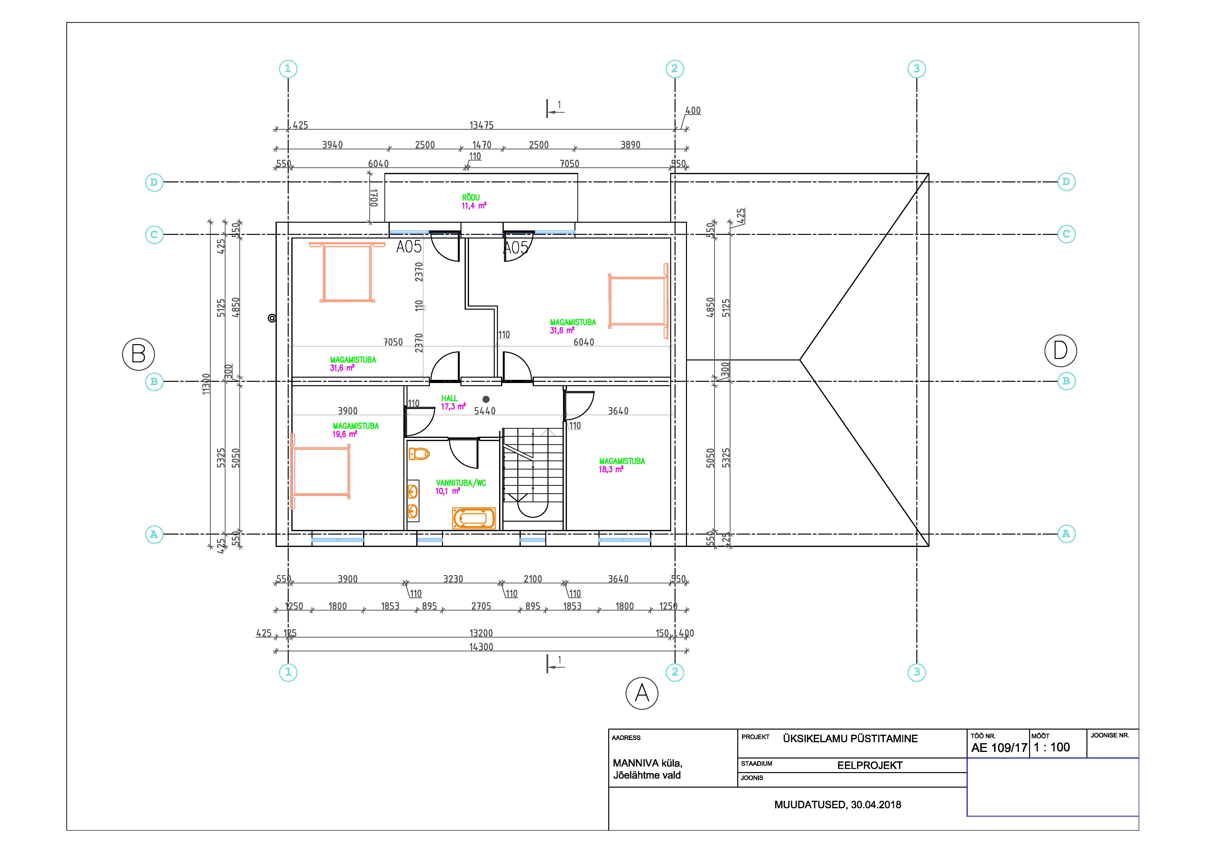
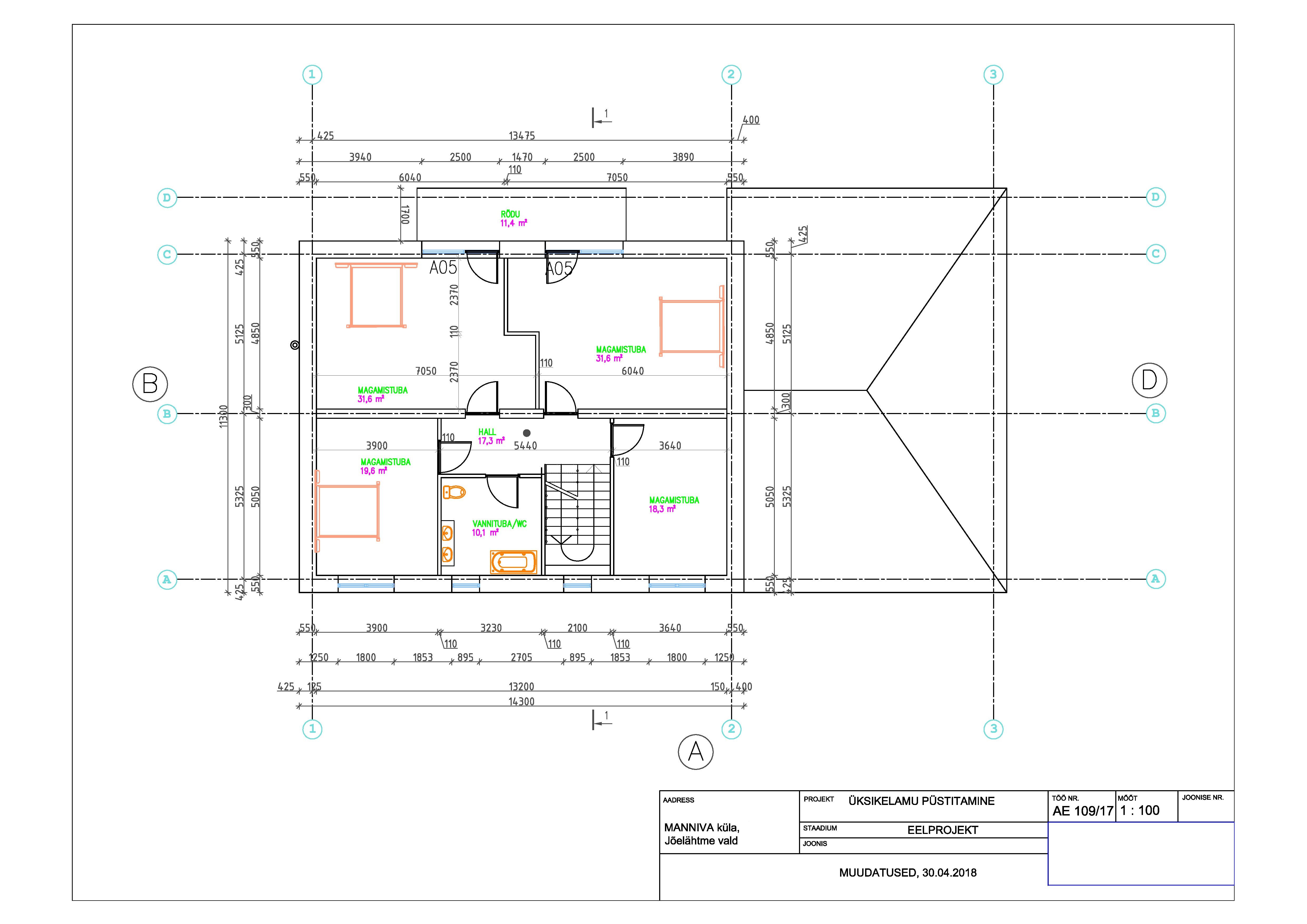
Töö sisu

Krohvida ja pahteldada 750m2 elamu sisseseinad.

Objekti asukoht: Harjumaa, Jõelähtme vald, Manniva küla

Siseseinte ja aknaavade kipskrohvimine - (MP75 Knauf)
Krohvi paksus kuni kuni 20 mm.

Tööde nimekiri (750 m2):

1. Krunt poorbetoonile
2. Kipskrohv- MP75,
3. Armeerimisvõrk
4. Lauspahtel
5. Kruntvärv



Pildid, video ja failid

Hanke korraldaja: eraisik ID25798

Pakkumised

Pakkumisi kokku: 6

Ettevõte Summa Käibemaks Lisatud Vestlus
Kasutaja ikoon ID50650
Pakkuja profiil Väike nool paremale
15 000€ Ei sisalda Ei sisalda 01.07.2019 Vestlus (2)

Pakkumise kirjeldus:

Selline too teeme uhe nadalaga.

Kasutaja ikoon ID39644
Pakkuja profiil Väike nool paremale
14 000€ Ei sisalda Ei sisalda 01.07.2019 Vestlus (1)
Kasutaja ikoon ID28162
Pakkuja profiil Väike nool paremale
13 600€ Sisaldab KM Sisaldab KM 02.07.2019 Vestlus (1)

Pakkumise kirjeldus:

Ei sisalda materjalide maksumust. Väike perefirma, teeme kiirelt ja korralikult.

Kasutaja ikoon ID47265
Pakkuja profiil Väike nool paremale
12 500€ Ei sisalda Ei sisalda 05.07.2019 Vestlus (2)

Pakkumise kirjeldus:

Tere,

Pakkumine sisaldab vajaminevaid töid. Garantii 2a

Kasutaja ikoon ID51612
Pakkuja profiil Väike nool paremale
15€ Ei sisalda Ei sisalda 05.07.2019 Vestlus (3)

Pakkumise kirjeldus:

Tere!
15 eur/m2 sisaldab hanke kirjelduses märgitud töid.

Kasutaja ikoon ID31957
Pakkuja profiil Väike nool paremale
18 750€ Ei sisalda Ei sisalda 07.07.2019 Vestlus (3)

Pakkumise kirjeldus:

Tere,

Pakkumine vastavalt hanke kirjeldusele 750 m2 seinade krohvimine kuni krundi pinnani.
Juhin tähelepanu, et aknapaled oleks mõistlik ehitada tycroc ehitusplaadist, kuid see on rohkem tellija enda otsus, kuidas ta neid lahendada soovib. Kui meie pakkumine on sobiv, siis palume vestluses teada anda ning seejärel saame leida sobiva ajavahemiku t ... Rohkem

Küsimused hanke korraldajale

Hanke korraldajale ei ole veel küsimusi esitatud.

Lisa küsimus

Lisa küsimus

Minu pakkumine

Reeglid

Pakkumise kirjelduse väli on mõeldud pakkumise detailsemaks lahti kirjutamiseks. Pikema teksti mugavaks sisestamiseks klikkige kasti paremal ülaservas oleval ikoonil.
Pakkumist tehes on keelatud postitada enda kontaktandmeid (nimi, telefon, aadress jne). Me jälgime ja analüüsime pakkumisi, et vältida pettuseid ja reeglite rikkumisi.
Rikkumise puhul kasutajakonto blokeeritakse.

 

Teisi töid samas valdkonnas

Valdkonnas "Siseviimistlustööd" on 25 aktiivset tööd

Vannitoa kraanikausi ühendamine

Asukoht: Harjumaa, Tallinn
Aega jäänud: 1p 23h
Tehtud pakkumisi: 4

Toaleti seinte pahteldamine ja värvimine

Asukoht: Tartumaa, Tartu
Aega jäänud: 23h 51 min
Tehtud pakkumisi: 3

Vanemad teated:

Vaata kõiki

Sellel veebilehel kasutatakse küpsiseid. Kasutamist jätkates nõustute küpsiste kasutamisega.

Sulge
 
Minu pakkumine

Reeglid

Pakkumise kirjelduse väli on mõeldud pakkumise detailsemaks lahti kirjutamiseks. Pikema teksti mugavaks sisestamiseks klikkige kasti paremal ülaservas oleval ikoonil.
Pakkumist tehes on keelatud postitada enda kontaktandmeid (nimi, telefon, aadress jne). Me jälgime ja analüüsime pakkumisi, et vältida pettuseid ja reeglite rikkumisi.
Rikkumise puhul kasutajakonto blokeeritakse.