+ Lisa oma töö      

Otsid ehitajat "Põrandatööd" valdkonnast?

Parima pakkumise ja teostaja leidmiseks lisa oma töö.

Keldri põrand epo kattega

ID 48204

850 vaatamist

Prindi

  • check Pakkumiste tegemine
    kuni 25.07.2019
  • check Võitja valik kuni
    01.08.2019
  • 3 Töö teostamine
    ja hinnang
Hanke lõpp: N, 25. juuli, 2019
Maakond: Tartumaa
Linn: Tartu
Tööde algus: E, 29. juuli, 2019 (Soovituslik)
Tööde lõpp: P, 04. august, 2019 (Soovituslik)
Ehitusmaterjalid: Töö tegija poolt

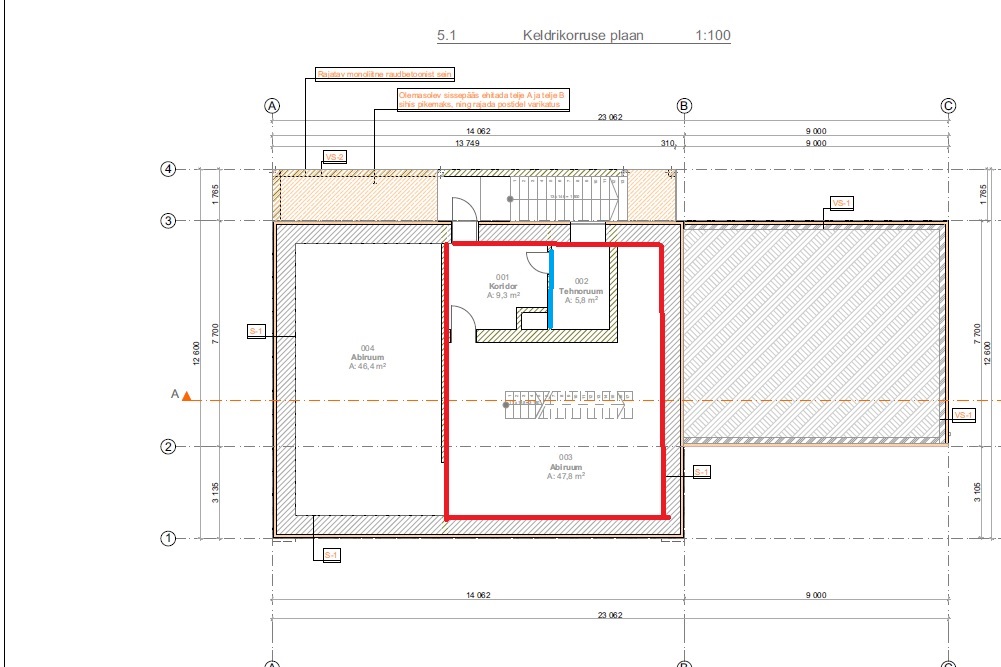
Töö sisu

Vaja on katta keldri põrand epoga. Praegu on põrandal vana põrandaplaat, mis jääb epo alla.
Ääred on vaja korrastada ja teha kaldega nurgad.
Põranda mõõdud on: 9,3x7,3m
Põrandad on eri tasapinnas ja tasapindade vahel on üheastmeline trepp (sinine joon)
Värvus betooni hall.
Pealmise kihi paksus umbes 2mm.

Pildid, video ja failid

Hanke korraldaja: ettevõte ID36409

Pakkumised

Pakkumisi kokku: 0

Küsimused hanke korraldajale

Küsimus: private ID50974   21.07.2019 20:00
Tere. Kas EPO katte asemel võiks pakkuda Polyurea pinnakatet?

Teavita reeglite rikkumisest

Korraldaja vastus: 21.07.2019 22:51

No paku

Teavita reeglite rikkumisest

Lisa küsimus

Lisa küsimus

Minu pakkumine

Reeglid

Pakkumise kirjelduse väli on mõeldud pakkumise detailsemaks lahti kirjutamiseks. Pikema teksti mugavaks sisestamiseks klikkige kasti paremal ülaservas oleval ikoonil.
Pakkumist tehes on keelatud postitada enda kontaktandmeid (nimi, telefon, aadress jne). Me jälgime ja analüüsime pakkumisi, et vältida pettuseid ja reeglite rikkumisi.
Rikkumise puhul kasutajakonto blokeeritakse.

 

Teisi töid samas valdkonnas

Valdkonnas "Põrandatööd" on 2 aktiivset tööd

Talumaja põrandate valamine/ehitus koos küttetorustiku paigaldusega

Asukoht: Raplamaa, Purila
Aega jäänud: 16p 5h
Tehtud pakkumisi: 2

Põrandakütte paigaldus ja põrandavalu (kips või betoon)

Asukoht: Saaremaa, Muhu vald
Aega jäänud: 5h 3 min
Tehtud pakkumisi: 1

Vanemad teated:

Vaata kõiki

Sellel veebilehel kasutatakse küpsiseid. Kasutamist jätkates nõustute küpsiste kasutamisega.

Sulge
 
Minu pakkumine

Reeglid

Pakkumise kirjelduse väli on mõeldud pakkumise detailsemaks lahti kirjutamiseks. Pikema teksti mugavaks sisestamiseks klikkige kasti paremal ülaservas oleval ikoonil.
Pakkumist tehes on keelatud postitada enda kontaktandmeid (nimi, telefon, aadress jne). Me jälgime ja analüüsime pakkumisi, et vältida pettuseid ja reeglite rikkumisi.
Rikkumise puhul kasutajakonto blokeeritakse.