+ Lisa oma töö      

Otsid ehitajat "Eramu ehitus" valdkonnast?

Parima pakkumise ja teostaja leidmiseks lisa oma töö.

Väikemaja ehitus puitsõrestikul aastaringseks kasutamiseks

ID 48360

2026 vaatamist

Prindi

  • check Pakkumiste tegemine
    kuni 14.08.2019
  • check Võitja valik kuni
    21.08.2019
  • 3 Töö teostamine
    ja hinnang
Hanke lõpp: K, 14. august, 2019
Maakond: Harjumaa
Muu asula: Aila küla
Tööde algus: P, 01. september, 2019 (Soovituslik)
Tööde lõpp: N, 31. oktoober, 2019 (Soovituslik)
Ehitusmaterjalid: Töö tegija poolt

Töö sisu

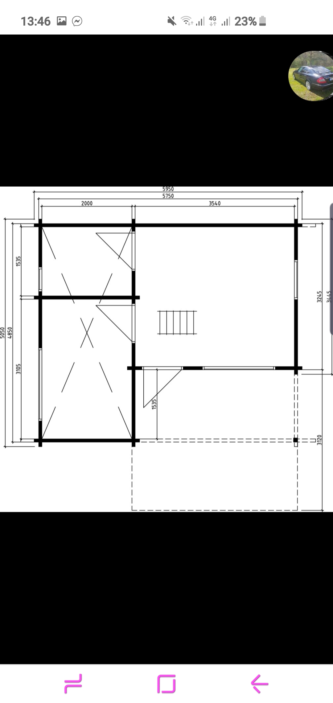
Soovin saada pakkumist, millel eraldi kokku maksumus materjalile ja eraldi maksumus töörahale. Vajalikud majasisesed Torutööd, elektritööd ja väike biomahuti. Majake puitsõrestikul, soojustatud põrand, katus, seinad. Väljas voodrilaud, sees samuti laudpõrand, laudlagi, laud seinad. Suitsukorstnaga pliit-kamin, wc pott, kraanikauss, soojaveeboiler, dušinurk. Redeltrepp puidust üles magamislavale ja seal peab piire ees olema, et alla ei kuku keegi kogemata. Pildimaterjal on võetud interneti avarustest ja majake võiks olla sellise lahendusega. Majake akende, ustega, katusega, võtmed kätte, seest väljast valmis. Terrass. Nii nagu pildil näete. Asukoht ehitaustöödel keila lähedal +/- 3km. Ehitusjärgne prahikoristus, jääke hoovi peale ei taha. Olemas tee, olemas puurkaev, olemas elekter, Vaja ühendada. Elektrikilp majakesest kuni 10m. Vesi kuni 5m. Pinnas, 50cm muld ja siis paas biomahuti paigaldamiseks info.

Pildid, video ja failid

Hanke korraldaja: eraisik ID52099

Pakkumised

Pakkumisi kokku: 7

Ettevõte Summa Käibemaks Lisatud Vestlus
Kasutaja ikoon ID52071
Pakkuja profiil Väike nool paremale
50 000€ Ei sisalda Ei sisalda 01.08.2019 Vestlus (0)

Pakkumise kirjeldus:

Kuna projekt tundub alles väga toores olevat ja korralikku projekti pole veel koostatud, siis tekkis küsimus, kas soovite leida kogu idee teostajat ( alates ehitusprojekti koostamisest, projekteeriaga läbiräääkimised, kov-iga asjaajamised , nõuetekohane paberimajandus jne) kuni võtmed kätte üleandmiseni. Sellisel juhul on antud hinnapakkumine natu ... Rohkem

Kasutaja ikoon ID49418
Pakkuja profiil Väike nool paremale
43 000€ Ei sisalda Ei sisalda 07.08.2019 Vestlus (0)

Pakkumise kirjeldus:

Стоимость материалов 23000,0 EUR

Kasutaja ikoon ID33838
Pakkuja profiil Väike nool paremale
31 400€ Ei sisalda Ei sisalda 09.08.2019 Vestlus (0)

Pakkumise kirjeldus:

ilma biomahuti

Kasutaja ikoon ID27299
Pakkuja profiil Väike nool paremale
45 000€ Ei sisalda Ei sisalda 12.08.2019 Vestlus (0)
Kasutaja ikoon ID44598
Pakkuja profiil Väike nool paremale
40 000€ Ei sisalda Ei sisalda 13.08.2019 Vestlus (0)

Pakkumise kirjeldus:

Tere

Pakkumine tehtud vastavalt hanke kirjeldusele.

Kasutaja ikoon ID46092
Pakkuja profiil Väike nool paremale
39 000€ Ei sisalda Ei sisalda 14.08.2019 Vestlus (0)

Pakkumise kirjeldus:

Ehitusealune pind peaks jääma 20 ruutmeetrit v vähem, siis pääseb väiksema dokumentatsiooniga

Kasutaja ikoon ID48431
Pakkuja profiil Väike nool paremale
29 500€ Ei sisalda Ei sisalda 14.08.2019 Vestlus (0)

Pakkumise kirjeldus:

Tere. Minu pakkumine sisaldab kõike vajaliku aga hind võib muutuda siis kui osutub võitjaks ja soovite hoopis muid asju millega olen mina arvestanud eks seda saab kõike hiljem arutada.
Hetkel materjali peale kulub ligikaudu 18000 ja üles jääb tööraha plus hanke teenus tasu. Lgp Joonas

Küsimused hanke korraldajale

Küsimus: private ID44598   31.07.2019 19:12
Tere<br />
<br />
Palju on m2 majal? Piltidelt välja ei loe,Aitäh

Teavita reeglite rikkumisest

Korraldaja vastus: 13.08.2019 11:15

Alumine korrus ca 20m2. Väike aiamaja nö magamislavatsiga redelist üles vannitoa ja väikse toa peal. See ei tohiks ehitusluba vajadagi.

Teavita reeglite rikkumisest

Lisa küsimus

Lisa küsimus

Minu pakkumine

Reeglid

Pakkumise kirjelduse väli on mõeldud pakkumise detailsemaks lahti kirjutamiseks. Pikema teksti mugavaks sisestamiseks klikkige kasti paremal ülaservas oleval ikoonil.
Pakkumist tehes on keelatud postitada enda kontaktandmeid (nimi, telefon, aadress jne). Me jälgime ja analüüsime pakkumisi, et vältida pettuseid ja reeglite rikkumisi.
Rikkumise puhul kasutajakonto blokeeritakse.

 

Vanemad teated:

Vaata kõiki

Sellel veebilehel kasutatakse küpsiseid. Kasutamist jätkates nõustute küpsiste kasutamisega.

Sulge
 
Minu pakkumine

Reeglid

Pakkumise kirjelduse väli on mõeldud pakkumise detailsemaks lahti kirjutamiseks. Pikema teksti mugavaks sisestamiseks klikkige kasti paremal ülaservas oleval ikoonil.
Pakkumist tehes on keelatud postitada enda kontaktandmeid (nimi, telefon, aadress jne). Me jälgime ja analüüsime pakkumisi, et vältida pettuseid ja reeglite rikkumisi.
Rikkumise puhul kasutajakonto blokeeritakse.