+ Lisa oma töö      

Otsid ehitajat "Vundamenditööd" valdkonnast?

Parima pakkumise ja teostaja leidmiseks lisa oma töö.

Lintvundamendi ehitus

ID 48637

2808 vaatamist

Prindi

  • check Pakkumiste tegemine
    kuni 02.09.2019
  • check Võitja valik kuni
    09.09.2019
  • 3 Töö teostamine
    ja hinnang
Hanke lõpp: E, 2. september, 2019
Maakond: Harjumaa
Muu asula: Kose vald, Tade küla
Tööde algus: T, 01. oktoober, 2019 (Soovituslik)
Tööde lõpp: N, 31. oktoober, 2019 (Soovituslik)
Ehitusmaterjalid: Töö tegija poolt

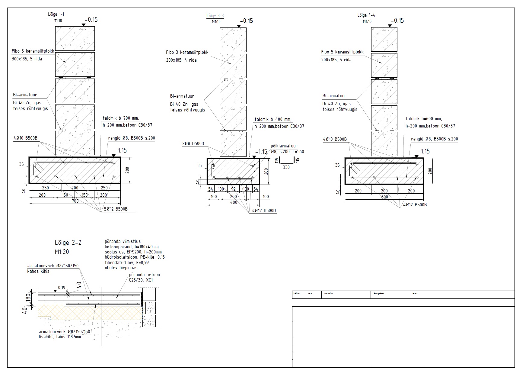
Töö sisu

Tere

Sooviks hoone lintvundamendi ehituse pakkumist. Vundamendi auk kaevatud. Vajalik pooles osas tagasitäide (kaevatud rohkem välja, kui vaja, sest tegu oli savi pinnasega).

Pakkumine:
- Vajalikus ulatuses tagasitäide (liiva/kruusaga), koos tihendamisega
- Tihendatud killustiku aluse ehitus
- Taldmiku ehitus (saalungid, armatuuri paigaldus ja sidumine)
- Betooni valamine koos tihendamisega
- Fibo5 müüride ladumine
- Hüdroisolatsioon
- Vundamendi müüri soojustamine

Pildid, video ja failid

Hanke korraldaja: eraisik ID36135

Pakkumised

Pakkumisi kokku: 4

Ettevõte Summa Käibemaks Lisatud Vestlus
Kasutaja ikoon ID42519
Pakkuja profiil Väike nool paremale
4 000€ Ei sisalda Ei sisalda 20.08.2019 Vestlus (0)

Pakkumise kirjeldus:

tere,pakkume ainult tööhinda.Lugupidamisega

Kasutaja ikoon ID44598
Pakkuja profiil Väike nool paremale
20 000€ Ei sisalda Ei sisalda 25.08.2019 Vestlus (0)

Pakkumise kirjeldus:

Tere

Pakkumine tehtud vastavalt hanke kirjeldusele.

Kasutaja ikoon ID8356
Pakkuja profiil Väike nool paremale
17 344€ Ei sisalda Ei sisalda 02.09.2019 Vestlus (0)

Pakkumise kirjeldus:

Hind küsitud vundamenditöödele.

Kasutaja ikoon ID51052
Pakkuja profiil Väike nool paremale
17 000€ Ei sisalda Ei sisalda 02.09.2019 Vestlus (0)

Küsimused hanke korraldajale

Hanke korraldajale ei ole veel küsimusi esitatud.

Lisa küsimus

Lisa küsimus

Minu pakkumine

Reeglid

Pakkumise kirjelduse väli on mõeldud pakkumise detailsemaks lahti kirjutamiseks. Pikema teksti mugavaks sisestamiseks klikkige kasti paremal ülaservas oleval ikoonil.
Pakkumist tehes on keelatud postitada enda kontaktandmeid (nimi, telefon, aadress jne). Me jälgime ja analüüsime pakkumisi, et vältida pettuseid ja reeglite rikkumisi.
Rikkumise puhul kasutajakonto blokeeritakse.

 

Vanemad teated:

Vaata kõiki

Sellel veebilehel kasutatakse küpsiseid. Kasutamist jätkates nõustute küpsiste kasutamisega.

Sulge
 
Minu pakkumine

Reeglid

Pakkumise kirjelduse väli on mõeldud pakkumise detailsemaks lahti kirjutamiseks. Pikema teksti mugavaks sisestamiseks klikkige kasti paremal ülaservas oleval ikoonil.
Pakkumist tehes on keelatud postitada enda kontaktandmeid (nimi, telefon, aadress jne). Me jälgime ja analüüsime pakkumisi, et vältida pettuseid ja reeglite rikkumisi.
Rikkumise puhul kasutajakonto blokeeritakse.