+ Lisa oma töö      

Otsid ehitajat "Betoonitööd" valdkonnast?

Parima pakkumise ja teostaja leidmiseks lisa oma töö.

Betoonpõrandate valamine ning ettevalmistustööd.

ID 48905

1661 vaatamist

Prindi

  • check Pakkumiste tegemine
    kuni 17.09.2019
  • check Võitja valik kuni
    24.09.2019
  • 3 Töö teostamine
    ja hinnang
Hanke lõpp: T, 17. september, 2019
Maakond: Harjumaa
Muu asula: Viimsi vald
Tööde algus: E, 23. september, 2019 (Soovituslik)
Tööde lõpp: P, 20. oktoober, 2019 (Soovituslik)
Ehitusmaterjalid: Töö tegija poolt

Töö sisu

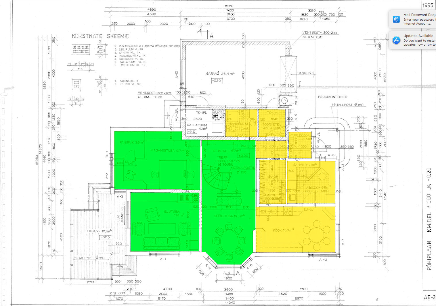
Hanke sisuks on eramu 1. korruse betoonpõranda ehitamine olemas oleva betoonialuse peale.


Betoonivalu sooviks joonisel märgitud rohilise ja kollase alale.

Tööde sisu:

1)

- Vana puitpõranda demonteerimine ja utiliseerimine (plaani peal roheline ala) ca 65m2.
- 20mm PIR plaat + kile
- Armeeringu paigaldus
- Küttetorud (paigaldab kolmas osapool, ei kuulu antud hanke raames teostavate tööde hulka)
- Betoneerimistööd ~5cm

2)
- Vana keraamilise plaadi demonteerimine ja utiliseerimine (plaani peal kollane ala) ca 40m2.

- 4x4cm soonte lõikamine 15-20cm vahega olemas oleva betoonpõrandasse küttetorustiku paigaldamiseks, kokku ca 200jm.

- Küttetorud (paigaldab kolmas osapool, ei kuulu antud hanke raames teostavate tööde hulka)

- Küttetorude soontesse betoneerimine.

3) Kogu põrandapinda (roheline ja kollane ala) isetasanduva seguga tasandamine, et jääks sobiv pind parketti paigalduseks.


Pildid, video ja failid

Hanke korraldaja: eraisik ID52145

Pakkumised

Pakkumisi kokku: 1

Ettevõte Summa Käibemaks Lisatud Vestlus
Kasutaja ikoon ID52522
Pakkuja profiil Väike nool paremale
5 544,6€ Ei sisalda Ei sisalda 16.09.2019 Vestlus (0)

Pakkumise kirjeldus:

Hind on arvega ilma km.
tehtud töödele jääb 2a garantii
materjalide eest saadame esimese arve kohe kui materjal on objektil.
Arve tasumiseks on 10 päeva tööde alustamisel sōlmime altöövōtu lepingu!

Küsimused hanke korraldajale

Küsimus: private ID38464   11.09.2019 11:19
Tere, kas seinaviimistlus tuleb uus ? Või peab arvestama ka seinte kinni katmisega? Tekib tolmu , kas on probleemiks?

Teavita reeglite rikkumisest

Korraldaja vastus: 11.09.2019 23:12

Siseviimistlus tuleb uus ning seinu ei ole vaja katta. Soonte lõikamisel oleks vaja kasutada tolmuimejaga ühendavat soonelõikurit, kuid täiesti tolmuvaba see protsess ei pea olema.

Teavita reeglite rikkumisest

Lisa küsimus

Lisa küsimus

Minu pakkumine

Reeglid

Pakkumise kirjelduse väli on mõeldud pakkumise detailsemaks lahti kirjutamiseks. Pikema teksti mugavaks sisestamiseks klikkige kasti paremal ülaservas oleval ikoonil.
Pakkumist tehes on keelatud postitada enda kontaktandmeid (nimi, telefon, aadress jne). Me jälgime ja analüüsime pakkumisi, et vältida pettuseid ja reeglite rikkumisi.
Rikkumise puhul kasutajakonto blokeeritakse.

 

Teisi töid samas valdkonnas

Valdkonnas "Betoonitööd" on 6 aktiivset tööd

Betoonist platsi valamine väljas.

Asukoht: Harjumaa, Luige
Aega jäänud: 9h 50 min
Tehtud pakkumisi: 4

Betoonpõranda valu

Asukoht: Harjumaa, Jõelähtme
Aega jäänud: 2p 9h
Tehtud pakkumisi: 3

Vanemad teated:

Vaata kõiki

Sellel veebilehel kasutatakse küpsiseid. Kasutamist jätkates nõustute küpsiste kasutamisega.

Sulge
 
Minu pakkumine

Reeglid

Pakkumise kirjelduse väli on mõeldud pakkumise detailsemaks lahti kirjutamiseks. Pikema teksti mugavaks sisestamiseks klikkige kasti paremal ülaservas oleval ikoonil.
Pakkumist tehes on keelatud postitada enda kontaktandmeid (nimi, telefon, aadress jne). Me jälgime ja analüüsime pakkumisi, et vältida pettuseid ja reeglite rikkumisi.
Rikkumise puhul kasutajakonto blokeeritakse.