+ Lisa oma töö      

Otsid ehitajat "Üldehitus" valdkonnast?

Parima pakkumise ja teostaja leidmiseks lisa oma töö.

Maja ehitus viljandimaal

ID 48952

1941 vaatamist

Prindi

  • check Pakkumiste tegemine
    kuni 13.10.2019
  • check Võitja valik kuni
    20.10.2019
  • 3 Töö teostamine
    ja hinnang
Hanke lõpp: P, 13. oktoober, 2019
Maakond: Viljandimaa
Linn: Suure-Jaani
Tööde algus: N, 31. oktoober, 2019 (Soovituslik)
Tööde lõpp: T, 31. august, 2021 (Soovituslik)
Ehitusmaterjalid: Töö tegija poolt

Töö sisu

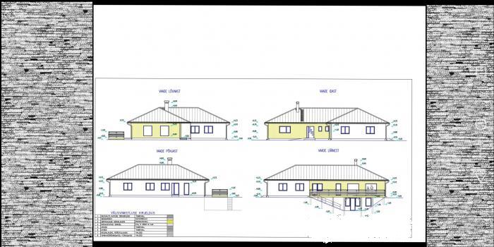
Maja ehitus viljandimaal
Maja tuleb 500 aerocist 1 kordne -280m2
majal on olemas vana osa mis jääb maa alla sinna tulevad saun ja muud san ruuumid
Täpsemad kirjeldused lisan manusega

Pildid, video ja failid

Hanke korraldaja: eraisik ID52496

Pakkumised

Pakkumisi kokku: 2

Ettevõte Summa Käibemaks Lisatud Vestlus
Kasutaja ikoon ID43527
Pakkuja profiil Väike nool paremale
132 000€ Ei sisalda Ei sisalda 12.10.2019 Vestlus (8)
Kasutaja ikoon ID46975
Pakkuja profiil Väike nool paremale
32 400€ Ei sisalda Ei sisalda 13.10.2019 Vestlus (0)

Pakkumise kirjeldus:

Tere.Pakkumises vundamendi hind. Olemas vajalikud MTR registreeringud. Ei saa täpset pakkumist teha enne,kui kohapeal olemasev olukord üle vaadatud.

Küsimused hanke korraldajale

Küsimus: private ID51903   13.09.2019 16:30
Tere, kas katuse hinnapakkumisse lisada ka fermide paigaldus?

Teavita reeglite rikkumisest

Korraldaja vastus: 13.09.2019 18:29

Oleks tore jah kui katust teeks üks firma<br />
Võib koos fermide paigaldusega.

Teavita reeglite rikkumisest

Lisa küsimus

Lisa küsimus

Minu pakkumine

Reeglid

Pakkumise kirjelduse väli on mõeldud pakkumise detailsemaks lahti kirjutamiseks. Pikema teksti mugavaks sisestamiseks klikkige kasti paremal ülaservas oleval ikoonil.
Pakkumist tehes on keelatud postitada enda kontaktandmeid (nimi, telefon, aadress jne). Me jälgime ja analüüsime pakkumisi, et vältida pettuseid ja reeglite rikkumisi.
Rikkumise puhul kasutajakonto blokeeritakse.

 

Teisi töid samas valdkonnas

Valdkonnas "Üldehitus" on 29 aktiivset tööd

Maja värvimine

Asukoht: Harjumaa, Saue
Aega jäänud: 1p 21h
Tehtud pakkumisi: 6

Vanemad teated:

Vaata kõiki

Sellel veebilehel kasutatakse küpsiseid. Kasutamist jätkates nõustute küpsiste kasutamisega.

Sulge
 
Minu pakkumine

Reeglid

Pakkumise kirjelduse väli on mõeldud pakkumise detailsemaks lahti kirjutamiseks. Pikema teksti mugavaks sisestamiseks klikkige kasti paremal ülaservas oleval ikoonil.
Pakkumist tehes on keelatud postitada enda kontaktandmeid (nimi, telefon, aadress jne). Me jälgime ja analüüsime pakkumisi, et vältida pettuseid ja reeglite rikkumisi.
Rikkumise puhul kasutajakonto blokeeritakse.