+ Lisa oma töö      

Otsid ehitajat "Tänavakivide paigaldus" valdkonnast?

Parima pakkumise ja teostaja leidmiseks lisa oma töö.

Tänavakivi paigaldus Nõmmel (110m2)

ID 49069

2050 vaatamist

Prindi

  • check Pakkumiste tegemine
    kuni 05.10.2019
  • check Võitja valik kuni
    12.10.2019
  • 3 Töö teostamine
    ja hinnang
Hanke lõpp: L, 5. oktoober, 2019
Maakond: Harjumaa
Linn: Tallinn
Tööde algus: T, 01. oktoober, 2019 (Soovituslik)
Tööde lõpp: L, 30. november, 2019 (Soovituslik)
Ehitusmaterjalid: Töö tellija poolt

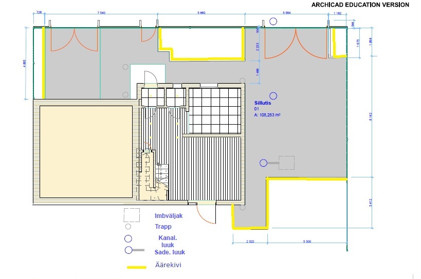
Töö sisu

Paigaldada 110m2 Kartaano tänavakivi (kalasabasse) ja 30m äärekivi. Põhi on 20cm 16/32 killuga ja kiilutud. Äärekivi ja osaliselt ka tänavakivi on juba kohapeal olemas. Vaja tuua 2 koormat peenemat kildu, sõelmed ja ülejäänud kivi. Selle saan organiseerida ise.
Vaja oleks paigaldada ära ülejäänud äärekivi, ajada laiali ja kiiluda peenem 4/16 kild ning paigaldada tänavakivi. Garaazi ette paigaldada 3m Aco plast renni (olemas), lõigata tänavakatte sirgeks ülemineku jaoks tänavakivile (3m tiibärav, 4m tiibvärav, 1m jalgvärav). Platsile jääb 4 sadevee lehtrit ja 4 kaevuluuki. Betooni kulu arvestada töörahasse ja selle võiks töö teostaja ise organiseerida.

Pildid, video ja failid

Hanke korraldaja: eraisik ID48967

Pakkumised

Pakkumisi kokku: 6

Ettevõte Summa Käibemaks Lisatud Vestlus
Kasutaja ikoon ID904
Pakkuja profiil Väike nool paremale
3 000€ Ei sisalda Ei sisalda 22.09.2019 Vestlus (0)

Pakkumise kirjeldus:

Betoon tuleb meie poolt, ülejäänud materjalid tellite ise nagu päringust välja sai lugeda.
Meie poolt on veel bobcat.

Kasutaja ikoon ID38499
Pakkuja profiil Väike nool paremale
2 500€ Ei sisalda Ei sisalda 22.09.2019 Vestlus (0)

Pakkumise kirjeldus:

Tere pakkimine sisaldab äärekivi betooni ja tööraha.

Kasutaja ikoon ID52293
Pakkuja profiil Väike nool paremale
2 750€ Ei sisalda Ei sisalda 22.09.2019 Vestlus (0)
Kasutaja ikoon ID50918
Pakkuja profiil Väike nool paremale
2 600€ Ei sisalda Ei sisalda 22.09.2019 Vestlus (0)
Kasutaja ikoon ID38450
Pakkuja profiil Väike nool paremale
2 500€ Ei sisalda Ei sisalda 30.09.2019 Vestlus (0)
Kasutaja ikoon ID35621
Pakkuja profiil Väike nool paremale
2 300€ Ei sisalda Ei sisalda 05.10.2019 Vestlus (0)

Pakkumise kirjeldus:

Tere! Meie poolt betoon.Garantii

Küsimused hanke korraldajale

Hanke korraldajale ei ole veel küsimusi esitatud.

Lisa küsimus

Lisa küsimus

Minu pakkumine

Reeglid

Pakkumise kirjelduse väli on mõeldud pakkumise detailsemaks lahti kirjutamiseks. Pikema teksti mugavaks sisestamiseks klikkige kasti paremal ülaservas oleval ikoonil.
Pakkumist tehes on keelatud postitada enda kontaktandmeid (nimi, telefon, aadress jne). Me jälgime ja analüüsime pakkumisi, et vältida pettuseid ja reeglite rikkumisi.
Rikkumise puhul kasutajakonto blokeeritakse.

 

Teisi töid samas valdkonnas

Valdkonnas "Tänavakivide paigaldus" on 12 aktiivset tööd

Olemasoleva sillutise uuendamine

Asukoht: Harjumaa, Tallinn
Aega jäänud: 3p 1h
Tehtud pakkumisi: 6

Tänavakivide vahetus

Asukoht: Harjumaa, Tallinn
Aega jäänud: 1p 1h
Tehtud pakkumisi: 4

Vanemad teated:

Vaata kõiki

Sellel veebilehel kasutatakse küpsiseid. Kasutamist jätkates nõustute küpsiste kasutamisega.

Sulge
 
Minu pakkumine

Reeglid

Pakkumise kirjelduse väli on mõeldud pakkumise detailsemaks lahti kirjutamiseks. Pikema teksti mugavaks sisestamiseks klikkige kasti paremal ülaservas oleval ikoonil.
Pakkumist tehes on keelatud postitada enda kontaktandmeid (nimi, telefon, aadress jne). Me jälgime ja analüüsime pakkumisi, et vältida pettuseid ja reeglite rikkumisi.
Rikkumise puhul kasutajakonto blokeeritakse.