+ Lisa oma töö      

Otsid ehitajat "Vundamenditööd" valdkonnast?

Parima pakkumise ja teostaja leidmiseks lisa oma töö.

Plaatvundamendi

ID 49121

1644 vaatamist

Prindi

  • check Pakkumiste tegemine
    kuni 28.09.2019
  • check Võitja valik kuni
    05.10.2019
  • 3 Töö teostamine
    ja hinnang
Hanke lõpp: L, 28. september, 2019
Maakond: Harjumaa
Linn: Tallinn
Tööde algus: E, 30. september, 2019 (Soovituslik)
Tööde lõpp: E, 21. oktoober, 2019 (Soovituslik)
Ehitusmaterjalid: Töö tellija poolt

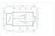
Töö sisu

Raudbetoonplaat 100mm
põrandakütte torudega
Termo põrandaplaat
Ø10AI#200, Ø5AI#150, C20/25
Soojustus, EPS100 200mm

Pildid, video ja failid

Hanke korraldaja: ettevõte ID51029

Pakkumised

Pakkumisi kokku: 4

Ettevõte Summa Käibemaks Lisatud Vestlus
Kasutaja ikoon ID52284
Pakkuja profiil Väike nool paremale
25 993€ Ei sisalda Ei sisalda 25.09.2019 Vestlus (0)

Pakkumise kirjeldus:

Koos materjalidega+töö
kõik materjalid ja tehnika korraldaja poolt
hind siis 11000Eur

Kasutaja ikoon ID38730
Pakkuja profiil Väike nool paremale
6 500€ Ei sisalda Ei sisalda 25.09.2019 Vestlus (0)
Kasutaja ikoon ID52293
Pakkuja profiil Väike nool paremale
15 000€ Ei sisalda Ei sisalda 25.09.2019 Vestlus (0)
Kasutaja ikoon ID8356
Pakkuja profiil Väike nool paremale
15 200€ Ei sisalda Ei sisalda 26.09.2019 Vestlus (0)

Pakkumise kirjeldus:

Tellija olmeruumid ja geodeet

Küsimused hanke korraldajale

Hanke korraldajale ei ole veel küsimusi esitatud.

Lisa küsimus

Lisa küsimus

Minu pakkumine

Reeglid

Pakkumise kirjelduse väli on mõeldud pakkumise detailsemaks lahti kirjutamiseks. Pikema teksti mugavaks sisestamiseks klikkige kasti paremal ülaservas oleval ikoonil.
Pakkumist tehes on keelatud postitada enda kontaktandmeid (nimi, telefon, aadress jne). Me jälgime ja analüüsime pakkumisi, et vältida pettuseid ja reeglite rikkumisi.
Rikkumise puhul kasutajakonto blokeeritakse.

 

Teisi töid samas valdkonnas

Valdkonnas "Vundamenditööd" on 5 aktiivset tööd

Plaatvundamendi valamine

Asukoht: Tartumaa, Tartu
Aega jäänud: 1p 19h
Tehtud pakkumisi: 3

no-img Pilt puudub

Vundamendi projekt

Asukoht: Harjumaa, Tallinn
Aega jäänud: 1p 19h
Tehtud pakkumisi: 2

Vanemad teated:

Vaata kõiki

Sellel veebilehel kasutatakse küpsiseid. Kasutamist jätkates nõustute küpsiste kasutamisega.

Sulge
 
Minu pakkumine

Reeglid

Pakkumise kirjelduse väli on mõeldud pakkumise detailsemaks lahti kirjutamiseks. Pikema teksti mugavaks sisestamiseks klikkige kasti paremal ülaservas oleval ikoonil.
Pakkumist tehes on keelatud postitada enda kontaktandmeid (nimi, telefon, aadress jne). Me jälgime ja analüüsime pakkumisi, et vältida pettuseid ja reeglite rikkumisi.
Rikkumise puhul kasutajakonto blokeeritakse.