+ Lisa oma töö      

Otsid ehitajat "Renoveerimine" valdkonnast?

Parima pakkumise ja teostaja leidmiseks lisa oma töö.

Elamu renoveerimine

ID 49201

1266 vaatamist

Prindi

  • check Pakkumiste tegemine
    kuni 16.10.2019
  • check Võitja valik kuni
    23.10.2019
  • 3 Töö teostamine
    ja hinnang
Hanke lõpp: K, 16. oktoober, 2019
Maakond: Lääne-Virumaa
Linn: Tapa
Tööde algus: E, 14. oktoober, 2019 (Soovituslik)
Tööde lõpp: E, 12. oktoober, 2020 (Soovituslik)
Ehitusmaterjalid: Töö tellija poolt

Töö sisu

Tere
Soovime renoveerida 1962 aastal ehitatud elamu.
Elamus on hetkel kasutusel esimene korrus ning teine korrus on välja ehitamata.
Soovime teha täieliku renoveerimise, sh:
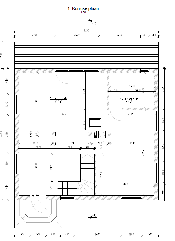
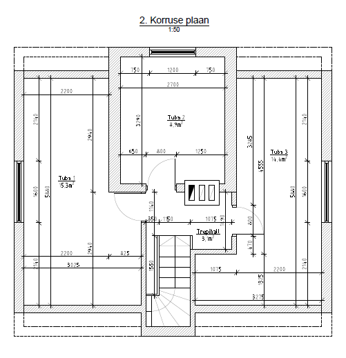
1. Teise korruse välja ehitamine (vinskapi rajamine ühele küljele), põranda loomine, põranda kütte paigaldus, vaheseinte loomine, trepi liikutamine, katuse aluse ja teise korruse soojustamine, kahe akna väljavahetamine (aknad tulevad suuremad kui praegused). Kokku tuleb teisele korrusele 3 tuba ja trepikoridor. Kogu pindala 41,7 m2
2. Katuse vahetamine (uueks materjaliks eterniit), katuse akna lisamine
3. Esimesel korrusel - tubade avatuks ehitamine, seinte eemaldamine ja tugipostide rajamine, vannitoa ja WC ehitus (liigutamine praegusest kohast teise kohta). Akente lisamine, põranda kütte lahenduse loomine. Esimesele korrusele jääb avatud elutuba ja esik. Köök ning vannituba ja WC. Kogu pind 50 m2
4. Välisfasaadi soojustus, vundamendi soojustus, välislaudise vahetus. (Hetkel on majal väliskihina krohv, soov on see asendada puitlaudisega)
5. Välisukse asukoha muudatus

Pakkumisi võib teha ka üksikutele töödele. Objekt asub Lääne-Virumaal, Tapa vallas.
Projekti kohta on koostatud eelprojekt ning see on esitatud valda ehitusteatise taotlemiseks.

Pildid, video ja failid

Hanke korraldaja: eraisik ID52654

Pakkumised

Pakkumisi kokku: 5

Ettevõte Summa Käibemaks Lisatud Vestlus
Kasutaja ikoon ID52293
Pakkuja profiil Väike nool paremale
20€ Ei sisalda Ei sisalda 02.10.2019 Vestlus (4)
Kasutaja ikoon ID50612
Pakkuja profiil Väike nool paremale
25€ Ei sisalda Ei sisalda 10.10.2019 Vestlus (2)

Pakkumise kirjeldus:

Tere tunnihind ühe mehe kohta 20 eur.kuna täpsemalt ei saa nende jooniste järgi hinda teile teha. ka puudub ju elektri osa. meilpädevus olemas. käik on tehtav, lihtsalt kui osutume väljavalituks siis kindlasti teeme ka töki hinde osadele asjadele.

Kasutaja ikoon ID41461
Pakkuja profiil Väike nool paremale
1 500€ Ei sisalda Ei sisalda 14.10.2019 Vestlus (2)

Pakkumise kirjeldus:

Tegemist pakkumisega uue eterniidi paigaldusele 100m2. Katusetööd põhitegevusala. Samuti puitfassaadid. Kogemused samuti sisetöödel. Kvaliteetne töö ja garantii. Hinnad pigem soodsad. Novembris saaks alustada. Käibemaksu ei lisandu.

Kasutaja ikoon ID47459
Pakkuja profiil Väike nool paremale
7 400€ Ei sisalda Ei sisalda 15.10.2019 Vestlus (2)

Pakkumise kirjeldus:

Meiepoolne hinnapakkumine sisaldab teiepoolt mainitud tõid ja umbkautseid mahte
Oleme spetsialiseerunud üldehitusele katused, fassaadid, uksed, aknad. Täpsemate küsimuste korral avage vestlus
Lugupidamisega

Kasutaja ikoon ID46975
Pakkuja profiil Väike nool paremale
57 000€ Ei sisalda Ei sisalda 16.10.2019 Vestlus (2)

Pakkumise kirjeldus:

Tere. Pakkumises kogu renoveerimistöö koos viimistlusega. Tööraha eraldi 24000 kogu tööle

Küsimused hanke korraldajale

Küsimus: private ID41461   11.10.2019 07:29
Teeksin pakkumise katusele kuid vajan katuse ruutmeetrit. Kas on vintskappe?

Teavita reeglite rikkumisest

Korraldaja vastus: 13.10.2019 19:08

Tere<br />
<br />
Katuse pindala on umbes 100 m2 (kõrgus 4,4m, pikkus majal 8,2, laius 7,5, katusnurga all 45)<br />
Hetkel ei ole vintskappi aga soovime ehitada selle ühele poole. Võimalusel võite ka sellele pakkumise esitada.<br />
<br />
Tänud<br />
Kristel

Teavita reeglite rikkumisest

Küsimus: private ID41461   14.10.2019 07:45
Täpsema pakkumise saan teha kui olen objekti näinud.<br />
<br />
Lugupidamisega

Teavita reeglite rikkumisest

Korraldaja vastus: 14.10.2019 16:56

Aitäh pakkumise eest!

Teavita reeglite rikkumisest

Lisa küsimus

Lisa küsimus

Minu pakkumine

Reeglid

Pakkumise kirjelduse väli on mõeldud pakkumise detailsemaks lahti kirjutamiseks. Pikema teksti mugavaks sisestamiseks klikkige kasti paremal ülaservas oleval ikoonil.
Pakkumist tehes on keelatud postitada enda kontaktandmeid (nimi, telefon, aadress jne). Me jälgime ja analüüsime pakkumisi, et vältida pettuseid ja reeglite rikkumisi.
Rikkumise puhul kasutajakonto blokeeritakse.

 

Teisi töid samas valdkonnas

Valdkonnas "Renoveerimine" on 5 aktiivset tööd

Pinkide puitdetailide vahetus

Asukoht: Harjumaa, Tallinn
Aega jäänud: 10p 12h
Tehtud pakkumisi: 15

no-img Pilt puudub

Renoveerimisprojekti koostamine

Asukoht: Läänemaa, Matsalu
Aega jäänud: 18p 12h
Tehtud pakkumisi: 3

Vanemad teated:

Vaata kõiki

Sellel veebilehel kasutatakse küpsiseid. Kasutamist jätkates nõustute küpsiste kasutamisega.

Sulge
 
Minu pakkumine

Reeglid

Pakkumise kirjelduse väli on mõeldud pakkumise detailsemaks lahti kirjutamiseks. Pikema teksti mugavaks sisestamiseks klikkige kasti paremal ülaservas oleval ikoonil.
Pakkumist tehes on keelatud postitada enda kontaktandmeid (nimi, telefon, aadress jne). Me jälgime ja analüüsime pakkumisi, et vältida pettuseid ja reeglite rikkumisi.
Rikkumise puhul kasutajakonto blokeeritakse.