+ Lisa oma töö      

Otsid ehitajat "Korterite remont" valdkonnast?

Parima pakkumise ja teostaja leidmiseks lisa oma töö.

Kolme toalise korteri korhvimine + pahteldamine (krundini)

ID 49500

1275 vaatamist

Prindi

  • check Pakkumiste tegemine
    kuni 12.11.2019
  • check Võitja valik kuni
    19.11.2019
  • 3 Töö teostamine
    ja hinnang
Hanke lõpp: T, 12. november, 2019
Maakond: Harjumaa
Muu asula: Riisipere
Tööde algus: E, 18. november, 2019 (Soovituslik)
Tööde lõpp: P, 15. detsember, 2019 (Soovituslik)
Ehitusmaterjalid: Töö tegija poolt

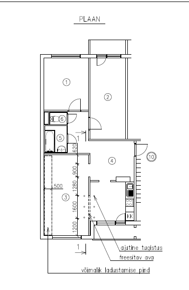
Töö sisu

Kolme toalise korteri korhvimine ja pahtledamine kuni kurndini, ruutmeetreid on u 190 (ainult seina pind) sh. ka vannituba.

Sooviks hinda nii materjaliga kui materjalita, võib ka m2 hinna.

Lisaks kui võib pakkuda ka vannitoa vaheseina lammutuse hinda koos prügi utiliseerimisega, nind teemantsaagimise läbi köögi ja elutoa vahelise kandva seina eemalduse hinda.

Pildid, video ja failid

Hanke korraldaja: eraisik ID46812

Pakkumised

Pakkumisi kokku: 5

Ettevõte Summa Käibemaks Lisatud Vestlus
Kasutaja ikoon ID45266
Pakkuja profiil Väike nool paremale
5 320€ Ei sisalda Ei sisalda 07.11.2019 Vestlus (0)

Pakkumise kirjeldus:

Tere

Pakkumine materjaliga 5320 euri+ km (16 euri/m2 pahtel-krunt, 12 euri/m2 krohv) sisaldab seinte krohvimist, pahteldust ja krunti. Pakkumine on tehtud seinad SILEDAKS mitte sirgeks. Juhul, kui soovite seinu loodi tuleb hind uuesti üle vaadata.
Töö teostab pika kogemustega maaler.
Töö lepinguline, garantii 2 aastat. Kvaliteet garanteeritud.

L ... Rohkem

Kasutaja ikoon ID44954
Pakkuja profiil Väike nool paremale
4 200€ Ei sisalda Ei sisalda 07.11.2019 Vestlus (0)

Pakkumise kirjeldus:

Tere!

Pakkumine tehtud arvestusega, et saab kipsi kasutada.
42 mm karkass võimalikult vana seina lähedale, vill, kips 1x. Saab kindlapeale tulemuse. Säästab mõnevõrra raha hilisemate maalritööde arvelt, kuna tapeedi alla minevatele pindadele lauspahtlit vaja pole, rangelt soovituslik on seda kasutada kui pind läheb krohvi alla.
Krohvimise puhu ... Rohkem

Kasutaja ikoon ID52591
Pakkuja profiil Väike nool paremale
4 500€ Ei sisalda Ei sisalda 09.11.2019 Vestlus (0)

Pakkumise kirjeldus:

Hind sisaldab krohvimis/pahteldust/kruntimist: materjal ja töö kuni krundini

Kasutaja ikoon ID52763
Pakkuja profiil Väike nool paremale
14€ Ei sisalda Ei sisalda 11.11.2019 Vestlus (0)

Pakkumise kirjeldus:

Tere, esimene pakkumine ilma materjalideta, materjalidega on m2 hind 16€.
Alustada saaks koheselt.

Kasutaja ikoon ID45063
Pakkuja profiil Väike nool paremale
4 000€ Ei sisalda Ei sisalda 11.11.2019 Vestlus (0)

Pakkumise kirjeldus:

Tere!

Meiepoolne hinnapakkumine sisaldab korteri krohvimist ja pahteldamist kuni krundini, koos kõikide tööks vajaminevate materjalidega. Alustada saame teie poolt etteantud ajal. Tekkinud prahi utiliseerime. Töödele garantii.

Lugupidamisega,

Priit

Küsimused hanke korraldajale

Küsimus: private ID44954   05.11.2019 21:44
Tere!<br />
<br />
Kui tegu vanema paneelika tüüpi korteriga mida ta ilmselt on siis praktika seni näidanud, et seinad ikka väga kõverad, lainetavad ja loodist väljas. See tähendaks krohvimisel majakaid ning jumal teab mitu krohvi kihti ja kui paksu. Töö hind oleks vägagi krõbe kui korraliku tulemust soov saada. Sellest ka küsimus kas kaaluksite seinte kipsi alla panekut 42 mm karkass+ kips. Töö mõttes kindlasti oluliselt kiirem ning materjali arvelt ka ilmselt säästate. Ruumi küll mõnevõrra kaob aga visuaalselt saab kindlapeale korraliku tulemuse.<br />
<br />
Lp.<br />
<br />
SM

Teavita reeglite rikkumisest

Korraldaja vastus: 06.11.2019 06:48

Tere,<br />
<br />
On tõesti.<br />
<br />
Tegelikult oli mul seekord kindel soov kipsi mitte panna. Võite umbkaudse hinna kirjutada mulle kipsiga, eeldusel et värvitavaid pidasid on ainult köök ja esikud, ülejäänud tapeet (siis vist ei ole lauspahteldust vaja?). Lagi tuleb hetke seisuga puitkarkass+sisevoodrilaud - võite pakkuda paigaldus hinda kui soovite. Vannituba jääb sellegi poolest krohvida, seal ei pea oluliseks ka, et need seinad täiesti sirged oleks ja seal ilmselt siiski lagi ka. <br />
<br />
Tervitades,<br />
G

Teavita reeglite rikkumisest

Lisa küsimus

Lisa küsimus

Minu pakkumine

Reeglid

Pakkumise kirjelduse väli on mõeldud pakkumise detailsemaks lahti kirjutamiseks. Pikema teksti mugavaks sisestamiseks klikkige kasti paremal ülaservas oleval ikoonil.
Pakkumist tehes on keelatud postitada enda kontaktandmeid (nimi, telefon, aadress jne). Me jälgime ja analüüsime pakkumisi, et vältida pettuseid ja reeglite rikkumisi.
Rikkumise puhul kasutajakonto blokeeritakse.

 

Teisi töid samas valdkonnas

Valdkonnas "Korterite remont" on 3 aktiivset tööd

Renoveerimine: wc + vannituba

Asukoht: Tartumaa, Tartu
Aega jäänud: 6p 18h
Tehtud pakkumisi: 3

Korteri kapitaalremont ja ümberehitus (täielik siseviimistlus + elektritööd)

Asukoht: Järvamaa
Aega jäänud: 27p 18h
Tehtud pakkumisi: 0

Vanemad teated:

Vaata kõiki

Sellel veebilehel kasutatakse küpsiseid. Kasutamist jätkates nõustute küpsiste kasutamisega.

Sulge
 
Minu pakkumine

Reeglid

Pakkumise kirjelduse väli on mõeldud pakkumise detailsemaks lahti kirjutamiseks. Pikema teksti mugavaks sisestamiseks klikkige kasti paremal ülaservas oleval ikoonil.
Pakkumist tehes on keelatud postitada enda kontaktandmeid (nimi, telefon, aadress jne). Me jälgime ja analüüsime pakkumisi, et vältida pettuseid ja reeglite rikkumisi.
Rikkumise puhul kasutajakonto blokeeritakse.