+ Lisa oma töö      

Otsid ehitajat "Korterite remont" valdkonnast?

Parima pakkumise ja teostaja leidmiseks lisa oma töö.

Hange on lõppenud!

Võitjaks osutus kasutaja ID 53064

Korraldaja hinnang tehtud tööle

4.7
17.04.2020
Töökiirus: 12345
Kvaliteet: 12345
Hind: 12345

Töö korralik ja suhtlus viisakas. Mahuti hanke ajaraamidesse ning enamus sai ka kenasti täidetud nii nagu vaimusilmas ette kujutasime. Mahuti ka kenasti eelarvesse. - Janno R.

4-toalise korteri remont

ID 49697

2928 vaatamist

Prindi

  • check Pakkumiste tegemine
    kuni 17.12.2019
  • check Võitja valik kuni
    24.12.2019
  • 3 Töö teostamine
    ja hinnang
Hanke lõpp: T, 17. detsember, 2019
Maakond: Harjumaa
Linn: Tallinn
Tööde algus: E, 03. veebruar, 2020 (Soovituslik)
Tööde lõpp: R, 20. märts, 2020
Ehitusmaterjalid: Töö tegija poolt

Töö sisu

4 tuba
~89m2
8. korrus (lift olemas)

Terves majas on aknad ja radiaatorid vahetatud.

Vaja:

Asendada välisuks - vana eemaldada ja uus paigaldada

Vahetada välja kõik korteri elektrijuhtmed + lisada arvutivõrgu kaabeldus

Vahetada välja põrand
- vahetamine tähendab ilmselt vana põranda täielikku üles võtmist ja täiesti uue ehitamist
- terve korter peab saama ühte tasapinda
- piisab, kui põrand on ehitatud piirini, kus saab paigaldada kattematerjali (laminaat/parkett...), aga ka kattematerjali paigaldus võib vajalik olla. selgub muude tegevuste käigus

Seinad, laed
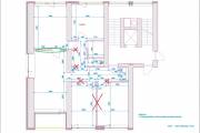
- Lõhkuda joonisel punasega märgistatud vaheseinad (st. 4-toalisest saab 3-toaline)
- kinni ehitada rohelisega märgistatud seinas ukseava, või kogu sein kipsiga katta (jääb sirgem tulemus)
- eemaldada vana tapeet (kui ajaliselt jõuan, siis püüan ise võimalikult palju eemaldada)
- eemaldada ripplagi (ca 11m2)
- laed pahteldada ja värvida
- seinad pahteldada ja värvida

Köök remontida - seinad, lagi viimistleda, vana köögimööbel utiliseerida

Duširuum/WC remontida - k.a. vanad plaadid eemaldada
- Dušinurk hetkel plastikust ja pinnapealne - soov saada n.ö trapp põrandale. Seinad plaatida ja korralik lagi teha (hetkel ripplagi). Põrandasoojendust ei ole plaanitud.

Siseuste vahetus (5tk)

Utiliseerida kogu lammutustööde käigus tekkinud ehituspraht

Tööde teostamise aeg planeerida alates 03.02.2020 ja valmis peab olema hiljemalt 20.03.2020.

Pildid, video ja failid

Hanke korraldaja: eraisik ID53113

Pakkumised

Pakkumisi kokku: 18

Ettevõte Summa Käibemaks Lisatud Vestlus
Kasutaja ikoon ID46975
Pakkuja profiil Väike nool paremale
13 300€ Ei sisalda Ei sisalda 03.12.2019 Vestlus (0)

Pakkumise kirjeldus:

Tere. Pakkumises tööraha kogu tööle. Lammutus jäätmete utiliserimine lisaks 470 euri. Muud materjalid ca 7500. Välisuks, el. kaablid, kilp. pistikupesad, lülitid,põrandatele tasanduseks põrandakips, summumatt, laminaat, siseuksed, pahtel, krunt, värvid, kipsplaadid seina osaliselt, märjad ruumid plaat, ripplaed. Vajalikud liistud, Vaadake ka teht ... Rohkem

Kasutaja ikoon ID53094
Pakkuja profiil Väike nool paremale
14€ Ei sisalda Ei sisalda 03.12.2019 Vestlus (0)

Pakkumise kirjeldus:

Tere, saame alustada niipea kui võimalik. Meil on hea töötajad ja spetsialistid.

Tehtud töödele garantii 7 a. Ettemaksu ei soovi,küll aga kokkuleppelist etappi viisilist arveldamist. Enne võimaliku võitjaks kuulutamist sooviks alavestluses asjad läbi rääkida.

EgiGrupp OÜ
Tel: +372 5625 5042

Kasutaja ikoon ID49185
Pakkuja profiil Väike nool paremale
9 000€ Sisaldab KM Sisaldab KM 03.12.2019 Vestlus (0)
Kasutaja ikoon ID46738
Pakkuja profiil Väike nool paremale
22 500€ Ei sisalda Ei sisalda 04.12.2019 Vestlus (0)

Pakkumise kirjeldus:

Hinnas tööraha 13000, 9500 materjalid ja mehhanismid.

Kasutaja ikoon ID44435
Pakkuja profiil Väike nool paremale
19 500€ Ei sisalda Ei sisalda 05.12.2019 Vestlus (0)

Pakkumise kirjeldus:

Tere
Hind sisaldab tööraha ja materjale. Materjalid arvestatud keskmise hinna järgi.
Tagame korraliku ja kvaliteetse töö.
Garantii ja leping.
Ettemaks materjalide ostmiseks.

Kasutaja ikoon ID49718
Pakkuja profiil Väike nool paremale
16 800€ Ei sisalda Ei sisalda 05.12.2019 Vestlus (0)
Kasutaja ikoon ID52293
Pakkuja profiil Väike nool paremale
10 000€ Ei sisalda Ei sisalda 05.12.2019 Vestlus (0)
Kasutaja ikoon ID51699
Pakkuja profiil Väike nool paremale
18 400€ Ei sisalda Ei sisalda 06.12.2019 Vestlus (0)

Pakkumise kirjeldus:

Tere,
Hinnapakkumine vastavalt hanke sisule
Tööraha 8900€, Materjalid ca 9500€
ettemaks pärast töövõtulepingu sõlmimist(kokkuleppel) materjalide tellimiseks
GARANTII.TÖID TEOSTAVAD PIKA KOGEMUSEGA SPETSIALISTID,
Peatsele koostööle lootes

Kasutaja ikoon ID39222
Pakkuja profiil Väike nool paremale
19 300€ Ei sisalda Ei sisalda 09.12.2019 Vestlus (0)
Kasutaja ikoon ID44598
Pakkuja profiil Väike nool paremale
13 500€ Ei sisalda Ei sisalda 09.12.2019 Vestlus (1)

Pakkumise kirjeldus:

Tere

Tööga saaksime varasemalt alustada näitkes jaanuari keskel.
Töödele 2aastane garantii.

Kasutaja ikoon ID39203
Pakkuja profiil Väike nool paremale
16 000€ Ei sisalda Ei sisalda 11.12.2019 Vestlus (0)

Pakkumise kirjeldus:

Tere

Pakkumine kõik komplektis juurde tasuda ei tule. Tasumisel saame kokkuleppele
Antud hind sisaldab ka dokumentatsioone (elektrijoonis+allkirjad, samuti ehitus dokumentatsioon) Seda võib tulevikus väga vaja minna, kui ühistule või võõrandamisel küsitakse.!
Meie töödega on võimalik tutvuda ka reaalajas, praegu kesklinnas valmivad 6 korterit ... Rohkem

Kasutaja ikoon ID53046
Pakkuja profiil Väike nool paremale
14 317€ Sisaldab KM Sisaldab KM 11.12.2019 Vestlus (0)
Kasutaja ikoon ID52675
Pakkuja profiil Väike nool paremale
15 000€ Ei sisalda Ei sisalda 14.12.2019 Vestlus (0)

Pakkumise kirjeldus:

Töö kiire ja korralik, pikaajaline kogemus, oskuslikud töömehed.
Hind hankes väljatoodud töödele, materjalid, töökulu.
Ettemaks materjalidele, hind ilma km ja km ei lisandu, arvega tsumise võimalus.
Töö ja maksmise saame jagada etappideks.
Kõik asjaajamine käib korrektselt ja ametlikult, pakkumine, aktid ja lepingud.

Kasutaja ikoon ID53064
Pakkuja profiil Väike nool paremale
13 100€ Ei sisalda Ei sisalda 16.12.2019 Vestlus (0)

Pakkumise kirjeldus:

Tere,

Hinnapakkumine sisaldab tööraha ning materjali, hind võib kõikuda sõltuvalt materjali valikust mida kindlasti kooskõlastame.Hindade sisse on arvestatud nii utiil kui ka transport. Omame vastavaid teadmisi kõikides sisetöödes. Teostame nii elektritöid, maalri, san teh. kui ka võime pakkuda järelvalvet teostatud töödele mida kindlasti ka ... Rohkem

Kasutaja ikoon ID46355
Pakkuja profiil Väike nool paremale
16 180€ Ei sisalda Ei sisalda 17.12.2019 Vestlus (0)

Pakkumise kirjeldus:

Tere ! Pakkumine hankes märgitud töödele . Meie poolt materjalid ja kvaliteetne töö .Saate vaadata ka pilte meie profiilis .

Kasutaja ikoon ID47629
Pakkuja profiil Väike nool paremale
15 280€ Ei sisalda Ei sisalda 17.12.2019 Vestlus (0)

Pakkumise kirjeldus:

Tere!

Hind sisaldab kõiki hankes kirjeldatud töid.
Ettemaks on materjali katteks, ning tööde tasumine
on kolmes etapis(teeme kirjaliku lepingu).
Pikaajaline kogemus võtmed kätte lahendusega.
Töid hakkavad teostama oma ala inimesed(eraldi plaatija ja maaler).

Peatsele koostööle lootes,
K.K

Kasutaja ikoon ID8356
Pakkuja profiil Väike nool paremale
17 590€ Ei sisalda Ei sisalda 17.12.2019 Vestlus (0)
Kasutaja ikoon ID46047
Pakkuja profiil Väike nool paremale
12 000€ Ei sisalda Ei sisalda 17.12.2019 Vestlus (0)

Pakkumise kirjeldus:

Tere!
Teostame ehitus- ja remonttöid.
Anname töödele garantii.
Soovime materjalide raha ettemaksuna.

Lp.

Küsimused hanke korraldajale

Küsimus: private ID21089   03.12.2019 15:44
Tere, millest on lammutatavad seina osad?<br />
Kas võib tegemist olla kandvate osadega või mitte?<br />
Torutööd?

Teavita reeglite rikkumisest

Korraldaja vastus: 03.12.2019 16:09

Kiviseinad. Korteriühistu sõnul on kandvad osad vaid joonisel olevad paksud vertikaalsed seinad - seega lammutatavad ei ole. <br />
Torutööde vajalikkust ei oska ma paraku hinnata.

Teavita reeglite rikkumisest

Küsimus: private ID46857   04.12.2019 09:37
Tere!<br />
Kas soovite kapital remondi täis lahendust kuni lõpp viimistlus Eni. Ehk siis selle momendi I kus edasi on raske hinnata täpset maksumust(värvi toonid, tapeedid, parkett ja valgustid) töö saab arvestada aga material maksumust raskem kuna selleks oleks vaja täpselt teada soove!<br />
Ja kas on ka võimalik varem töödega algust teha!? <br />
<br />
Lp<br />
Artur

Teavita reeglite rikkumisest

Korraldaja vastus: 04.12.2019 12:06

Tere,<br />
Ajaliselt paraku palju mänguruumi ei ole. Kindlasti enne 03.veebruari alustada ei ole võimalik. Mure ongi selles, et kuna aja-aken on üpris jäik, siis on oluline saada vähemalt kogu n.ö. ettevalmistus tehtud. Viimases hädas oskan ise värvi seinale kanda, ja parketi mahapanemisega saan samuti hakkama. Samas eeldan, et 6-nädalat peaks olema piisav aeg, et jõuaks tehtud ka kogu lõpp-viimistluse, seega hinnapakkumises arvestada palun kõigi materjalidega. Keerulisi erilahendusi ma ei palu ja materjalide puhul palun arvestada keskmiste hindadega.<br />
PS. Mitte ühtegi seina ei lähe tapeet. Ainult värv.

Teavita reeglite rikkumisest

Lisa küsimus

Lisa küsimus

Minu pakkumine

Reeglid

Pakkumise kirjelduse väli on mõeldud pakkumise detailsemaks lahti kirjutamiseks. Pikema teksti mugavaks sisestamiseks klikkige kasti paremal ülaservas oleval ikoonil.
Pakkumist tehes on keelatud postitada enda kontaktandmeid (nimi, telefon, aadress jne). Me jälgime ja analüüsime pakkumisi, et vältida pettuseid ja reeglite rikkumisi.
Rikkumise puhul kasutajakonto blokeeritakse.

 

Teisi töid samas valdkonnas

Valdkonnas "Korterite remont" on 4 aktiivset tööd

Ukselingi vahetus

Asukoht: Harjumaa, Tallinn
Aega jäänud: 1p 20h
Tehtud pakkumisi: 1

Vanemad teated:

Vaata kõiki

Sellel veebilehel kasutatakse küpsiseid. Kasutamist jätkates nõustute küpsiste kasutamisega.

Sulge
 
Minu pakkumine

Reeglid

Pakkumise kirjelduse väli on mõeldud pakkumise detailsemaks lahti kirjutamiseks. Pikema teksti mugavaks sisestamiseks klikkige kasti paremal ülaservas oleval ikoonil.
Pakkumist tehes on keelatud postitada enda kontaktandmeid (nimi, telefon, aadress jne). Me jälgime ja analüüsime pakkumisi, et vältida pettuseid ja reeglite rikkumisi.
Rikkumise puhul kasutajakonto blokeeritakse.