+ Lisa oma töö      

Otsid ehitajat "Vannitubade remont" valdkonnast?

Parima pakkumise ja teostaja leidmiseks lisa oma töö.

Pesuala ja koridori renoveerimine

ID 49729

1583 vaatamist

Prindi

  • check Pakkumiste tegemine
    kuni 08.01.2020
  • check Võitja valik kuni
    18.01.2020
  • 3 Töö teostamine
    ja hinnang
Hanke lõpp: K, 8. jaanuar, 2020
Maakond: Tartumaa
Linn: Tartu
Tööde algus: E, 13. jaanuar, 2020 (Soovituslik)
Tööde lõpp: T, 31. märts, 2020 (Soovituslik)
Ehitusmaterjalid: Töö tegija poolt

Töö sisu

~90ndal aastal ehitatud eramaja lisaosas ootab tööd järgmine.
Küsiks hinnapakkumist oma 30.5 ruutmeetri pesuala ja koridori põhjalikuks remondiks.
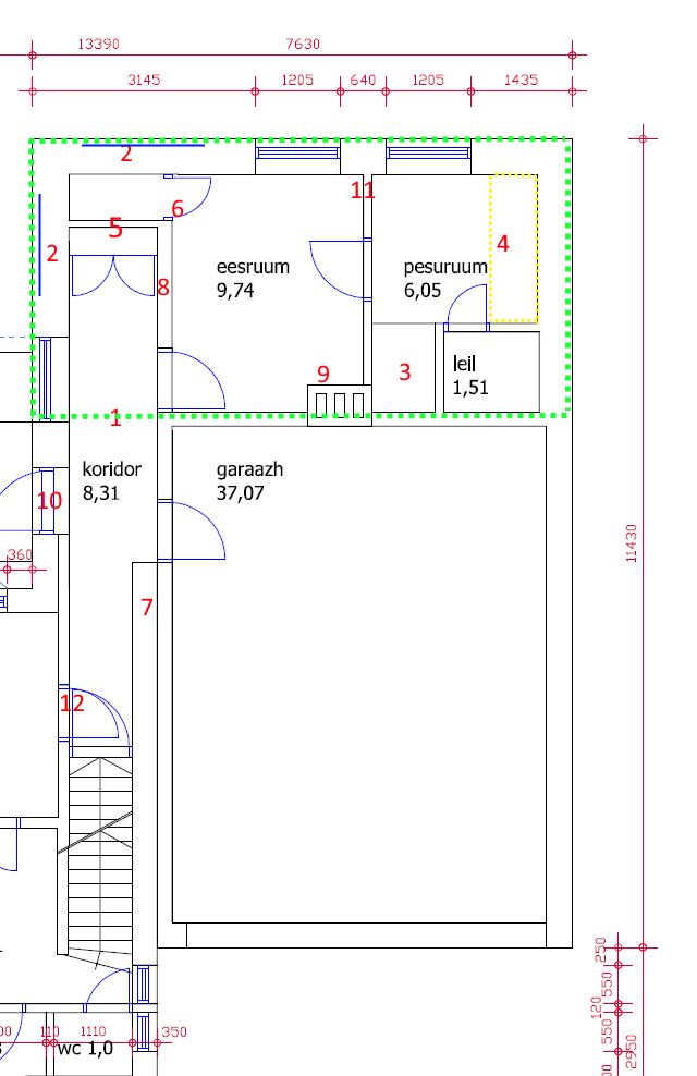
Pildil on taustal hetkeseis, punased numbrid on lisatud, selgitus allpool:
1- koridor - hetkel on seinad teise kujuga, aga number 1 kandis tuleb uus uks (oleks liiga lai, vajab ka miskit lisa-abi-seinakest mõlemal pool. Muud seinad pole tulevases vannitoas (roheline piirjoonega kast) kandvad v.a. koridori ja eesruumi vaheline. Seega võiks paigaldada 20x20cm puust tala (siis läheb muu maja stiiliga kokku) ja seal keskel, number 8 kandis, võiks olla ka post samast materjalist. Tala, post peaks olema viimistletud ehk lihvitud ja äärtest dekoratiivselt ääred süvistatud.
Kõik praegused seinad rohelise ruudu sees peavad kaduma, põrand on ühtne ja ühel kõrgusel koridoris ja pesualal.
Joonisel on välja toomata praegune lae kõrgus põrandast - 215cm.
Koridori ja pesuala põranda alla on soov saada vesi-põrandakütet, selleks tuleb paigaldada uus kollektor ja tuua keldrist uus liin veetoruga (kelder jääb joonusel koridorist allapoole, liini pikkusel võib oma 10 lisameetriga arvestada. Lisada ka korralik veepump eraldi hinnareale (sest liin tuleb päris pikk).
Põrandat lammutama ei pea (v.a. pildil nähtav kõrgendatud elektri-põrandakütteala (~8 ruutmeetrit), ainult pealmine viimistluskiht tuleb eemaldada, valada minimaalne tasanduskiht (Mira x-plan) ja kasutada hõbedase pealisega soontega veeküttetoru-paigaldusplaati (25mm). Siis peaks muu majaga ühtemoodi saama. Põrandakattematerjal võiks olla koridori osas naturaalne tammeparkett ("klikiga") ja pesualal puiduimitatsiooniga plaat.
Seinad on hetkel liiga paksud (kihid: kips , kämpingulaud, roovitis , papp, tuhaplokk, õhuvahe ja silikaattellis), sealt tuleb välja rookida "jamad" kihid ja kasutada mõnda tänapäevast soojustust.
Lae arvelt saab ka veidi juurde ruumi, hetkel kihid: kipsplaat - kämpingulaud - roovitis (5cm) vastu õõnes betoonpaneeli. Kuni paneelini peaks saama eemaldada ja siis soojustada ka tänapäevaste vahenditega.
2 - kaks uut akent (mõõtmetega umbes 1.2 laius ja 2m kõrgus (tellin ise)). Nad võiksid kohtuda võimalikult nurgas, a la näiteks 20 cm nurgast.
3- dush. selle vasak sein peaks olema klaasist (meeter laius, maast enamvähem laeni), uks joonisel "üleval", tellin ise.
4 - kollasega on joonistatud lisanduv kapp-sein. Peegel-lükand-uksed maast laeni (vähemalt keskel, ei pea terve sein olema). Sügavus välisseinani on ~60cm (et pesumasin ära mahuks), riiulid vaadata kataloogist või ise ehitada.
5- on uue vanni koht, tellin ise
6- hetkel on ruumides radiaatorid aga need kõik kaovad ja jääb alles üks dekoratiivne radikas. Selle ja vanni jaoks on vaja siis torudega arvestada. Torud tulevad hetkel paremast äärest, garaazist. Vanni jaoks on ka vaja nii äravoolu kui pealevoolu siis garaazist.
7- siin on vana saepurusoojustusega (~60ndate) vana seina veel alles, selle peaks eemaldama ja ehitama riidekapi (ka maast laeni lükanduksed) - pikkus peaks tulema ~1.5m. Kõrval on juba olemasolev senakapp, sellel on vaja uut viimistlust.
8 - kandev sein, eelpool jutt
9 - korsten (pole kasutuses), pealmine viimisluskiht eemaldada ja eksponeerida erivärvilisi kive - võiks töödelda ka lakiga.
10 - praeguse eemaldamine ja uue välisukse paigaldus (hangin ukse ise)
11- asukoht uuele valamule (hangin ise)
Elektritööd: Veekindlaid pistikud on vaja igasse seina 2x2 ja koridori 2, "paksema" elektrikaabriga. Elektritöö tuleb hinna sisse panna (eraldi kui võimalik), kilp asub garaazi all vasakus nurgas.
12 - koridori ja tänapäevase osa vahel on vaja siseuks eemaldada ja vähemalt 10cm plaanil "ülespool" suurendada ukseava (ilma ukseta).
Garaazi siseuks on ka vaja vahetada, ukse hangin ise.
Valgustuse osas ka arvestada juhtmetega vanni juude, valamu juurde, saunakandi, kappi. (kõikidesse seinadesse ja lakke kahte kohta).

Pildid, video ja failid

Hanke korraldaja: eraisik ID53148

Pakkumised

Pakkumisi kokku: 4

Ettevõte Summa Käibemaks Lisatud Vestlus
Kasutaja ikoon ID52675
Pakkuja profiil Väike nool paremale
5 000€ Ei sisalda Ei sisalda 27.12.2019 Vestlus (0)

Pakkumise kirjeldus:

Töö kiire ja korralik, pikaajaline kogemus. Hind hankes väljatoodud töödele, materjalid, seadmed, tööraha. Hind ilma km ja km ei lisandu, arvega tasumise võimalus.
Töödele anname garantii. Ettemaks materjalidele ja seadmetele.

Kasutaja ikoon ID4030
Pakkuja profiil Väike nool paremale
15 000€ Ei sisalda Ei sisalda 27.12.2019 Vestlus (0)

Pakkumise kirjeldus:

Tere!

Üldiselt on suht keeruline hind mõne pildi ja kirjelduse järgi teha, aga kirjeldus sellest eest suht põhjalik, et esialge pildi saab ette. Tegime arvutused ja saime sellise hinna. Lisasime ka kõikumise kuna tegelikkuses ikka pole nii võimalik 100% hinda pakkuda. Olemas on meil ka lahti kirjutatud pakkumine, aga kahjuks pole sellised kasutajad, ... Rohkem

Kasutaja ikoon ID50921
Pakkuja profiil Väike nool paremale
12 600€ Ei sisalda Ei sisalda 29.12.2019 Vestlus (0)
Kasutaja ikoon ID50979
Pakkuja profiil Väike nool paremale
27 000€ Ikoon kell Ei sisalda Ei sisalda 08.01.2020 Vestlus (0)

Pakkumise kirjeldus:

Käibemaks ei lisandu,ettemaksu ei soovi,tasumine 2osas aktide alusel,töid teostavad pika kogemusega profid,anname garantii5aastat,teeme lepingu,utiliseerime ehitusjäätmed,jätame kasutusvalmis pinna.Parimatega Margus

Küsimused hanke korraldajale

Hanke korraldajale ei ole veel küsimusi esitatud.

Lisa küsimus

Lisa küsimus

Minu pakkumine

Reeglid

Pakkumise kirjelduse väli on mõeldud pakkumise detailsemaks lahti kirjutamiseks. Pikema teksti mugavaks sisestamiseks klikkige kasti paremal ülaservas oleval ikoonil.
Pakkumist tehes on keelatud postitada enda kontaktandmeid (nimi, telefon, aadress jne). Me jälgime ja analüüsime pakkumisi, et vältida pettuseid ja reeglite rikkumisi.
Rikkumise puhul kasutajakonto blokeeritakse.

 

Teisi töid samas valdkonnas

Valdkonnas "Vannitubade remont" on 3 aktiivset tööd

Vannitoa ja Wc kapitaalremont

Asukoht: Harjumaa, Tallinn
Aega jäänud: 1p 10h
Tehtud pakkumisi: 4

Vannitoa ehitamine

Asukoht: Harjumaa, Tallinn
Aega jäänud: 15p 10h
Tehtud pakkumisi: 4

Vanemad teated:

Vaata kõiki

Sellel veebilehel kasutatakse küpsiseid. Kasutamist jätkates nõustute küpsiste kasutamisega.

Sulge
 
Minu pakkumine

Reeglid

Pakkumise kirjelduse väli on mõeldud pakkumise detailsemaks lahti kirjutamiseks. Pikema teksti mugavaks sisestamiseks klikkige kasti paremal ülaservas oleval ikoonil.
Pakkumist tehes on keelatud postitada enda kontaktandmeid (nimi, telefon, aadress jne). Me jälgime ja analüüsime pakkumisi, et vältida pettuseid ja reeglite rikkumisi.
Rikkumise puhul kasutajakonto blokeeritakse.