+ Lisa oma töö      

Otsid ehitajat "Ehitusprojektid" valdkonnast?

Parima pakkumise ja teostaja leidmiseks lisa oma töö.

Korteri ümberehituse projekt

ID 49805

2357 vaatamist

Prindi

  • check Pakkumiste tegemine
    kuni 02.01.2020
  • check Võitja valik kuni
    09.01.2020
  • 3 Töö teostamine
    ja hinnang
Hanke lõpp: N, 2. jaanuar, 2020
Maakond: Harjumaa
Muu asula: Kesklinn
Tööde algus: E, 06. jaanuar, 2020 (Soovituslik)
Tööde lõpp: R, 31. jaanuar, 2020 (Soovituslik)
Ehitusmaterjalid: Töö tegija poolt

Töö sisu

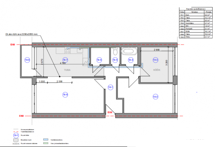
Seoses köögi asukoha muutmisega korteris, on vaja ümberehituse ehitusprojekti (arh-eh koos eriosadega: vesi, kanalisatsioon, ventilatsioon). Muudatustega seoses ühtegi seina maha ei võeta ega juurde ei lisata.

Lisaks soovime projektiga seadustada juba varasemast olemaoleva tubadevahelise ava, mis tehtud juba hoone ehitamisel, kuid jäänud miskipärast orginaalplaanile märkimata. Korruseplaanilt näha, et teistes korterites sama lahendus ning need õigesti plaanile märgitud.

Korteri eskiisplaan on digitaliseeritud ja saadaval .pln ja .dwg formaadis (võib vajada vähesel määral kohendamist). Olemas ka Linnaarhiivist saadud orginaalplaan. Ühistu nõusolek olemas ja fikseeritud ühistu üldkoosoleku protokolliga.

Pakkumishind sisaldab:
1) Seletuskiri
2) Asendiplaan
3) Eriosade projektid
4) Ehitusteatise esitamine EHR-i kaudu Tallinna Linnavalitsusele ja vajadusel muudatuste tegemine vastavalt märkustele

Pildid, video ja failid

Hanke korraldaja: eraisik ID53193

Pakkumised

Pakkumisi kokku: 1

Ettevõte Summa Käibemaks Lisatud Vestlus
Kasutaja ikoon ID42152
Pakkuja profiil Väike nool paremale
350€ Ei sisalda Ei sisalda 20.12.2019 Vestlus (0)

Pakkumise kirjeldus:

Ehitusprojekt eelprojekti staadiumis (arh-eh osa koos eriosadega)
Pakkumishind sisaldab
Seletuskiri
Asendiplaan
Korruse plaan
Korteri plaan

Kooskõlastused ehitusteatise registreerimiseks KOV
Ehitusteatise esitamine KOV, juhul kui projektlahendus näeb ette ehitusteatise kohustuslikke ehitustöid.

NB! Mittekandvate seinte ja köögi ümberehitus ... Rohkem

Küsimused hanke korraldajale

Hanke korraldajale ei ole veel küsimusi esitatud.

Lisa küsimus

Lisa küsimus

Minu pakkumine

Reeglid

Pakkumise kirjelduse väli on mõeldud pakkumise detailsemaks lahti kirjutamiseks. Pikema teksti mugavaks sisestamiseks klikkige kasti paremal ülaservas oleval ikoonil.
Pakkumist tehes on keelatud postitada enda kontaktandmeid (nimi, telefon, aadress jne). Me jälgime ja analüüsime pakkumisi, et vältida pettuseid ja reeglite rikkumisi.
Rikkumise puhul kasutajakonto blokeeritakse.

 

Teisi töid samas valdkonnas

Valdkonnas "Ehitusprojektid" on 5 aktiivset tööd

Korteri elektri projekt

Asukoht: Harjumaa, Tallinn
Aega jäänud: 1p 21h
Tehtud pakkumisi: 2

no-img Pilt puudub

Kortermaja kõigi ruumide mõõdistamine ja DWG faili koostamine

Asukoht: Harjumaa, Tallinn
Aega jäänud: 10p 21h
Tehtud pakkumisi: 1

Vanemad teated:

Vaata kõiki

Sellel veebilehel kasutatakse küpsiseid. Kasutamist jätkates nõustute küpsiste kasutamisega.

Sulge
 
Minu pakkumine

Reeglid

Pakkumise kirjelduse väli on mõeldud pakkumise detailsemaks lahti kirjutamiseks. Pikema teksti mugavaks sisestamiseks klikkige kasti paremal ülaservas oleval ikoonil.
Pakkumist tehes on keelatud postitada enda kontaktandmeid (nimi, telefon, aadress jne). Me jälgime ja analüüsime pakkumisi, et vältida pettuseid ja reeglite rikkumisi.
Rikkumise puhul kasutajakonto blokeeritakse.