+ Lisa oma töö      

Otsid ehitajat "Projekteerimine" valdkonnast?

Parima pakkumise ja teostaja leidmiseks lisa oma töö.

Lintvundamendi rajamine elementmajale

ID 49954

1407 vaatamist

Prindi

  • check Pakkumiste tegemine
    kuni 13.02.2020
  • check Võitja valik kuni
    18.02.2020
  • 3 Töö teostamine
    ja hinnang
Hanke lõpp: N, 13. veebruar, 2020
Maakond: Ida-Virumaa
Muu asula: Kohtla-Nõmme
Tööde algus: K, 01. juuli, 2020 (Soovituslik)
Tööde lõpp: L, 15. august, 2020 (Soovituslik)
Ehitusmaterjalid: Töö tellija poolt

Töö sisu

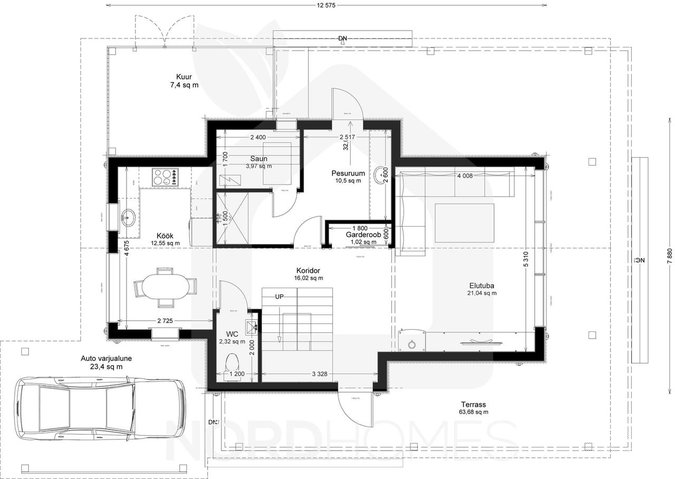
Lintvundamendi projekt FIBO3 kergplokkidest elementmajale, Joonised lisatud. Krundi asukoht Ida-Virumaal.

Pildid, video ja failid

Hanke korraldaja: eraisik ID52810

Pakkumised

Pakkumisi kokku: 3

Ettevõte Summa Käibemaks Lisatud Vestlus
Kasutaja ikoon ID53310
Pakkuja profiil Väike nool paremale
15 000€ Ei sisalda Ei sisalda 16.01.2020 Vestlus (2)

Pakkumise kirjeldus:

Meie töö on kiire ja kvaliteetne. Omame suuri kogemusi ehituses.

Kasutaja ikoon ID52675
Pakkuja profiil Väike nool paremale
12 600€ Ei sisalda Ei sisalda 01.02.2020 Vestlus (0)

Pakkumise kirjeldus:

Töö kiire ja korralik, pikaajaline kogemus, hind hankes väljatoodud töödele, materjalid, seadmed, tehnika ja tööraha. Ettemaks materjalidele, seadmetele ja tehnikale. Hind ilma km ja km ei lisandu, arvega tasumise võimalus. Töödele anname garantii, töö teostavad kogenud ja kogemustega ehitajad, kõik korrektselt ja ametlikult. Kõik vajalikud sea ... Rohkem

Kasutaja ikoon ID36797
Pakkuja profiil Väike nool paremale
7 500€ Ei sisalda Ei sisalda 04.02.2020 Vestlus (5)

Küsimused hanke korraldajale

Küsimus: private ID46975   13.01.2020 15:21
Tere. Kas soovite ainult tööraha? Kas vundamenti tulevad ka põrandasoojustus torud?

Teavita reeglite rikkumisest

Korraldaja vastus: 14.01.2020 11:08

Tere,<br />
Jah, ainut tööraha. Materjalide ost võiks minu äranägemistmööda käia käsikäes teostajaga (vajalikud kogused ja tarvikud), ent oleks siiski tellija poolt. Ent kahjuks on hange vist sõnastatud natuke liiga üldsõnaliselt, sest esialgu sooviksin pakkumist ainult vundamendi projektile.<br />
<br />
Parimate soovidega,<br />
<br />

Teavita reeglite rikkumisest

Lisa küsimus

Lisa küsimus

Minu pakkumine

Reeglid

Pakkumise kirjelduse väli on mõeldud pakkumise detailsemaks lahti kirjutamiseks. Pikema teksti mugavaks sisestamiseks klikkige kasti paremal ülaservas oleval ikoonil.
Pakkumist tehes on keelatud postitada enda kontaktandmeid (nimi, telefon, aadress jne). Me jälgime ja analüüsime pakkumisi, et vältida pettuseid ja reeglite rikkumisi.
Rikkumise puhul kasutajakonto blokeeritakse.

 

Teisi töid samas valdkonnas

Valdkonnas "Projekteerimine" on 7 aktiivset tööd

no-img Pilt puudub

1-kordse 120 m2 elumaja põhiprojekt

Asukoht: Harjumaa, Metsanurme
Aega jäänud: 8p 5h
Tehtud pakkumisi: 4

no-img Pilt puudub

Saunamaja eelprojekt ehitusteatiseks

Asukoht: Lääne-Virumaa
Aega jäänud: 1p 5h
Tehtud pakkumisi: 3

Vanemad teated:

Vaata kõiki

Sellel veebilehel kasutatakse küpsiseid. Kasutamist jätkates nõustute küpsiste kasutamisega.

Sulge
 
Minu pakkumine

Reeglid

Pakkumise kirjelduse väli on mõeldud pakkumise detailsemaks lahti kirjutamiseks. Pikema teksti mugavaks sisestamiseks klikkige kasti paremal ülaservas oleval ikoonil.
Pakkumist tehes on keelatud postitada enda kontaktandmeid (nimi, telefon, aadress jne). Me jälgime ja analüüsime pakkumisi, et vältida pettuseid ja reeglite rikkumisi.
Rikkumise puhul kasutajakonto blokeeritakse.