+ Lisa oma töö      

Otsid ehitajat "Palkmajad" valdkonnast?

Parima pakkumise ja teostaja leidmiseks lisa oma töö.

Freespruss sauna püstitamine

ID 50233

1752 vaatamist

Prindi

  • check Pakkumiste tegemine
    kuni 22.02.2020
  • check Võitja valik kuni
    29.02.2020
  • 3 Töö teostamine
    ja hinnang
Hanke lõpp: L, 22. veebruar, 2020
Maakond: Jõgevamaa
Linn: Põltsamaa
Tööde algus: L, 22. veebruar, 2020 (Soovituslik)
Tööde lõpp: T, 31. märts, 2020 (Soovituslik)
Ehitusmaterjalid: Töö tellija poolt

Töö sisu

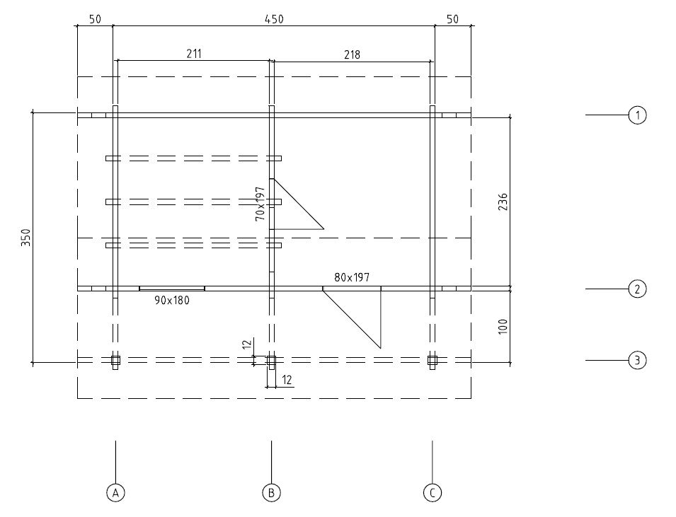
70mm freespruss sauna püstitamine. Mõõdud 4,5 x 3,5 m.
Killustikust aluspind ette valmistatud. Vaja paigaldada fibo plokid ning nende peale püstitada jooniste alusel freesprussidest saunamaja. Paigaldada 2 ust ja 1 aken.
Katusekattematerjaliks bituumensindel.

Pildid, video ja failid

Hanke korraldaja: eraisik ID17250

Pakkumised

Pakkumisi kokku: 12

Ettevõte Summa Käibemaks Lisatud Vestlus
Kasutaja ikoon ID52744
Pakkuja profiil Väike nool paremale
2 400€ Ei sisalda Ei sisalda 09.02.2020 Vestlus (0)
Kasutaja ikoon ID52293
Pakkuja profiil Väike nool paremale
2 200€ Ei sisalda Ei sisalda 09.02.2020 Vestlus (0)
Kasutaja ikoon ID53660
Pakkuja profiil Väike nool paremale
1 700€ Sisaldab KM Sisaldab KM 09.02.2020 Vestlus (0)
Kasutaja ikoon ID44614
Pakkuja profiil Väike nool paremale
1 500€ Ei sisalda Ei sisalda 10.02.2020 Vestlus (0)

Pakkumise kirjeldus:

Soovitud sauna kokkupanek!
Lugupidamisega!

Kasutaja ikoon ID41089
Pakkuja profiil Väike nool paremale
1 560€ Ei sisalda Ei sisalda 10.02.2020 Vestlus (0)

Pakkumise kirjeldus:

hanke väidu korral saame alustada kohe

Kasutaja ikoon ID50086
Pakkuja profiil Väike nool paremale
1 100€ Ei sisalda Ei sisalda 10.02.2020 Vestlus (0)

Pakkumise kirjeldus:

Tere Pakkumine töödele ilma materjalita.

Kasutaja ikoon ID52744
Pakkuja profiil Väike nool paremale
1 400€ Ei sisalda Ei sisalda 10.02.2020 Vestlus (0)
Kasutaja ikoon ID27299
Pakkuja profiil Väike nool paremale
1 580€ Ei sisalda Ei sisalda 16.02.2020 Vestlus (0)
Kasutaja ikoon ID11946
Pakkuja profiil Väike nool paremale
1 100€ Sisaldab KM Sisaldab KM 16.02.2020 Vestlus (0)
Kasutaja ikoon ID50387
Pakkuja profiil Väike nool paremale
1 400€ Ei sisalda Ei sisalda 18.02.2020 Vestlus (0)

Pakkumise kirjeldus:

Hinnas soovitud sauna püstitus spetsialistide poolt kellel on eelnevalt freespruss majadega korralik kogemus. Püstitusega saame alustada KOHESELT! Kui tellijal ei ole veel katusematerjal tellitud siis saan vajadusel aidata leida sobiva lahenduse (kui antud material asub tallinna ümbruses siis selle kohaletoimetamise eest lisatasu ei võta).

Tasumine pe ... Rohkem

Kasutaja ikoon ID53747
Pakkuja profiil Väike nool paremale
1 000€ Sisaldab KM Sisaldab KM 19.02.2020 Vestlus (0)
Kasutaja ikoon ID20160
Pakkuja profiil Väike nool paremale
1 200€ Ei sisalda Ei sisalda 22.02.2020 Vestlus (0)

Pakkumise kirjeldus:

Omame kogemust selliste toodete paigaldamisel ja valmistamisel.
Lisana võime pakkuda ka saunale sisu ( lavad , seljatoed, peatoed, kerisekaitse, ventilatsiooni siibrid, lambikatte, jne, ning ka etteruumi pingi ) ning nende kohese paigalduse.
Lisaks on veel ettepanekuid kuidas antud toode teile sobilikumaks muuta.
Lugupidamisega

Küsimused hanke korraldajale

Küsimus: private ID50387   18.02.2020 21:26
Tere!<br />
<br />
Kas fiboplokid ja katusekattematerjal (aluskate, bituumensindel, harjasindel, ääreplekid ,räästaplekid ja soovituslik alustamislint) on teie enda poolt või hinnapakkumise tegemisel arvestada kõiki vajalike kinnitusvahendeid ja materjale? Kui materjalid on minu poolt siis paluksin soovitud katusekatte tootjat ja tooni on oluline hinnapakkumise tegemisel, kuna olen palju seda katet isiklikult paigaldanud oskan ka erinevaid soovitusi anda millist eelistada. <br />
<br />
Lugupidamisega<br />
<br />
Taivo

Teavita reeglite rikkumisest

Korraldaja vastus: 18.02.2020 23:28

Kogu materjal on olemas.

Teavita reeglite rikkumisest

Lisa küsimus

Lisa küsimus

Minu pakkumine

Reeglid

Pakkumise kirjelduse väli on mõeldud pakkumise detailsemaks lahti kirjutamiseks. Pikema teksti mugavaks sisestamiseks klikkige kasti paremal ülaservas oleval ikoonil.
Pakkumist tehes on keelatud postitada enda kontaktandmeid (nimi, telefon, aadress jne). Me jälgime ja analüüsime pakkumisi, et vältida pettuseid ja reeglite rikkumisi.
Rikkumise puhul kasutajakonto blokeeritakse.

 

Vanemad teated:

Vaata kõiki

Sellel veebilehel kasutatakse küpsiseid. Kasutamist jätkates nõustute küpsiste kasutamisega.

Sulge
 
Minu pakkumine

Reeglid

Pakkumise kirjelduse väli on mõeldud pakkumise detailsemaks lahti kirjutamiseks. Pikema teksti mugavaks sisestamiseks klikkige kasti paremal ülaservas oleval ikoonil.
Pakkumist tehes on keelatud postitada enda kontaktandmeid (nimi, telefon, aadress jne). Me jälgime ja analüüsime pakkumisi, et vältida pettuseid ja reeglite rikkumisi.
Rikkumise puhul kasutajakonto blokeeritakse.