+ Lisa oma töö      

Otsid ehitajat "Ehitusprojektid" valdkonnast?

Parima pakkumise ja teostaja leidmiseks lisa oma töö.

Tööprojekt ja muudatused

ID 50529

1586 vaatamist

Prindi

  • check Pakkumiste tegemine
    kuni 12.03.2020
  • check Võitja valik kuni
    19.03.2020
  • 3 Töö teostamine
    ja hinnang
Hanke lõpp: N, 12. märts, 2020
Maakond: Harjumaa
Linn: Tallinn
Tööde algus: R, 06. märts, 2020 (Soovituslik)
Tööde lõpp: T, 31. märts, 2020 (Soovituslik)
Ehitusmaterjalid: Töö tellija poolt

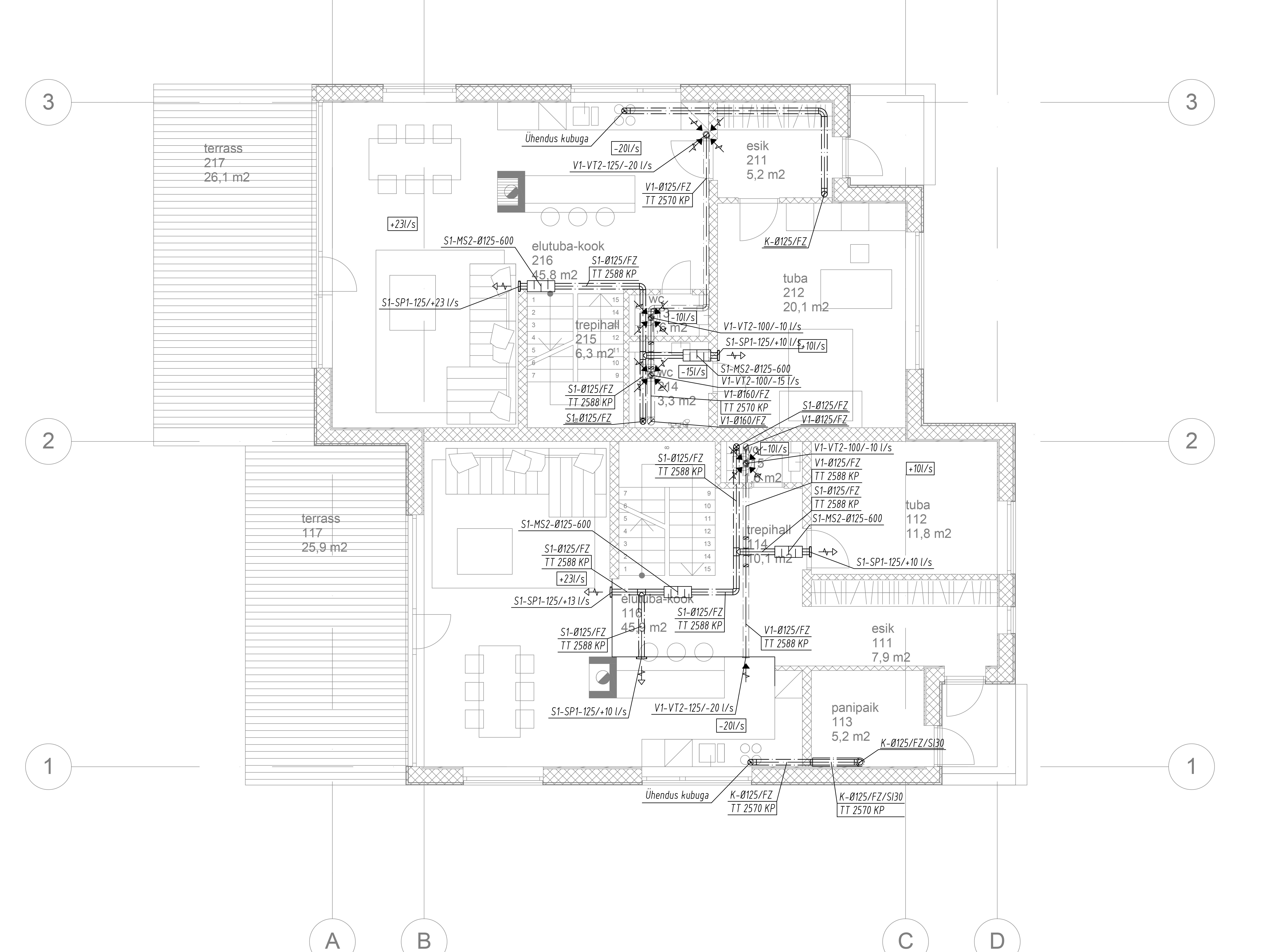
Töö sisu

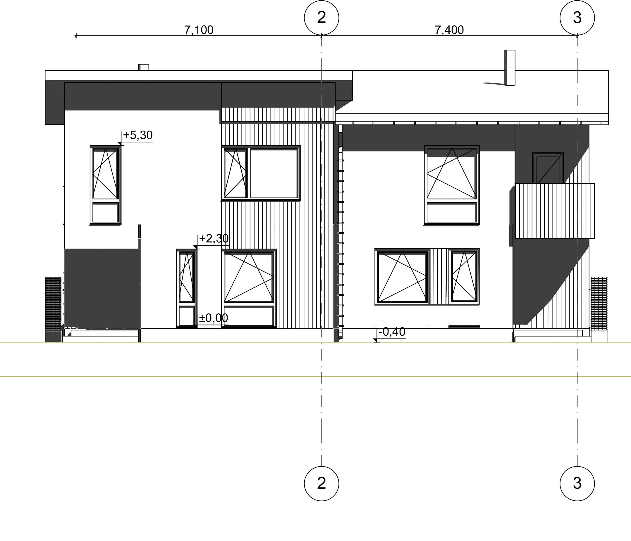
Olemas põhiprojekt, mille põhjal on valmis ehitatud eelmine sügis maja vundament, valatud esimese korruse põrand ja veetud põhitrassid (elekter, kanalisatsioon, vesi).
Tahan hinnapakkumist jooniste viimisest tööjooniste tasemele, et nende järgi oleks võimalik reaalselt ehitada (plaanid, põhisõlmed jne).
Lisaks tuleb viia projekti sisse järgmised muudatused:

+ Sarikalahendus asendada puitfermiga, sest nii hoiaks kokku nii ajas kui materjalis ning ventilatsiooni oleks kergem paigaldada.
+ kriitiliselt hinnata märgitud materjalid (soojustus, aurutõke jne.).
+ Esimese korruse parem poolse majaboksi koridori otstarbe muutmine tehnoruumiks ja sellest lähtuvalt tänavapoolse alumise akna suuruse muutmine kui ka ülemise akna asukoha nihutamine vajadusel.
+ Alumise korruse planeeritavate akende 6,2 m silluse toestamine vaheposti abil ehk suure akna asendamine kahega.
+ Projektis on planeeritud 200 puitkarkassist maja vahesein asendada fibo 200 plokkseinaga (krohvitud mõlemalt küljelt) + 2x50 puitkarkass villaga.
+ Esimese korruse vahelae kõrguse viimine kooskõlla eluruumi nõuetega(2,5 m) Üks võimalikest lahendustest on asendada osaliselt talad 300 mm puitmetalltaladega(kanal ja vent. tõttu on planeeritud kõrgus 2,3 m).
Projekti tuleb viia sisse vundamendi ja trassi tööde käigus tehtud muudatused.
+Ventilatsiooni ja kütteprojektis tuleb tuua agregaadid tuleb tuua esimesed korruse tehnoruumi.

Pildid, video ja failid

Hanke korraldaja: eraisik ID3561

Pakkumised

Pakkumisi kokku: 2

Ettevõte Summa Käibemaks Lisatud Vestlus
Kasutaja ikoon ID53873
Pakkuja profiil Väike nool paremale
9 567€ Sisaldab KM Sisaldab KM 05.03.2020 Vestlus (0)

Pakkumise kirjeldus:

Detailne hinnapakkumine selgub läbirääkimisel mille käigus selgub tegelik töömaht ja töö tegemiseks ajakulu

Kasutaja ikoon ID48870
Pakkuja profiil Väike nool paremale
6 825€ Ei sisalda Ei sisalda 11.03.2020 Vestlus (0)

Pakkumise kirjeldus:

Pakkumine on koostatud konstruktsioonide põhiprojektile vastavalt "EVS-932-2017 ehitusprojekt" hanke arhitektuursest osast lähtuvalt. Minu portfoolios on ka ICF plokkidest (ka nn termoplokk toode) eramu paljude teiste objektide kõrval Eestis.

Põhiprojektis esitatakse ehitise arhitektuurilahenduste ja insener-tehniliste lahenduste ning kvaliteedi kirje ... Rohkem

Küsimused hanke korraldajale

Hanke korraldajale ei ole veel küsimusi esitatud.

Lisa küsimus

Lisa küsimus

Minu pakkumine

Reeglid

Pakkumise kirjelduse väli on mõeldud pakkumise detailsemaks lahti kirjutamiseks. Pikema teksti mugavaks sisestamiseks klikkige kasti paremal ülaservas oleval ikoonil.
Pakkumist tehes on keelatud postitada enda kontaktandmeid (nimi, telefon, aadress jne). Me jälgime ja analüüsime pakkumisi, et vältida pettuseid ja reeglite rikkumisi.
Rikkumise puhul kasutajakonto blokeeritakse.

 

Teisi töid samas valdkonnas

Valdkonnas "Ehitusprojektid" on 5 aktiivset tööd

Korteri elektri projekt

Asukoht: Harjumaa, Tallinn
Aega jäänud: 1p 18h
Tehtud pakkumisi: 2

no-img Pilt puudub

Kortermaja kõigi ruumide mõõdistamine ja DWG faili koostamine

Asukoht: Harjumaa, Tallinn
Aega jäänud: 10p 18h
Tehtud pakkumisi: 1

Vanemad teated:

Vaata kõiki

Sellel veebilehel kasutatakse küpsiseid. Kasutamist jätkates nõustute küpsiste kasutamisega.

Sulge
 
Minu pakkumine

Reeglid

Pakkumise kirjelduse väli on mõeldud pakkumise detailsemaks lahti kirjutamiseks. Pikema teksti mugavaks sisestamiseks klikkige kasti paremal ülaservas oleval ikoonil.
Pakkumist tehes on keelatud postitada enda kontaktandmeid (nimi, telefon, aadress jne). Me jälgime ja analüüsime pakkumisi, et vältida pettuseid ja reeglite rikkumisi.
Rikkumise puhul kasutajakonto blokeeritakse.