+ Lisa oma töö      

Otsid ehitajat "Vundamenditööd" valdkonnast?

Parima pakkumise ja teostaja leidmiseks lisa oma töö.

Juurdeehituse vundament

ID 50612

1068 vaatamist

Prindi

  • check Pakkumiste tegemine
    kuni 11.04.2020
  • check Võitja valik kuni
    18.04.2020
  • 3 Töö teostamine
    ja hinnang
Hanke lõpp: L, 11. aprill, 2020
Maakond: Tartumaa
Tööde algus: N, 30. aprill, 2020 (Soovituslik)
Tööde lõpp: P, 31. mai, 2020 (Soovituslik)
Ehitusmaterjalid: Töö tegija poolt

Töö sisu

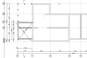
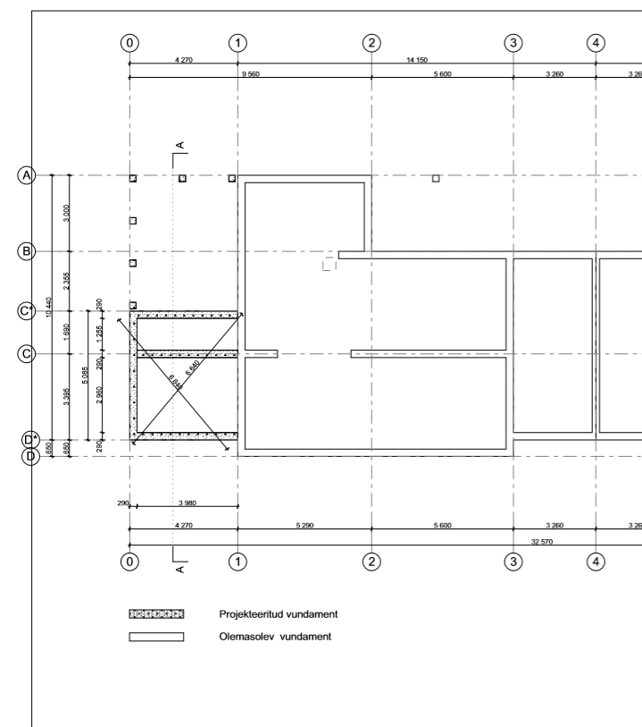
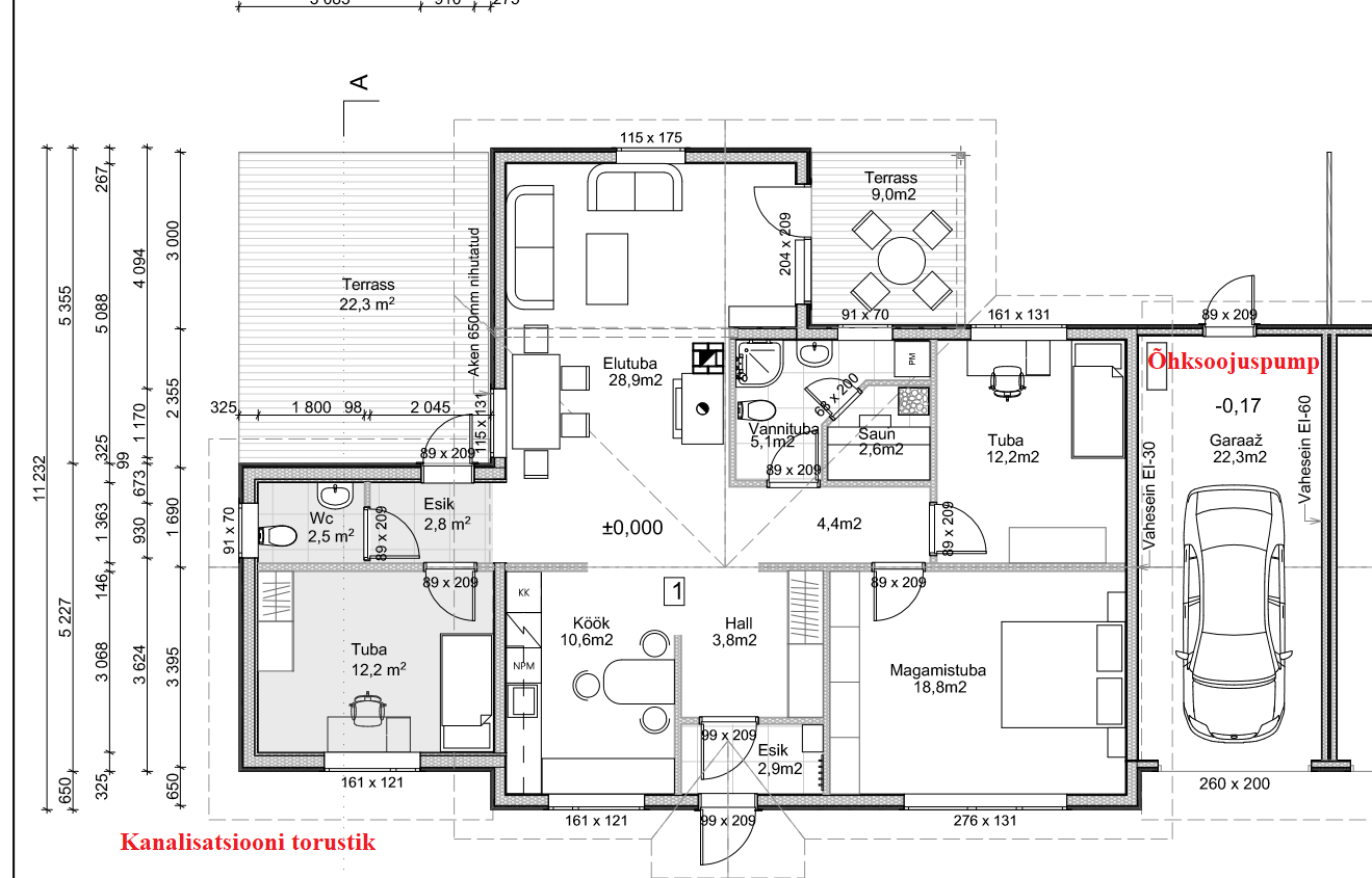
Soovin hinnapakkumist juurdeehituse vundamendile (plaatvundament). Juurdeehituse suuruseks on 18ruutu, milles tuba, koridor ja wc. Soovin pakkumist, mis hõlmab kõik vajalikud tööd (vesi, kanalisatsioon, põrandaküte).

Pildid, video ja failid

Hanke korraldaja: eraisik ID45049

Pakkumised

Pakkumisi kokku: 3

Ettevõte Summa Käibemaks Lisatud Vestlus
Kasutaja ikoon ID52074
Pakkuja profiil Väike nool paremale
5 680€ KM lisandub KM lisandub 08.04.2020 Vestlus (0)
Kasutaja ikoon ID43565
Pakkuja profiil Väike nool paremale
5 240€ Sisaldab KM Sisaldab KM 09.04.2020 Vestlus (0)
Kasutaja ikoon ID50618
Pakkuja profiil Väike nool paremale
5 390€ KM lisandub KM lisandub 10.04.2020 Vestlus (0)

Pakkumise kirjeldus:

Hind sisaldab:
- aluspinna tegemist ja pinnasematerjale( hind ei sisalda liigpinnase äravedu)
- l blokke
- eps 80 plaadid 2 kihti
- vee ja kanalisatsiooni torustiku
- aluskile
- armatuur
- põrandakütte torustik(hind ei sisalda kollektorit ega kappi)
- betooni koos kopterdamisega

Töödele garantii 5 aastat.

Küsimused hanke korraldajale

Küsimus: private ID32909   14.03.2020 19:55
Tere! Kus asuvad vajalikud ühendused küttele, kanalisatsioonile ja veele? Projektis on kaks eraldiasuvat vundamenti ja postid. Kas mõlemad vundamendid ja postid tuleb ehitada? Kas on projektis ka lõige vundamendist?<br />
<br />
Parimat!

Teavita reeglite rikkumisest

Korraldaja vastus: 14.03.2020 23:10

Tere!<br />
Ehitada tuleb ainult üks vundament (muutsin pildi). Tegemist paarismajaga ja seetõttu oli ka naabrite osa jäänud pildile. Veetorustik tuleb ühendada olemasolevast osast(köögist). Kanalisatsioon tuleb ühendada maja ees olevasse torustikku. Küte võimalusi peab veel arutama, kuid plaanis on see ühendada olemasoleva küttesüsteemiga, kust ja kuidas on selleks võimalused, peame veel arutama. Panen hankesse juurde veel paar joonist.

Teavita reeglite rikkumisest

Lisa küsimus

Lisa küsimus

Minu pakkumine

Reeglid

Pakkumise kirjelduse väli on mõeldud pakkumise detailsemaks lahti kirjutamiseks. Pikema teksti mugavaks sisestamiseks klikkige kasti paremal ülaservas oleval ikoonil.
Pakkumist tehes on keelatud postitada enda kontaktandmeid (nimi, telefon, aadress jne). Me jälgime ja analüüsime pakkumisi, et vältida pettuseid ja reeglite rikkumisi.
Rikkumise puhul kasutajakonto blokeeritakse.

 

Vanemad teated:

Vaata kõiki

Sellel veebilehel kasutatakse küpsiseid. Kasutamist jätkates nõustute küpsiste kasutamisega.

Sulge
 
Minu pakkumine

Reeglid

Pakkumise kirjelduse väli on mõeldud pakkumise detailsemaks lahti kirjutamiseks. Pikema teksti mugavaks sisestamiseks klikkige kasti paremal ülaservas oleval ikoonil.
Pakkumist tehes on keelatud postitada enda kontaktandmeid (nimi, telefon, aadress jne). Me jälgime ja analüüsime pakkumisi, et vältida pettuseid ja reeglite rikkumisi.
Rikkumise puhul kasutajakonto blokeeritakse.