+ Lisa oma töö      

Otsid ehitajat "Aia ehitus" valdkonnast?

Parima pakkumise ja teostaja leidmiseks lisa oma töö.

Piirdeaia ehitus

ID 50627

797 vaatamist

Prindi

  • check Pakkumiste tegemine
    kuni 11.04.2020
  • check Võitja valik kuni
    18.04.2020
  • 3 Töö teostamine
    ja hinnang
Hanke lõpp: L, 11. aprill, 2020
Maakond: Harjumaa
Muu asula: Kadaka küla Rae vald
Tööde algus: E, 06. aprill, 2020 (Soovituslik)
Tööde lõpp: N, 30. aprill, 2020 (Soovituslik)
Ehitusmaterjalid: Töö tellija poolt

Töö sisu

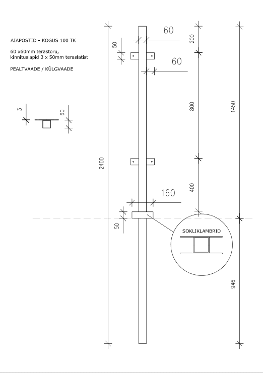
Piirdeaia ehitus kliendi 60x60mm teraspostidest. Kokku vaja paigaldada 120 posti ja soklikivid postide vahele. Lisaks viimistletud lattide ja lippide paigaldustöö. Lisatud piirdeaia plaan ja aiaposti joonis. Sokliks postide vahele 500x180x60mm betoonist äärekivid.

Pildid, video ja failid

Hanke korraldaja: ettevõte ID53964

Pakkumised

Pakkumisi kokku: 4

Ettevõte Summa Käibemaks Lisatud Vestlus
Kasutaja ikoon ID53270
Pakkuja profiil Väike nool paremale
8 350€ Ei sisalda Ei sisalda 17.03.2020 Vestlus (0)
Kasutaja ikoon ID6934
Pakkuja profiil Väike nool paremale
35€ Sisaldab KM Sisaldab KM 21.03.2020 Vestlus (0)

Pakkumise kirjeldus:

jm hinne!

Kasutaja ikoon ID44110
Pakkuja profiil Väike nool paremale
7 987€ Ei sisalda Ei sisalda 22.03.2020 Vestlus (0)
Kasutaja ikoon ID24845
Pakkuja profiil Väike nool paremale
6 543€ Ikoon kell KM lisandub KM lisandub 10.04.2020 Vestlus (0)

Pakkumise kirjeldus:

Pakkumine vastavalt kirjeldusele.
Saame aidata ka materjalidega kui teil veel olemas neid pole :)

Samuti valmistame ka väravaid

Küsimused hanke korraldajale

Küsimus: private ID44110   18.03.2020 23:49
Milline on kinnistu pinnase profiil. Kas on suuri tõususid languseid ?<br />

Teavita reeglite rikkumisest

Korraldaja vastus: 19.03.2020 00:11

Suuri ega järske muutusi pinnasel ei esine.

Teavita reeglite rikkumisest

Lisa küsimus

Lisa küsimus

Minu pakkumine

Reeglid

Pakkumise kirjelduse väli on mõeldud pakkumise detailsemaks lahti kirjutamiseks. Pikema teksti mugavaks sisestamiseks klikkige kasti paremal ülaservas oleval ikoonil.
Pakkumist tehes on keelatud postitada enda kontaktandmeid (nimi, telefon, aadress jne). Me jälgime ja analüüsime pakkumisi, et vältida pettuseid ja reeglite rikkumisi.
Rikkumise puhul kasutajakonto blokeeritakse.

 

Teisi töid samas valdkonnas

Valdkonnas "Aia ehitus" on 18 aktiivset tööd

Tänavakivi puhastus

Asukoht: Harjumaa, Tallinn
Aega jäänud: 11h 14 min
Tehtud pakkumisi: 8

no-img Pilt puudub

Piirdeaia postide paigaldus koos paneelidega

Asukoht: Tartumaa
Aega jäänud: 1p 11h
Tehtud pakkumisi: 5

Vanemad teated:

Vaata kõiki

Sellel veebilehel kasutatakse küpsiseid. Kasutamist jätkates nõustute küpsiste kasutamisega.

Sulge
 
Minu pakkumine

Reeglid

Pakkumise kirjelduse väli on mõeldud pakkumise detailsemaks lahti kirjutamiseks. Pikema teksti mugavaks sisestamiseks klikkige kasti paremal ülaservas oleval ikoonil.
Pakkumist tehes on keelatud postitada enda kontaktandmeid (nimi, telefon, aadress jne). Me jälgime ja analüüsime pakkumisi, et vältida pettuseid ja reeglite rikkumisi.
Rikkumise puhul kasutajakonto blokeeritakse.