+ Lisa oma töö      

Otsid ehitajat "Elektritööd" valdkonnast?

Parima pakkumise ja teostaja leidmiseks lisa oma töö.

Elektri juhtmestiku vahetus korteris

ID 50838

2466 vaatamist

Prindi

  • check Pakkumiste tegemine
    kuni 14.04.2020
  • check Võitja valik kuni
    21.04.2020
  • 3 Töö teostamine
    ja hinnang
Hanke lõpp: T, 14. aprill, 2020
Maakond: Harjumaa
Linn: Tallinn
Tööde algus: E, 20. aprill, 2020 (Soovituslik)
Tööde lõpp: K, 29. aprill, 2020 (Soovituslik)
Ehitusmaterjalid: Töö tegija poolt

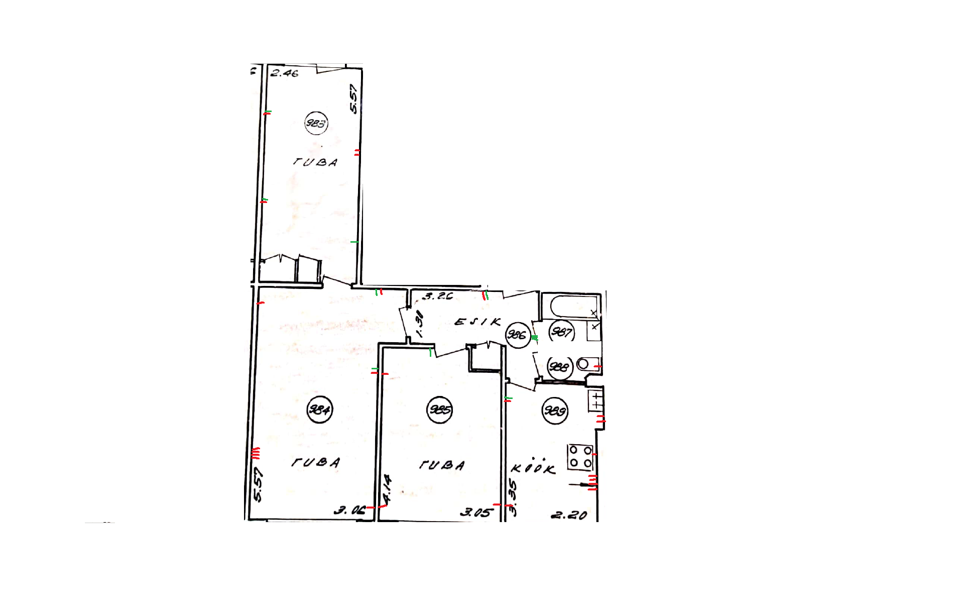
Töö sisu

9 korruselise paneelmaja, 3 toalises korteris (59,7m2) on vaja välja vahetada kogu el. juhtmestik.
Tuua kilp korterisse, lisada pistikupesasid ja lüliteid ning laevalgustite pesasid. Lülitid tuleks tuua madalamale, u 1m kõrgusele ning pistikud seina alumisse äärde. Korteri suurus : Elutuba 17m2, 2magamistuba 12 ja 13 m2, köök 6m2 vannituba 4m2, esik 4m2.
Pakkumine võiks sisaldada ka materjali hinda.

Pildid, video ja failid

Hanke korraldaja: eraisik ID54139

Pakkumised

Pakkumisi kokku: 12

Ettevõte Summa Käibemaks Lisatud Vestlus
Kasutaja ikoon ID54006
Pakkuja profiil Väike nool paremale
1 900€ Ei sisalda Ei sisalda 01.04.2020 Vestlus (0)

Pakkumise kirjeldus:

Soovin esitada oma pakkumise antud objektile. Töö sisaldab kaableid, freesimist, tavahinnaga pistikuid ja lüliteid ja samuti kilbi materjale. Minu kui elektriku taha töö seisma ei jää, kuna olemas selleks nõuetekohane haridus ja oskused ning vajalikud vahendid ja piisav aeg.

Kuna teada, et laed tulevad alla ja põrandad lähevad vahetusse, siis ka ... Rohkem

Kasutaja ikoon ID27620
Pakkuja profiil Väike nool paremale
2 560€ Ei sisalda Ei sisalda 01.04.2020 Vestlus (0)

Pakkumise kirjeldus:

Soovitud tööd.

Kasutaja ikoon ID49645
Pakkuja profiil Väike nool paremale
2 150€ Ei sisalda Ei sisalda 01.04.2020 Vestlus (0)
Kasutaja ikoon ID49718
Pakkuja profiil Väike nool paremale
2 150€ Ei sisalda Ei sisalda 01.04.2020 Vestlus (0)
Kasutaja ikoon ID34985
Pakkuja profiil Väike nool paremale
2 100€ Ei sisalda Ei sisalda 01.04.2020 Vestlus (0)

Pakkumise kirjeldus:

Tehtud töödele garantii 2 aastat.Pakkumine sisaldab freesimist,kaablite vedu ,kilbi ühendamist
koos materjaliga.

Kasutaja ikoon ID39222
Pakkuja profiil Väike nool paremale
2 000€ Ei sisalda Ei sisalda 01.04.2020 Vestlus (0)
Kasutaja ikoon ID25180
Pakkuja profiil Väike nool paremale
1 650€ Ei sisalda Ei sisalda 02.04.2020 Vestlus (0)

Pakkumise kirjeldus:

Soovitud tööd. Pakkumine eeldab et kaabeldus on võimalik teostada lae tagant. Pakkumine ei sisalda pesade, lülitite, valgustite maksumust.

Kasutaja ikoon ID52674
Pakkuja profiil Väike nool paremale
3 200€ Ei sisalda Ei sisalda 02.04.2020 Vestlus (0)

Pakkumise kirjeldus:

Pakkumine sisaldab basic 55 pistikuid, lüliteid + paigaldust, kogu kaabeldust, soonte, tooside freesimist. Hager elektrikilpi+Noark sisu koos rikkevoolukaitsmetega. Hiljem teostusjoonis, elektritööde üleandmis akt. Olemas B pädevus. Hinnale KM ei lisandu. Valgustid hinna sees pole.

Kasutaja ikoon ID47246
Pakkuja profiil Väike nool paremale
1 850€ KM lisandub KM lisandub 12.04.2020 Vestlus (0)

Pakkumise kirjeldus:

Uus kilp Ja peakaabel
Kaabeldus vastavalt joonisele . Seadmetooside paigaldus. Pp lülitite paigaldus. Seadmete ühendus
Ei sisalda prahi utiliseerimist. Ei sisalda pp, lülitite, valgustite, seadmete maksumust
Kilbi joonis ning vastavuse deklaratsioon. Valgustite paigaldus töömahu teaostamise jooksul.
Garantii 2a
Töökogemus 20a

Kasutaja ikoon ID34425
Pakkuja profiil Väike nool paremale
2 150€ KM lisandub KM lisandub 14.04.2020 Vestlus (0)

Pakkumise kirjeldus:

Pikaajaline töökogemus elektritöödes installatsioonitöödest kuni projekteerimiseni.

Kasutaja ikoon ID50635
Pakkuja profiil Väike nool paremale
1 800€ Sisaldab KM Sisaldab KM 14.04.2020 Vestlus (0)

Pakkumise kirjeldus:

Pakkumine ei sisalda auditit, plommide eemaldust ja uuesti paigaldust. Voolumõõtja asukoht jääb trepikotta. Pakkumises ei ole arvestatud valgusteid. Pistikupesad ja lülitid on kvaliteettootja omad.

Kasutaja ikoon ID53236
Pakkuja profiil Väike nool paremale
1 799€ KM lisandub KM lisandub 14.04.2020 Vestlus (0)

Pakkumise kirjeldus:

Kaabeldus tööd, tolmuvaba freesimine, elektrikilp, ajutine valgustus, materjalid.

Pädevtunnistus.

Garantii 5a.

Vajadusel elektriprojekt

Ei sisalda pistikupesade, lülitite, valgustite maksumust ja paigaldamis tasu.

Ei sisalda prahi utiliseerimist.

Küsimused hanke korraldajale

Küsimus: private ID52674   01.04.2020 08:43
Kas korteris laed tulevad alla ja seinad on täis betoon või mingi muu seal?

Teavita reeglite rikkumisest

Korraldaja vastus: 01.04.2020 09:28

Laed tulevad alla ja on täisbetoon.

Teavita reeglite rikkumisest

Küsimus: private ID52674   01.04.2020 08:49
kas korter on tööks tühi või elate sees seal ?

Teavita reeglite rikkumisest

Korraldaja vastus: 01.04.2020 09:29

Korter on tühi.

Teavita reeglite rikkumisest

Küsimus: private ID54006   01.04.2020 13:26
Kas põrandad lähevad ka vahetusse? Või tuleb kogu kaabeldus freesida ainult seintesse?<br />
Mis on ligikaudne pistikute ja lülite kogu arv? 40 ringis kusagil?<br />
Kas töö tegemise aeg (müra aeg) on kuidagi kella ajaliselt piiratud?<br />
Soonte kinnipanek pärast kaabeldust elektriku poolt? või jääb ehitaja tööks?<br />
Kas on ka põrandakütteid?<br />
Valgustid on teie kui kliendi enda tarnida? Töö sisaldab tavamüügis olevaid pistikuid, lüliteid, kaablit, kilbi materjale?<br />

Teavita reeglite rikkumisest

Korraldaja vastus: 01.04.2020 13:42

P]randad vahetatakse kogu korteris. Pistikute, lülitite arv tuleb, u. 40 ringis. Müra tohib teha 9-16 tööpäevadel ainult. Sooned pannakse kinni ehitaja poolt.<br />
Põrandaküte on vannitoas, mis läheb väljalõhkumisele, uut asemele ei tule.<br />
Valgustid tulevad siis kui remont valmis ja meie endi poolt.<br />
Pistikud ja lülitid paigaldatakse viimistluse käigus. Vajalik töö ja materjalid esmalt on kaablite vedu ja kaablid, freesimine, kilbi materjal.

Teavita reeglite rikkumisest

Küsimus: private ID54006   01.04.2020 13:29
Kui kõik laed tulevad alla, siis eeldan et saab kaabelduse enamuses teha lae tagant ja seega jääb vaid tubades pistikust pistikusse ja lülititesse freesimine?

Teavita reeglite rikkumisest

Korraldaja vastus: 01.04.2020 13:46

Pigem jah.

Teavita reeglite rikkumisest

Lisa küsimus

Lisa küsimus

Minu pakkumine

Reeglid

Pakkumise kirjelduse väli on mõeldud pakkumise detailsemaks lahti kirjutamiseks. Pikema teksti mugavaks sisestamiseks klikkige kasti paremal ülaservas oleval ikoonil.
Pakkumist tehes on keelatud postitada enda kontaktandmeid (nimi, telefon, aadress jne). Me jälgime ja analüüsime pakkumisi, et vältida pettuseid ja reeglite rikkumisi.
Rikkumise puhul kasutajakonto blokeeritakse.

 

Teisi töid samas valdkonnas

Valdkonnas "Elektritööd" on 5 aktiivset tööd

Vana talu elektrisüsteemi uuendamine (kilp, pistikud, välivalgustus, EV valmidus)

Asukoht: Raplamaa, Suurekivi
Aega jäänud: 1p 8h
Tehtud pakkumisi: 5

Kaablite vahetus paneelmaja korteris ja siseviimistlus

Asukoht: Harjumaa, Tallinn
Aega jäänud: 6p 8h
Tehtud pakkumisi: 3

Vanemad teated:

Vaata kõiki

Sellel veebilehel kasutatakse küpsiseid. Kasutamist jätkates nõustute küpsiste kasutamisega.

Sulge
 
Minu pakkumine

Reeglid

Pakkumise kirjelduse väli on mõeldud pakkumise detailsemaks lahti kirjutamiseks. Pikema teksti mugavaks sisestamiseks klikkige kasti paremal ülaservas oleval ikoonil.
Pakkumist tehes on keelatud postitada enda kontaktandmeid (nimi, telefon, aadress jne). Me jälgime ja analüüsime pakkumisi, et vältida pettuseid ja reeglite rikkumisi.
Rikkumise puhul kasutajakonto blokeeritakse.