+ Lisa oma töö      

Otsid ehitajat "Eramu ehitus" valdkonnast?

Parima pakkumise ja teostaja leidmiseks lisa oma töö.

Hange on lõppenud!

Võitjaks osutus kasutaja ID 685

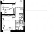
Ridaelamu boksid (6TK)

ID 5740

5994 vaatamist

Prindi

  • check Pakkumiste tegemine
    kuni 27.10.2007
  • check Võitja valik kuni
    03.11.2007
  • 3 Töö teostamine
    ja hinnang
Hanke lõpp: L, 27. oktoober, 2007
Maakond: Harjumaa
Linn: Keila
Tööde algus: L, 10. november, 2007 (Kohustuslik)
Tööde lõpp: E, 25. mai, 2026 (Soovituslik)
Ehitusmaterjalid: Töö tegija poolt

Töö sisu

Vaja saada ühe boksi votmed kätte hind. Neid oleks kuus tykki siis. Vundament tule fibo5 300mm ja seinad 250. 100 beno ja krohv. Vahelaed baneelid. katus fermidel sbs kattega. Ühe boksi suletud neto pind 192m2. Hindpakkuda ka trasside ehitusega ning elektritööd. Aknad uksed puitalumiiniumist. vastavlt boksidele on auru ja infrapuna saunad. majad seest krohvida. Vannitoad mosaiik plaadid, põrandal tamme barkett ja pesruumdesse looduslik kivi parkett niisketesse ruumidesse.

Pildid, video ja failid

Hanke korraldaja: eraisik ID8020

Pakkumised

Pakkumisi kokku: 20

Ettevõte Summa Käibemaks Lisatud Vestlus
Kasutaja ikoon ID4476
Pakkuja profiil Väike nool paremale
172 561,5€ Ei sisalda Ei sisalda 20.10.2007 Vestlus (0)

Pakkumise kirjeldus:

Ühe maja hind "Võtmed kätte". Detailse pakumise teeme pärast võidu.

Kasutaja ikoon ID4413
Pakkuja profiil Väike nool paremale
166 170,3€ Sisaldab KM Sisaldab KM 21.10.2007 Vestlus (0)

Pakkumise kirjeldus:

ÜHE BOKSI TÖÖ HIND KOOS MATERJALIDEGA!!!

Kasutaja ikoon ID4232
Pakkuja profiil Väike nool paremale
152 748,8€ Ei sisalda Ei sisalda 21.10.2007 Vestlus (0)

Pakkumise kirjeldus:

Kvaliteet ja tähtajad tagatud, garantii, pikk kogemus eramuehituses

Kasutaja ikoon ID6991
Pakkuja profiil Väike nool paremale
162 974,7€ Ikoon kell Sisaldab KM Sisaldab KM 21.10.2007 Vestlus (0)

Pakkumise kirjeldus:

Ühe boksi hind.

Kasutaja ikoon ID2688
Pakkuja profiil Väike nool paremale
158 500,9€ Ei sisalda Ei sisalda 21.10.2007 Vestlus (0)
Kasutaja ikoon ID4052
Pakkuja profiil Väike nool paremale
153 388,0€ Sisaldab KM Sisaldab KM 21.10.2007 Vestlus (0)
Kasutaja ikoon ID6813
Pakkuja profiil Väike nool paremale
165 659,0€ Ei sisalda Ei sisalda 21.10.2007 Vestlus (0)
Kasutaja ikoon ID6909
Pakkuja profiil Väike nool paremale
146 996,8€ Ei sisalda Ei sisalda 21.10.2007 Vestlus (0)

Pakkumise kirjeldus:

garantii ja kvaliteet on hinna sees

Kasutaja ikoon ID1116
Pakkuja profiil Väike nool paremale
121 432,1€ Ei sisalda Ei sisalda 21.10.2007 Vestlus (0)

Pakkumise kirjeldus:

Toome ise maale auru ja infrapuna saunu. info@kitchen.ee

Kasutaja ikoon ID5135
Pakkuja profiil Väike nool paremale
137 410,0€ Ei sisalda Ei sisalda 22.10.2007 Vestlus (0)
Kasutaja ikoon ID6541
Pakkuja profiil Väike nool paremale
153 388,0€ Sisaldab KM Sisaldab KM 22.10.2007 Vestlus (0)
Kasutaja ikoon ID1796
Pakkuja profiil Väike nool paremale
143 801,2€ Ikoon kell Sisaldab KM Sisaldab KM 24.10.2007 Vestlus (0)

Pakkumise kirjeldus:

loodetavasti selline hind sobib,detailsem hind peale võitu. ette tänades

Kasutaja ikoon ID5871
Pakkuja profiil Väike nool paremale
191 735,0€ Sisaldab KM Sisaldab KM 23.10.2007 Vestlus (0)
Kasutaja ikoon ID6850
Pakkuja profiil Väike nool paremale
146 996,8€ Sisaldab KM Sisaldab KM 24.10.2007 Vestlus (0)

Pakkumise kirjeldus:

ühe boksi hind

Kasutaja ikoon ID6857
Pakkuja profiil Väike nool paremale
149 042,0€ Sisaldab KM Sisaldab KM 25.10.2007 Vestlus (0)

Pakkumise kirjeldus:

Pikaajaline eramute ehitamise kogemus

Kasutaja ikoon ID1058
Pakkuja profiil Väike nool paremale
140 605,6€ Ei sisalda Ei sisalda 25.10.2007 Vestlus (0)
Kasutaja ikoon ID8036
Pakkuja profiil Väike nool paremale
140 605,6€ Ei sisalda Ei sisalda 26.10.2007 Vestlus (0)
Kasutaja ikoon ID4523
Pakkuja profiil Väike nool paremale
134 214,5€ Sisaldab KM Sisaldab KM 26.10.2007 Vestlus (0)

Pakkumise kirjeldus:

see oleks maksimaalne hind,hind võib langeda olenevalt materjalidest.Täpne hind läbirääkimiste käigus.Jõuvame kindlasti kokkuleppele. u

Kasutaja ikoon ID2886
Pakkuja profiil Väike nool paremale
166 170,3€ Sisaldab KM Sisaldab KM 27.10.2007 Vestlus (0)
Kasutaja ikoon ID685
Pakkuja profiil Väike nool paremale
163 204,8€ Sisaldab KM Sisaldab KM 27.10.2007 Vestlus (0)

Pakkumise kirjeldus:

lõpplik hind projekti,nõuete ja tingimustega tutvumisel

Küsimused hanke korraldajale

Küsimus: private ID6150   21.10.2007 12:28
Tere!Milline küttesüsteem hoonesse tuleb.

Teavita reeglite rikkumisest

Korraldaja vastus: 25.05.2026 00:43

õhksoojus pumbad

Teavita reeglite rikkumisest

Küsimus: private ID4030   21.10.2007 22:44
oleks tore kui saaks igasuguseid täiendavaid mõõte asju mis kuhu tuleb jne,mida rohkem infot seda täpsema hinna saab teha,sest pole siin mõtet lampi panna

Teavita reeglite rikkumisest

Korraldaja vastus:
Hanke korraldaja ei ole küsimusele veel vastanud

Lisa küsimus

Lisa küsimus

Minu pakkumine

Reeglid

Pakkumise kirjelduse väli on mõeldud pakkumise detailsemaks lahti kirjutamiseks. Pikema teksti mugavaks sisestamiseks klikkige kasti paremal ülaservas oleval ikoonil.
Pakkumist tehes on keelatud postitada enda kontaktandmeid (nimi, telefon, aadress jne). Me jälgime ja analüüsime pakkumisi, et vältida pettuseid ja reeglite rikkumisi.
Rikkumise puhul kasutajakonto blokeeritakse.

 

Vanemad teated:

Vaata kõiki

Sellel veebilehel kasutatakse küpsiseid. Kasutamist jätkates nõustute küpsiste kasutamisega.

Sulge
 
Minu pakkumine

Reeglid

Pakkumise kirjelduse väli on mõeldud pakkumise detailsemaks lahti kirjutamiseks. Pikema teksti mugavaks sisestamiseks klikkige kasti paremal ülaservas oleval ikoonil.
Pakkumist tehes on keelatud postitada enda kontaktandmeid (nimi, telefon, aadress jne). Me jälgime ja analüüsime pakkumisi, et vältida pettuseid ja reeglite rikkumisi.
Rikkumise puhul kasutajakonto blokeeritakse.