+ Lisa oma töö      

Otsid ehitajat "Vundamenditööd" valdkonnast?

Parima pakkumise ja teostaja leidmiseks lisa oma töö.

Vundament 132ruutu, Tartu lähedal

ID 6619

9270 vaatamist

Prindi

  • check Pakkumiste tegemine
    kuni 27.02.2008
  • check Võitja valik kuni
    05.03.2008
  • 3 Töö teostamine
    ja hinnang
Hanke lõpp: K, 27. veebruar, 2008
Maakond: Tartumaa
Muu asula: Rõhu küla
Tööde algus: N, 01. mai, 2008 (Soovituslik)
Tööde lõpp: R, 01. mai, 2026 (Soovituslik)
Ehitusmaterjalid: Töö tegija poolt

Töö sisu

Tere,
Sooviks teada mis hinnaga teeksite vundamendi.
Olemas ka arhidekti tehtud joonised, kuid nendel on vundament planeeritud võibolla et liigagi hea ja liiga palju betooni vajavaks.
Seepärast ootangi teie soovitusi ja hinnapakkumist heale lahendusele mis ei oleks väga kallis kuid siiski piisavalt vastupidav.
Peale tuleb palkmaja kivikatusega, vesipõrandaküte esimesel korrusel, teisel korrusel radikad.

esimese korruse põranda pinda 132 ruutu

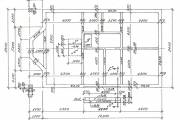
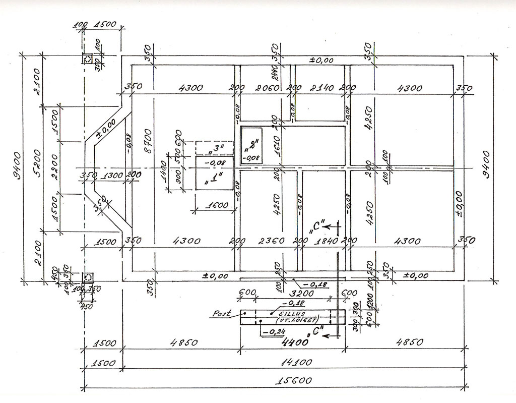
vundamendi plaan http://pill.pri.ee/maja/vundam_plaan.jpg
sinna juurde käiv tekst http://pill.pri.ee/maja/vundam_plaan_txt.jpg
lõige http://pill.pri.ee/maja/vundam_loige.jpg
1 korrus http://pill.pri.ee/maja/1korrus.jpg

hiljem saab ka vee ja kanalisatsiooni torude paiknemise plaani.

Hinnapakkumise võiksite teha koos töö ja materjalidega.
peaks ka sisaldama pinnasetöid, pinnaseks peal liiv ca 1m ning siis savi.
seda liiva annab ka ehituseks kasutada arvatavasti.

Võib teha ka pakkumise ainult vundamendile ilma torutöödeta.
hea kui mõlemad.

Pildid, video ja failid

Hanke korraldaja: eraisik ID9157

Pakkumised

Pakkumisi kokku: 9

Ettevõte Summa Käibemaks Lisatud Vestlus
Kasutaja ikoon ID7682
Pakkuja profiil Väike nool paremale
17 575,7€ Ei sisalda Ei sisalda 21.02.2008 Vestlus (0)
Kasutaja ikoon ID7667
Pakkuja profiil Väike nool paremale
19 109,6€ Sisaldab KM Sisaldab KM 21.02.2008 Vestlus (0)

Pakkumise kirjeldus:

soovitame kindlasti plaatvundamenti L-elemendiga tehtud. Oleme neid teinud oma 10tk ja väga head on. Garantii. Firma. Hind koos kõikide materjalide ja tööga

Kasutaja ikoon ID8730
Pakkuja profiil Väike nool paremale
14 865,9€ Ei sisalda Ei sisalda 21.02.2008 Vestlus (0)
Kasutaja ikoon ID3040
Pakkuja profiil Väike nool paremale
16 642,6€ Sisaldab KM Sisaldab KM 22.02.2008 Vestlus (0)
Kasutaja ikoon ID6870
Pakkuja profiil Väike nool paremale
8 308,5€ Sisaldab KM Sisaldab KM 22.02.2008 Vestlus (0)

Pakkumise kirjeldus:

Vundamendist võõtmedeni

Kasutaja ikoon ID9270
Pakkuja profiil Väike nool paremale
15 977,9€ Ei sisalda Ei sisalda 23.02.2008 Vestlus (0)
Kasutaja ikoon ID4696
Pakkuja profiil Väike nool paremale
19 109,6€ Ei sisalda Ei sisalda 23.02.2008 Vestlus (0)

Pakkumise kirjeldus:

pakuks 600mm taldmikku ja 5 rida Columbiat täis betoneeritult. kõige mõistlikum versioon. ja põrandakütte valaksin 100-120mm. 70mm liiga kõhn, katel vurab sajaga kütta siis.ja topelt betooni nagu joonisel pole vaja. see arhitekt viska omal küll peast välja. tundub suht mõttetu mees olema.

Kasutaja ikoon ID6850
Pakkuja profiil Väike nool paremale
150,8€ Sisaldab KM Sisaldab KM 25.02.2008 Vestlus (0)

Pakkumise kirjeldus:

m2 hind

Kasutaja ikoon ID6212
Pakkuja profiil Väike nool paremale
15 658,4€ Ei sisalda Ei sisalda 25.02.2008 Vestlus (0)

Küsimused hanke korraldajale

Küsimus: private ID6850   25.02.2008 10:00
vaheseinad tulevad kindlasti palgist ja kindlasti tuleb kanalisatsioon +veetorude paigaldus ja vundamendi soojustamine,trenaazitoru ,põranda kütte paigaldus,kas need tööd tuleb teha

Teavita reeglite rikkumisest

Korraldaja vastus: 01.05.2026 19:33

jah need tööd tuleb ka teha

Teavita reeglite rikkumisest

Lisa küsimus

Lisa küsimus

Minu pakkumine

Reeglid

Pakkumise kirjelduse väli on mõeldud pakkumise detailsemaks lahti kirjutamiseks. Pikema teksti mugavaks sisestamiseks klikkige kasti paremal ülaservas oleval ikoonil.
Pakkumist tehes on keelatud postitada enda kontaktandmeid (nimi, telefon, aadress jne). Me jälgime ja analüüsime pakkumisi, et vältida pettuseid ja reeglite rikkumisi.
Rikkumise puhul kasutajakonto blokeeritakse.

 

Vanemad teated:

Vaata kõiki

Sellel veebilehel kasutatakse küpsiseid. Kasutamist jätkates nõustute küpsiste kasutamisega.

Sulge
 
Minu pakkumine

Reeglid

Pakkumise kirjelduse väli on mõeldud pakkumise detailsemaks lahti kirjutamiseks. Pikema teksti mugavaks sisestamiseks klikkige kasti paremal ülaservas oleval ikoonil.
Pakkumist tehes on keelatud postitada enda kontaktandmeid (nimi, telefon, aadress jne). Me jälgime ja analüüsime pakkumisi, et vältida pettuseid ja reeglite rikkumisi.
Rikkumise puhul kasutajakonto blokeeritakse.