+ Lisa oma töö      

Otsid ehitajat "Eramu ehitus" valdkonnast?

Parima pakkumise ja teostaja leidmiseks lisa oma töö.

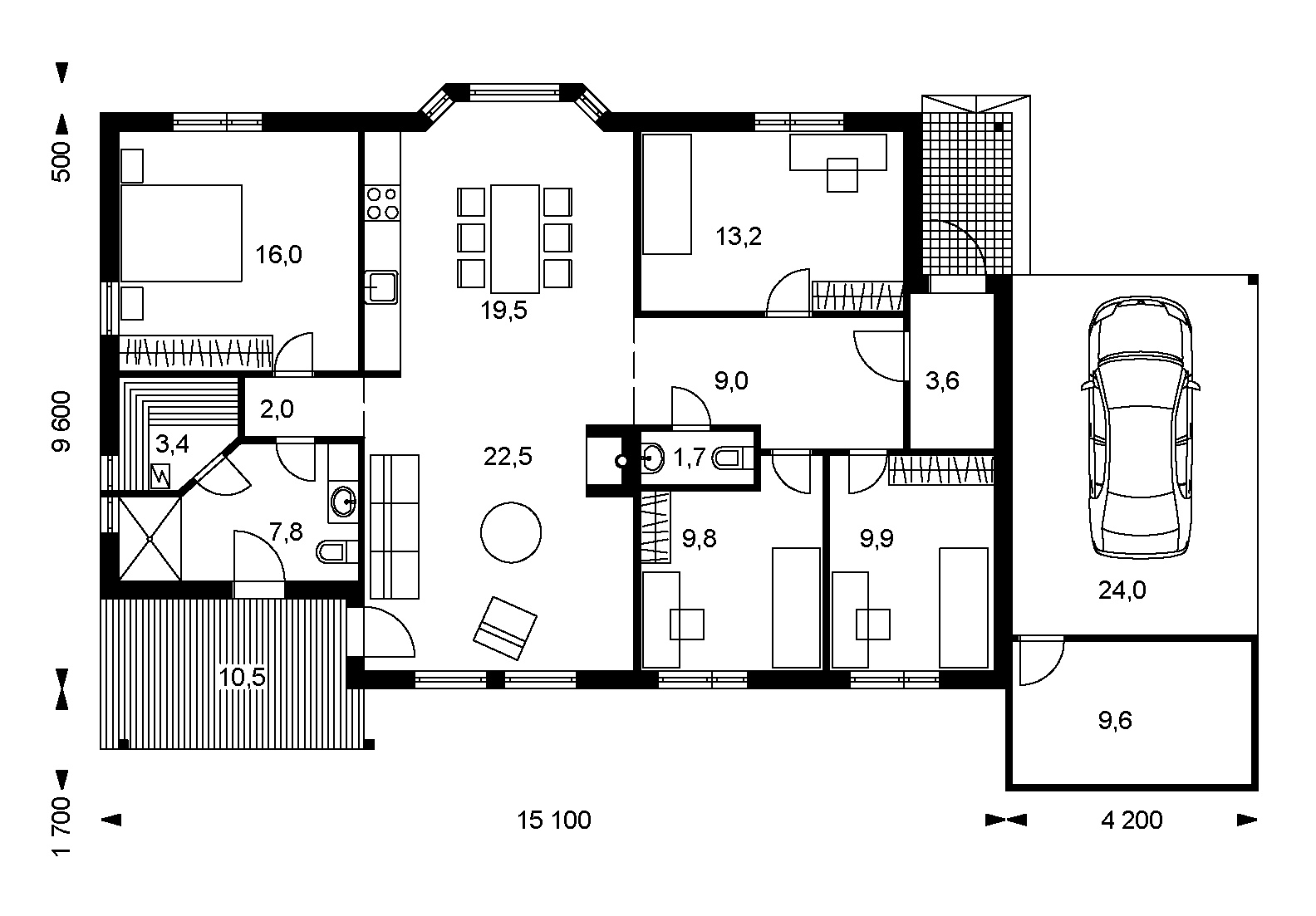
Moodulmaja Loodesystem.ee Loode-118

ID 6748

6822 vaatamist

Prindi

  • check Pakkumiste tegemine
    kuni 11.03.2008
  • check Võitja valik kuni
    18.03.2008
  • 3 Töö teostamine
    ja hinnang
Hanke lõpp: T, 11. märts, 2008
Maakond: Harjumaa
Linn: Saue
Tööde algus: N, 01. mai, 2008 (Soovituslik)
Tööde lõpp: E, 01. detsember, 2008 (Soovituslik)
Ehitusmaterjalid: Töö tegija poolt

Töö sisu

Maja elemendid ja karbi püstitus Loodesüstemilt.

Vaja teha:
1) plaatvundament koos kommunikatsiionidega (torud, põrandaküte)
2) välisfassaadi paigaldus (kahepoolselt värvitud laudisest)
3) kivikatuse paigaldus
4) siseviimistlus (siseseinad vastavalt projektile, pahetldamine, värvimine)
5) elektritööd vastavalt elektriprojektile
6) sundventilatstiooniüsteemi ehitus vastavalt projektile
7) reovee-mahuti paigaldus (10 m3)

Pildid, video ja failid

Hanke korraldaja: eraisik ID9723

Pakkumised

Pakkumisi kokku: 21

Ettevõte Summa Käibemaks Lisatud Vestlus
Kasutaja ikoon ID9052
Pakkuja profiil Väike nool paremale
102 258,6€ Ei sisalda Ei sisalda 05.03.2008 Vestlus (0)
Kasutaja ikoon ID7667
Pakkuja profiil Väike nool paremale
51 129,3€ Sisaldab KM Sisaldab KM 05.03.2008 Vestlus (0)

Pakkumise kirjeldus:

hind sisaldab teie poolt loetletud töid. Elemendid Loodesüstemilt

Kasutaja ikoon ID9447
Pakkuja profiil Väike nool paremale
5 752,1€ Ei sisalda Ei sisalda 05.03.2008 Vestlus (0)

Pakkumise kirjeldus:

4)maalritööd 190-210eek m2, koos kvaliteetsete materjalide ja heledate värvitoonidega.

Kasutaja ikoon ID6724
Pakkuja profiil Väike nool paremale
49 851,1€ Ei sisalda Ei sisalda 05.03.2008 Vestlus (0)
Kasutaja ikoon ID6870
Pakkuja profiil Väike nool paremale
60 396,5€ Sisaldab KM Sisaldab KM 05.03.2008 Vestlus (0)

Pakkumise kirjeldus:

M2 hind viis tuhat seitsesadakaksküment seitse krooni

Kasutaja ikoon ID9701
Pakkuja profiil Väike nool paremale
52 854,9€ Sisaldab KM Sisaldab KM 05.03.2008 Vestlus (0)
Kasutaja ikoon ID1796
Pakkuja profiil Väike nool paremale
52 791,0€ Sisaldab KM Sisaldab KM 05.03.2008 Vestlus (0)
Kasutaja ikoon ID3813
Pakkuja profiil Väike nool paremale
63 298,1€ Ei sisalda Ei sisalda 05.03.2008 Vestlus (0)
Kasutaja ikoon ID9475
Pakkuja profiil Väike nool paremale
50 490,2€ Sisaldab KM Sisaldab KM 06.03.2008 Vestlus (0)
Kasutaja ikoon ID9336
Pakkuja profiil Väike nool paremale
52 826,0€ Sisaldab KM Sisaldab KM 06.03.2008 Vestlus (0)

Pakkumise kirjeldus:

ID 9336

Kasutaja ikoon ID5770
Pakkuja profiil Väike nool paremale
63 911,7€ Sisaldab KM Sisaldab KM 07.03.2008 Vestlus (0)
Kasutaja ikoon ID1058
Pakkuja profiil Väike nool paremale
76 694,0€ Ei sisalda Ei sisalda 08.03.2008 Vestlus (0)
Kasutaja ikoon ID3211
Pakkuja profiil Väike nool paremale
55 535,5€ Sisaldab KM Sisaldab KM 09.03.2008 Vestlus (0)

Pakkumise kirjeldus:

Omame suuri kogemusi moodulmajadega.

Kasutaja ikoon ID7695
Pakkuja profiil Väike nool paremale
51 129,3€ Ei sisalda Ei sisalda 10.03.2008 Vestlus (0)

Pakkumise kirjeldus:

Garantii. sisaldab materjali. Hanke võidu korral täpsem pakkumine

Kasutaja ikoon ID8464
Pakkuja profiil Väike nool paremale
70 941,9€ Sisaldab KM Sisaldab KM 10.03.2008 Vestlus (0)
Kasutaja ikoon ID1472
Pakkuja profiil Väike nool paremale
55 027,9€ Ei sisalda Ei sisalda 11.03.2008 Vestlus (0)
Kasutaja ikoon ID8943
Pakkuja profiil Väike nool paremale
49 288,7€ Ei sisalda Ei sisalda 11.03.2008 Vestlus (0)

Pakkumise kirjeldus:

Töö kiire ja korralik. Pikaajaline kogemus.

Kasutaja ikoon ID9836
Pakkuja profiil Väike nool paremale
51 129,3€ Ei sisalda Ei sisalda 11.03.2008 Vestlus (0)

Pakkumise kirjeldus:

Tere! Vundamendi hind eraldi koos kommunik.4000.- m2, ülejäänud tööde osas hind orienteeruv, meiepoolt kõik tööd, vajadusel sisekujundus.

Kasutaja ikoon ID2800
Pakkuja profiil Väike nool paremale
52 088,0€ Sisaldab KM Sisaldab KM 11.03.2008 Vestlus (0)
Kasutaja ikoon ID7379
Pakkuja profiil Väike nool paremale
51 960,2€ Ei sisalda Ei sisalda 11.03.2008 Vestlus (0)
Kasutaja ikoon ID6858
Pakkuja profiil Väike nool paremale
55 315,5€ Ei sisalda Ei sisalda 11.03.2008 Vestlus (0)

Küsimused hanke korraldajale

Küsimus: private ID9243   05.03.2008 09:17
Tere. Selleks, et teha pakkumine oleks vaja küsitud tööde kohta projekte ja asendiplaani .

Teavita reeglite rikkumisest

Korraldaja vastus:
Hanke korraldaja ei ole küsimusele veel vastanud

Küsimus: private ID8954   05.03.2008 19:29
Tere, vaatasin teie joonist ja olen huvitatud sauna ja puitterrassi ehitamisest. kui teile sobib, siis esitaksin teile hinnapakkumise. Selljuhul vajan täpseid mõõte. Palun antke teada kas olete huvitatud. Olen oü.

Teavita reeglite rikkumisest

Korraldaja vastus:
Hanke korraldaja ei ole küsimusele veel vastanud

Küsimus: private ID9735   07.03.2008 10:02
Tere.

Teavita reeglite rikkumisest

Korraldaja vastus:
Hanke korraldaja ei ole küsimusele veel vastanud

Küsimus: private ID9735   07.03.2008 10:03
Tere. oleksime huvitatud tegema kütte, vee ja ventilatsiooni hinnapakkumise kuid selleks on vaja projekte.

Teavita reeglite rikkumisest

Korraldaja vastus:
Hanke korraldaja ei ole küsimusele veel vastanud

Lisa küsimus

Lisa küsimus

Minu pakkumine

Reeglid

Pakkumise kirjelduse väli on mõeldud pakkumise detailsemaks lahti kirjutamiseks. Pikema teksti mugavaks sisestamiseks klikkige kasti paremal ülaservas oleval ikoonil.
Pakkumist tehes on keelatud postitada enda kontaktandmeid (nimi, telefon, aadress jne). Me jälgime ja analüüsime pakkumisi, et vältida pettuseid ja reeglite rikkumisi.
Rikkumise puhul kasutajakonto blokeeritakse.

 

Vanemad teated:

Vaata kõiki

Sellel veebilehel kasutatakse küpsiseid. Kasutamist jätkates nõustute küpsiste kasutamisega.

Sulge
 
Minu pakkumine

Reeglid

Pakkumise kirjelduse väli on mõeldud pakkumise detailsemaks lahti kirjutamiseks. Pikema teksti mugavaks sisestamiseks klikkige kasti paremal ülaservas oleval ikoonil.
Pakkumist tehes on keelatud postitada enda kontaktandmeid (nimi, telefon, aadress jne). Me jälgime ja analüüsime pakkumisi, et vältida pettuseid ja reeglite rikkumisi.
Rikkumise puhul kasutajakonto blokeeritakse.