+ Lisa oma töö      

Otsid ehitajat "Plaatimistööd" valdkonnast?

Parima pakkumise ja teostaja leidmiseks lisa oma töö.

II-korruse Vannitoa ehitus

ID 7033

3422 vaatamist

Prindi

  • check Pakkumiste tegemine
    kuni 18.04.2008
  • check Võitja valik kuni
    25.04.2008
  • 3 Töö teostamine
    ja hinnang
Hanke lõpp: R, 18. aprill, 2008
Maakond: Harjumaa
Muu asula: Kiili vald
Tööde algus: E, 28. aprill, 2008 (Soovituslik)
Tööde lõpp: K, 28. mai, 2008
Ehitusmaterjalid: Töö tellija poolt

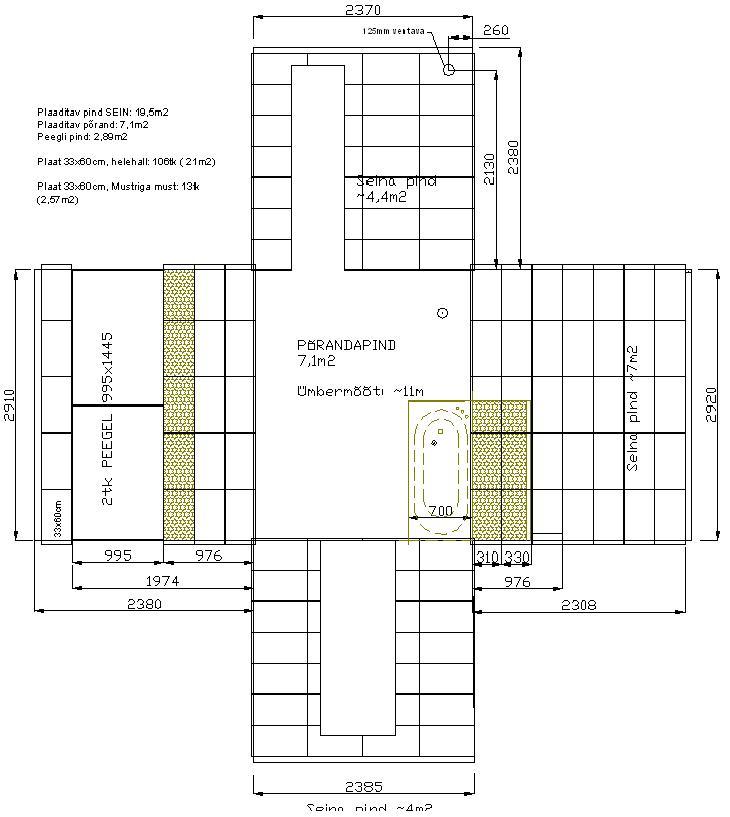
Töö sisu

korralik niiskustõke, plaatimine, vanni paigaldus, vannipaneeli ehitus + plaatimine, peegli paigaldamine

Pildid, video ja failid

Hanke korraldaja: eraisik ID6120

Pakkumised

Pakkumisi kokku: 15

Ettevõte Summa Käibemaks Lisatud Vestlus
Kasutaja ikoon ID10278
Pakkuja profiil Väike nool paremale
926,7€ Ei sisalda Ei sisalda 01.04.2008 Vestlus (0)
Kasutaja ikoon ID10291
Pakkuja profiil Väike nool paremale
1 022,6€ Ei sisalda Ei sisalda 02.04.2008 Vestlus (0)

Pakkumise kirjeldus:

Vannitoa plaatimine

Kasutaja ikoon ID1280
Pakkuja profiil Väike nool paremale
2 236,9€ Sisaldab KM Sisaldab KM 02.04.2008 Vestlus (0)

Pakkumise kirjeldus:

Kaetud tööde materjalid ja abimaterjalid töövõtjalt

Kasutaja ikoon ID9066
Pakkuja profiil Väike nool paremale
926,7€ Ei sisalda Ei sisalda 02.04.2008 Vestlus (0)

Pakkumise kirjeldus:

Töö väga korrektne. Lisaks pakun soodsalt peegliküttematti, mille paksus vaid 0,3 mm ja võimsus 240w/m2

Kasutaja ikoon ID8624
Pakkuja profiil Väike nool paremale
1 278,2€ Ei sisalda Ei sisalda 02.04.2008 Vestlus (0)
Kasutaja ikoon ID9052
Pakkuja profiil Väike nool paremale
1 789,5€ Ei sisalda Ei sisalda 02.04.2008 Vestlus (0)
Kasutaja ikoon ID6397
Pakkuja profiil Väike nool paremale
987,4€ Sisaldab KM Sisaldab KM 02.04.2008 Vestlus (0)

Pakkumise kirjeldus:

Pakutud hind kehtib kui seinad ei vaja täiendavat tasandust.

Kasutaja ikoon ID1472
Pakkuja profiil Väike nool paremale
639,1€ Sisaldab KM Sisaldab KM 02.04.2008 Vestlus (0)
Kasutaja ikoon ID8765
Pakkuja profiil Väike nool paremale
12 782,3€ Sisaldab KM Sisaldab KM 02.04.2008 Vestlus (0)
Kasutaja ikoon ID6870
Pakkuja profiil Väike nool paremale
3 706,9€ Sisaldab KM Sisaldab KM 02.04.2008 Vestlus (0)
Kasutaja ikoon ID8513
Pakkuja profiil Väike nool paremale
1 278,2€ Ei sisalda Ei sisalda 02.04.2008 Vestlus (0)
Kasutaja ikoon ID8690
Pakkuja profiil Väike nool paremale
2 236,9€ Sisaldab KM Sisaldab KM 02.04.2008 Vestlus (0)

Pakkumise kirjeldus:

töö on puhas ja kvaliteetne.tehtule garantii

Kasutaja ikoon ID6212
Pakkuja profiil Väike nool paremale
894,8€ Ei sisalda Ei sisalda 02.04.2008 Vestlus (0)

Pakkumise kirjeldus:

Täpsem hind peale objektiga tutvumist

Kasutaja ikoon ID8308
Pakkuja profiil Väike nool paremale
790,0€ Ei sisalda Ei sisalda 06.04.2008 Vestlus (0)
Kasutaja ikoon ID8137
Pakkuja profiil Väike nool paremale
1 693,7€ Ei sisalda Ei sisalda 16.04.2008 Vestlus (0)

Küsimused hanke korraldajale

Küsimus: private ID6397   01.04.2008 17:13
Tere.Millest aluspinnad(cyproc,plokk,betoon vms.)ja kas on ettevalmistatud plaatimiseks(loen normaalseks tolerantsi 2-3 mm 2 m kohta nii vertikaalis kui horisontaalis)Ja kas põrandakalded trapile on valatud ning milline plaat läheb põrandale ? Ette tänades.

Teavita reeglite rikkumisest

Korraldaja vastus: 10.05.2026 18:37

põrand betoon, koos kalletega trapini, põrandaplaadiks võrgu peal kivid; 3 seina krohvitud pind, 1 sein (uksepoolne) kipsplaadist

Teavita reeglite rikkumisest

Lisa küsimus

Lisa küsimus

Minu pakkumine

Reeglid

Pakkumise kirjelduse väli on mõeldud pakkumise detailsemaks lahti kirjutamiseks. Pikema teksti mugavaks sisestamiseks klikkige kasti paremal ülaservas oleval ikoonil.
Pakkumist tehes on keelatud postitada enda kontaktandmeid (nimi, telefon, aadress jne). Me jälgime ja analüüsime pakkumisi, et vältida pettuseid ja reeglite rikkumisi.
Rikkumise puhul kasutajakonto blokeeritakse.

 

Teisi töid samas valdkonnas

Valdkonnas "Plaatimistööd" on 2 aktiivset tööd

Trepikoja plaatimine

Asukoht: Tartumaa, Ülenurme
Aega jäänud: 4p 5h
Tehtud pakkumisi: 2

Pesuruumi plaatimine 12.6 m2

Asukoht: Tartumaa, Teedla
Aega jäänud: 1p 5h
Tehtud pakkumisi: 0

Vanemad teated:

Vaata kõiki

Sellel veebilehel kasutatakse küpsiseid. Kasutamist jätkates nõustute küpsiste kasutamisega.

Sulge
 
Minu pakkumine

Reeglid

Pakkumise kirjelduse väli on mõeldud pakkumise detailsemaks lahti kirjutamiseks. Pikema teksti mugavaks sisestamiseks klikkige kasti paremal ülaservas oleval ikoonil.
Pakkumist tehes on keelatud postitada enda kontaktandmeid (nimi, telefon, aadress jne). Me jälgime ja analüüsime pakkumisi, et vältida pettuseid ja reeglite rikkumisi.
Rikkumise puhul kasutajakonto blokeeritakse.