+ Lisa oma töö      

Hange on lõppenud!

Võitjaks osutus kasutaja ID 1976

Vundament saunale

ID 719

3747 vaatamist

Prindi

  • check Pakkumiste tegemine
    kuni 10.05.2006
  • check Võitja valik kuni
    17.05.2006
  • 3 Töö teostamine
    ja hinnang
Hanke lõpp: K, 10. mai, 2006
Maakond: Harjumaa
Muu asula: vääna-jõesuu
Tööde algus: E, 10. aprill, 2006 (Soovituslik)
Tööde lõpp: N, 30. aprill, 2026 (Soovituslik)
Ehitusmaterjalid: Töö tegija poolt

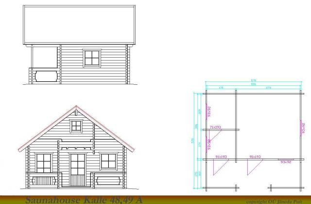
Töö sisu

lint või plaatvundament saunale suurusega 23 ruutmeetrit+ postvundamet kuurile ja terassile, mis asuvad sauna küljes

Pildid, video ja failid

Hanke korraldaja: eraisik ID1577

Pakkumised

Pakkumisi kokku: 5

Ettevõte Summa Käibemaks Lisatud Vestlus
Kasutaja ikoon ID1047
Pakkuja profiil Väike nool paremale
3 834,7€ Sisaldab KM Sisaldab KM 11.04.2006 Vestlus (0)
Kasutaja ikoon ID1171
Pakkuja profiil Väike nool paremale
3 195,6€ Ei sisalda Ei sisalda 11.04.2006 Vestlus (0)
Kasutaja ikoon ID808
Pakkuja profiil Väike nool paremale
3 612,2€ Ei sisalda Ei sisalda 18.04.2006 Vestlus (0)
Kasutaja ikoon ID685
Pakkuja profiil Väike nool paremale
3 067,8€ Sisaldab KM Sisaldab KM 10.05.2006 Vestlus (0)

Pakkumise kirjeldus:

lõpplik hind projektiga tutvumisel

Kasutaja ikoon ID1976
Pakkuja profiil Väike nool paremale
2 876,0€ Ei sisalda Ei sisalda 10.05.2006 Vestlus (0)

Küsimused hanke korraldajale

Küsimus: private ID1534   11.04.2006 08:28
projekt?

Teavita reeglite rikkumisest

Korraldaja vastus: 30.04.2026 11:07

lisasin joonise, sinna lisandub veel kuur! Põhjalik projekt ainult paberil!

Teavita reeglite rikkumisest

Küsimus: private ID1171   11.04.2006 10:37
kui palju poste on?

Teavita reeglite rikkumisest

Korraldaja vastus: 30.04.2026 11:07

6-8

Teavita reeglite rikkumisest

Lisa küsimus

Lisa küsimus

Minu pakkumine

Reeglid

Pakkumise kirjelduse väli on mõeldud pakkumise detailsemaks lahti kirjutamiseks. Pikema teksti mugavaks sisestamiseks klikkige kasti paremal ülaservas oleval ikoonil.
Pakkumist tehes on keelatud postitada enda kontaktandmeid (nimi, telefon, aadress jne). Me jälgime ja analüüsime pakkumisi, et vältida pettuseid ja reeglite rikkumisi.
Rikkumise puhul kasutajakonto blokeeritakse.

 

Vanemad teated:

Vaata kõiki

Sellel veebilehel kasutatakse küpsiseid. Kasutamist jätkates nõustute küpsiste kasutamisega.

Sulge
 
Minu pakkumine

Reeglid

Pakkumise kirjelduse väli on mõeldud pakkumise detailsemaks lahti kirjutamiseks. Pikema teksti mugavaks sisestamiseks klikkige kasti paremal ülaservas oleval ikoonil.
Pakkumist tehes on keelatud postitada enda kontaktandmeid (nimi, telefon, aadress jne). Me jälgime ja analüüsime pakkumisi, et vältida pettuseid ja reeglite rikkumisi.
Rikkumise puhul kasutajakonto blokeeritakse.